Currently, there are several common options for smoking products. One of them is the hot way. To get the most delicious and delicious dishes, you must have a smoking chamber. It can be purchased at a retail outlet or assembled such an apparatus as a hot smoked smokehouse with your own hands. To do this, you need to study the design features of this device and the procedure for creating it.
Content
- 1 Hot smoked smokehouse: design features
- 2 Home hot smoked smokehouse: varieties
- 3 Hot-smoked smokehouse device: structural elements
- 4 Do-it-yourself hot smoked smokehouse: materials of manufacture
- 5 Do-it-yourself hot smoked smokehouse: diagrams and photos
- 6 How to make a hot smoked smokehouse: instructions
- 7 How to smoke in a hot smoked smokehouse: meat, fish and other products
Hot smoked smokehouse: design features
In contrast to the cold method, this method implies a stronger temperature effect on the food. On average, this indicator is 100 ºС. The duration of the cooking process is shorter than when using devices that operate on wood.

IN smokehouse hot smoked products are usually cooked at a temperature of 45-55 degrees for 1-6 hours
To operate a hot smokehouse, you will need to purchase a special fuel - wood chips. Wood of this type allows you to obtain the required temperature and smoke in a short period of time. The duration of smoking depends on the properties of the product itself: variety, size, etc. Before making a hot smoked smokehouse with your own hands, you need to study its other design features.
Such a device includes the main element - a chamber, which must have a high tightness. Otherwise, the smoke will simply dissipate and the food will not cook properly. It is important to remember that a sealed tank allows you to achieve the same heating temperature for meat and fish at all levels. The smokehouse can have several such floors. Thus, the device of the smokehouse allows you to create smoked meats as simply as possible.
Note! Some devices are equipped with a lid that has a water seal. This element is a depression resembling the shape of the letter "P". It is filled with water, into which a cover is placed, which creates a reliable barrier to air outside the chamber.
To fix food products, use special holders with hooks or metal grates.In a hot-smoked smokehouse, methods of securing food can be combined.
The camera of such a device is located directly above the fire source. This is how a hot smokehouse differs from a cold smoking device with a chimney. Another feature of the hot unit is that a pallet must be present in its design. This element is necessary for the collection of fat released during cooking.
Do-it-yourself hot smoked smokehouse: advantages
It is important to understand that the design of hot smokers is simpler when compared to cold smokers. This allows you to easily assemble such units at home. Before you start manufacturing this device, it is recommended to pay attention to its photo. A hot smoked smokehouse looks quite simple, but at the same time it is an effective device for cooking.
The materials from which these structures are assembled are inexpensive. Therefore, a hot smokehouse can be called a profitable device from a financial point of view. If necessary, you can make a portable device that will have a compact size. Such a smokehouse is suitable for hiking and country trips. Due to its small size, it can be easily transported in the trunk of a car.
The hot smoker facilitates the rapid preparation of delicacies. The speed of the smoking process depends on which product is being processed and on its size. Depending on these factors, the cooking time can range from 15 minutes to 4 hours.

Since the materials from which the smokehouse is made are inexpensive, this design can be called profitable from a financial point of view.
Cooked meat and other dishes do not require additional processing. However, such a device also has its drawbacks. The main one is that finished products have a short shelf life. As a rule, it is 3-4 days. In any case, such a structure is quite simple to manufacture. A hot-type home smokehouse is an excellent and effective tool that allows you to get smoked products in a matter of hours.
Home hot smoked smokehouse: varieties
There are two common units that allow you to smoke products hot. They differ from each other in the heating option:
- regular smokehouse;
- electrical device.
In the first case, the chips that give off smoke for smoking are heated using an open fire source. In turn, electronic devices use special heaters for heating. Such smoke and meat pots can be easily purchased on the Internet or in any specialized store.
Helpful information! Electronic devices are easier to handle. In order to start cooking, you just need to plug the device into an outlet, put the chips in the right place and select the required smoking mode.

A simple stainless steel smokehouse does not require professional manufacturing knowledge and specific care skills
This device allows you to smoke food directly in the apartment, which is a convenient solution. Assembling an electric smokehouse with your own hands is certainly more difficult, but in principle it is possible. To do this, you need to understand the principle of its operation and have a basic knowledge of the device of electrical household appliances.
Let's consider the main advantages of this device. Among the advantages of electric smoking devices are the following: versatility, ease of use and compactness. The electrical device can be placed almost anywhere. The main requirement is the presence of an electrical network. In the kitchen, such a device can be placed in one of the headset cabinets.
The speed of cooking food in electric smokehouses is quite high. For example, to smoke a small piece of meat or medium-sized fish, you will need to wait about 30-40 minutes. The design of this type of smokehouse is, of course, more complicated, since it includes heating electrical appliances. In addition, these devices are often equipped with smoke generators, as well as water locks.
In such devices, it is much easier to regulate the temperature inside the smoking chamber. For this, they are equipped with a clear and user-friendly control panel. The cost of electric smoking machines can be different. Budget options can be purchased for 1500-2500 rubles.
Another type of hot-type smokers are automatic devices. Such units are used most often in restaurants and food processing plants. They are not suitable for hot smoking meat at home.
Hot smoked smokehouse device: structural elements
All modern hot-type smokers have common features. Such devices are necessarily equipped with the necessary set of parts, each of which performs its own function. Consider what elements are included in the hot-type aggregates.
Smoking chamber. This tank is a limited sealed compartment in which the products are processed with temperature and smoke. Most often, a smoking chamber is found in stationary models. In turn, portable devices can be collapsible.
Note! If you decide to keep a smokehouse at home, then it is recommended to pay attention to electronic models that are equipped with a small camera.
Lattice (one or more). This part is necessary to keep the smoked products at the desired height. Some devices may have other elements instead of grilles - holders with hooks. For cold and hot smoked smokers, this detail is mandatory.
Reflector. It is a common pan that collects fat. It is necessary to collect the fat released from food during cooking. In the absence of a reflector, fat will get on the smoldering chips and spoil the taste of smoked meats. This detail must be present in hot smoked (and cold) smokers. With your own hands, you can make it from a metal sheet of a certain thickness.
Thermometer. The absence of this element will not affect the operation of the smokehouse, however, without it, it is much more difficult to control the cooking process. Thus, it is desirable to have it in any model.
Do-it-yourself hot smoked smokehouse: materials of manufacture
Devices that are used at home are divided into stationary and mobile. The first of them require the arrangement of a brick base, which avoids skewing the structure. For the installation of the foundation, the following materials are used:
- brick (fire resistant);
- paving slabs;
- cement.
When assembling mobile hot and cold smoked smokehouses with your own hands, you need to focus on one point that will increase the versatility of the device. It is recommended to equip such devices with metal handles for easy transportation.
Most often, the material from which smoking chambers are made is steel sheet. It should not be too thin, otherwise the structure will burn out. It is desirable that this indicator be at least 1 mm. Stainless steel or galvanized steel is most suitable for assembling the tank. Such metals are not only highly refractory, but also resistant to corrosion.
If necessary, this unit can be purchased. Hot smoked smokehouses have different prices. When assembling a hot-type smokehouse with their own hands, improvised materials are often used. Among them are metal buckets and barrels, as well as gas cylinders. There are stationary models for the manufacture of which brick is used. Such devices can last for several decades, depending on how reliably both the structure itself and its base were made.
Do-it-yourself smokehouse hot smoking: sizes
Before drawing up a drawing of a smokehouse, it is necessary to decide on the question of what it will be used for. It is important to immediately calculate the amount of food that will be located in it at a time. Depending on this, the dimensions of the future structure are determined.
Note! The most spacious, in addition to industrial devices, are smoking cabinets. However, they work on a cold principle.
When calculating the size of the unit, it is worth considering that the products should be located at a distance from each other. This distance is necessary for the free passage of smoke to each product. The optimal distance in this case is approximately 6 cm. When determining the dimensions of a hot-smoked smokehouse for fish and meat, other indicators are also taken into account:
- distance from fuel to collecting pan;
- distance from the pallet to the products;
- distance from products to the lid of the smokehouse.
If you want to assemble a smoking unit for a summer residence or a private house, then you can make a more overall structure. The standard version of the smokehouse in this case has the following dimensions: 50x30x30 cm. The wall thickness of such a device should be at least 2 mm. Such units allow hot smoking of pork, beef, fish, cheese, vegetables and mushrooms.
In turn, the calculation of the dimensions of a home smokehouse, which will be located in the kitchen, entirely depends on the size of the hob. The standard version of the stove, as a rule, has a size of 50x60 cm. Guided by these indicators, you can choose the optimal smoking device. Experts recommend buying smokers 45x25x25 cm (for standard stoves).
Related article:
Do-it-yourself smokehouse: we make a structure for cooking delicacies
Types of smoking: hot, semi-hot and cold. Do-it-yourself smokehouses made of bricks, stainless steel, barrels. Assembly and operation advice.
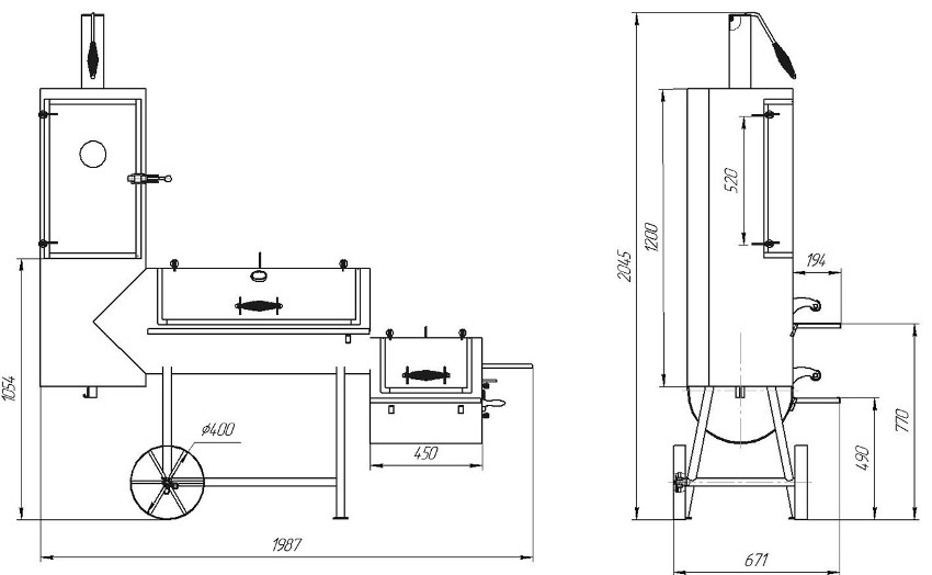
Do-it-yourself hot smoked smokehouse: diagrams and photos
It is not necessary to draw up a drawing of this device yourself. On the Internet, you can find a huge number of ready-made schemes containing all the required sizes. With your own hands, a drawing is made only if you need to make a device that will best meet individual needs.
For example, on the Internet there may not be a drawing suitable for some non-standard slab options. And also the scheme will be needed in the case of making a smokehouse from improvised means. A drawing of a hot-smoked smokehouse with your own hands should include the following details and their detailed description:
- firebox;
- camera;
- grates and holders;
- pallet;
- smoke exhaust pipe.
All of the above elements are necessary in the design of the simplest hot-type metal smokehouse. It is important to remember that the dimensions of this device must correspond to its purpose. A small portable smokehouse runs fairly quickly - in just 1-2 hours.Before proceeding with the manufacture of this device, you must purchase the appropriate tools and materials.
Note! By far the best option is to draw up an individual scheme. Such work will make it possible to manufacture the most suitable design for a particular case. To save time, on specialized sites on the Internet you can find photos of drawings of hot smoked smokehouses. It is much easier to assemble this structure with your own hands if the work is done according to a scheme drawn up without errors.
To assemble the body of the smokehouse, you will need a sheet of stainless steel or galvanized. Normal steel is not recommended as it has a lower resistance to high temperatures. And you should also prepare a metal grill in advance, which can be obtained in an old refrigerator. Metal corners are used to fasten the walls of the chamber to each other.
And finally, you need a tray and a thin tube that will take the smoke out of the chamber. If necessary, you can buy such a device for a very reasonable cost. The price of a hot-smoked stainless steel smokehouse is 4-5 thousand rubles.
Then you need to purchase all the necessary tools. To assemble the smokehouse, you will need a hacksaw, a file, a mallet and a wooden block. In addition, the work takes into account the use of a drill and welding equipment.
How to make a hot smoked smokehouse: instruction
Each process that takes into account the installation or assembly of certain structures can be divided into several stages. The creation of a device for smoking food at home is no exception to this rule. Let's consider step by step how to make a hot smoked smokehouse with your own hands.
First of all, you will need to take a sheet of stainless steel or galvanized. Guided by the drawing drawn up earlier, it is necessary to cut a box out of it. The connection of individual sheets to each other is carried out using welding equipment and a bar. The block must have a 90 ° angle so that the edges of the box can be aligned using it as a shape. The leveling tool is a conventional hammer. Further, the resulting structure is connected by welding.
The next step is to make a cover from a metal sheet. It is desirable to equip it with curved edges. They can be obtained by welding, or you will need to cut the edges and bend them. Then you need to make a hole in the lid for the flue pipe. After that, it remains only to weld the tube to the desired place. Carefulness will allow you to correctly assemble a hot smoked smokehouse with your own hands. The drawing and the dimensions indicated in it should always be at hand.
Thus, making a smokehouse with your own hands is not as difficult as it seems. At the next stage, it is necessary to place the corners inside the metal tank, on which the grease tray and food grate are installed.

When making a hot-smoked smokehouse with your own hands, it is important to consider that all materials must be made of stainless metals
Note! In order not to make mistakes in the assembly process, it is recommended to watch a training video on this topic.
How to make a hot-type smokehouse with a water seal
To assemble a device equipped with a hydraulic seal, the first step is to prepare a stainless steel sheet. It is worth noting that such models are often small in size, which makes it easy to transport them.
When choosing a material, you should pay attention to its thickness. It is not recommended to use thin-walled stainless steel, as it may not withstand high temperatures.However, overly thick sheets of metal are not a good choice, since their use does not provide the conditions required for smoking. If necessary, you can buy a hot smoked smokehouse. The price of a device equipped with a water seal ranges from 4 to 7 thousand rubles.
The odor trap itself is quite simple. It is a groove that can be welded in the upper part of the chamber (around the perimeter). In addition to organizing the groove, the cover of the device should also be modified. Downward sides are welded to it.

The smokehouse device with a water seal consists of a metal box and a sealed lid equipped with easy-to-grip handles
Before proceeding with the implementation of such a unit, you need to download from the Internet or make yourself a drawing of a hot-smoked smokehouse. The principle of operation of the hydraulic seal is to immerse the lid protrusions in water, which fills the groove. This design prevents air from outside from entering, ensuring proper sealing of the chamber.
This does not end with the differences between the smokehouse with a hydraulic seal from other models. The bottom in this design has one feature: it is removable. The metal sheet performing this function is equipped with bumpers that have an upward direction. It is also recommended to supplement the bottom with legs (bottom).
How to smoke in a hot smoked smokehouse: meat, fish and other products
Smoking is a food preparation method that processes them with heat and smoke. Most often, this method is used in order to obtain meat and fish dishes. If desired, you can subject other provisions to the same treatment (for example, cheese or vegetables).
When smoked cold, the final product has a more refined and subtle taste. The difference in this case lies in the temperature and duration of the process. The first indicator should be lower, and the second, respectively, higher. Cold devices are most often used for fish. How to make a cold smokehouse at home? This question can be answered by studying the information on the Internet.

When the bottom of the smoker is completely packed with raw materials, the pallet is exposed, and the grate is filled with food - the smoker can be put on fire
As for the hot smokehouse, its use can significantly speed up the process of smoking products. This is due to the fact that the temperature in such a unit averages 100 ° C. For example, hot smoking lard takes no more than 1 hour. Moreover, after 20 minutes of cooking, the temperature in the tank must be lowered to 90 ° C. The shelf life of lard prepared using this technology is only a few days.
Helpful information! The shelf life of any product that has been smoked in a hot smokehouse does not exceed a week.
So what is the correct way to smoke food in such devices? It is worth remembering that the smoldering temperature of the fuel (chips) during this process should be in the range from 300 to 350 ° C. In this case, the smoking temperature will not go beyond the required values, which range from 70 to 130 ° C.
Before using this type of unit, it is recommended to study the videos on this topic. They will allow you to quickly figure out how to smoke lard and other products in a hot-smoked smokehouse.
Hot smokers are a good alternative to cold smokers. The speed of bringing products to readiness in such units is ten times faster. When making a hot smoking device yourself, it is recommended that you first study the drawings, a work plan, and also get acquainted with training videos on this topic.
















