Having the appropriate equipment, a couple of assistants and a good information base, today it is quite possible to build a house on your own, even without professional skills. The construction of any building is based on laying the foundation. The pile foundation is becoming increasingly popular in the construction of a private house. The pros and cons of this type of structure basis and its varieties will be considered in this article, and also we will get acquainted with DIY video tutorials on installing a pile foundation.
Content
Foundation types
One of the most important, although invisible from the outside, part of the house is the foundation. The durability and quality of the building depends on how correctly the installation of this construction site will be performed.
Depending on installation technology and field of application foundations can be classified as follows:
- Strip foundation used mainly in low-rise construction. It is subdivided into prefabricated, consisting of blocks, and monolithic - in the form of a formwork into which concrete is poured.
- A monolithic foundation, very strong, is used in places where there is a danger of soil subsidence. It is a monolithic reinforced concrete slab.
- Column foundation laid during construction one-story houses... It is carried out in the form of columns, which are then connected with a beam strapping.
- The pile foundation has recently become more widespread due to the reliability, versatility and availability of DIY installation.
Pile foundation and stages of its installation
The pile foundation is used in the construction of buildings of different storeys. This type of foundation does not require laborious work on digging a foundation pit, which is a significant advantage over other types of foundations for a house. One of the main advantages of this method is the ability to install in almost any location, in any soil.
In order to determine the pros and cons of the pile foundation, we will consider its varieties, a video review of the stages of laying with our own hands and the features of installing different piles.
Stages of laying a pile foundation
Before starting the arrangement of any foundation, it is necessary to carry out certain preparatory work and calculations, which include the following.
- engineering-geological analysis of soil;
- determination of the type of piles for the foundation;
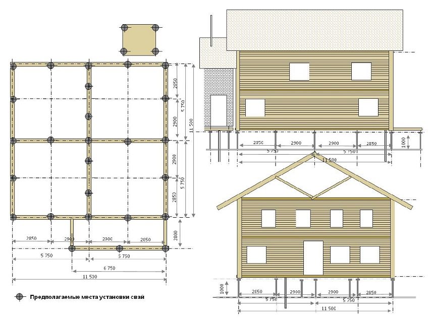
- a detailed drawing of a house plan showing all the details of the structure;
- calculation of the load on the foundation;
- drawing of the underground part;
- installation of piles;
- calculation and filling with grillage;
- installation of a basement floor;
- calculation of the cost of the foundation.
Pile foundation options
The foundation on piles has several varieties, which differ in installation technology and field of application.
Driven piles
These are reinforced concrete rods that are driven deep into the ground. The technology of this construction is based on accurate calculations of the distribution of the entire load of the future building to these foundation supports. The piles are driven inward until they hit the most stable area of the soil. This type of foundation is used in industrial construction, since the work of driving piles into the ground is carried out with heavy special equipment. For a country house or summer cottage, this type of pile is not suitable, since it is impossible to install them with your own hands.
Bored piles
With this type of foundation, it is first necessary to drill wells into which piles are laid and concrete is poured. This type of mounting of supports is most often used in the construction of multi-storey buildings. Technical laboriousness, complex calculations and high cost of work are the disadvantages of the foundation on the drill piles.
Foundation on screw piles
This type of pile foundation is most preferable when building a country house. Do-it-yourself installation of screw piles (the video can be found on many construction sites) is the most affordable work in terms of price and volume. The basis for such a foundation is steel pipes with a special thread like a screw. Thanks to such cutting, the piles are "screwed" into the ground, and with the help of helical blades they are reliably held in it (as shown in the video). If the soil is too loose, threaded screw supports are used throughout the pipe. Concrete is poured into steel pipes, giving greater stability to the structure.
Good to know! A screw pile foundation is the best way to create a foundation for easy frame house.
The pile-screw foundation, the pros and cons of which are discussed below, can be laid even without the help of special equipment, therefore this method of arranging the foundation is the most affordable for DIY installation.
Advantages and disadvantages of the pile-screw method
The main advantages of the foundation on screw piles are:
- affordable price;
- speed of work;
- the possibility of self-assembly;

For the stability and strength of the foundation, screw piles are screwed before immersion in solid ground
- laying in almost any soil;
- independence from the season.
- is carried out without preliminary earthworks;
The disadvantages of the pile-screw method include:
- susceptibility to corrosion when the protective layer of the steel pipe is broken;
- impossibility of installation in rocky places;
- problematic installation near other buildings;
- the need for accurate calculations of the depth of the support.
The main stages of work on laying the pile-screw foundation
Being the most advanced method today, the pile-screw version of the foundation is attracted primarily by the possibility of self-assembly. Thus, the future owner of a country house can significantly save on expensive equipment and professional builders.
Related article:
Ebbs for the base of the foundation: features of selection and installation. What materials are used for the production of ebbs for the base. Which one is better to choose and in which case. Installation of ebb tides.
The first stage of work is a study of the soil, a detailed calculation and a drawing of a house plan.
Usually, at the initial stage of construction, the leveling of the construction site and excavation work associated with the digging of foundation pits or trenches are carried out. Laying the foundation on screw piles does not require such actions, which reduces labor intensity and increases the speed of the process.
At the second stage, the marking of the installation of piles under the foundation is made: markers are placed at intervals of about 2 m - the places where the piles will be twisted in the future. Based on the purpose of the building under construction, piles of a certain diameter and weight are selected.
The next step is to tighten the screw supports. Shallow drilling is carried out at the markings. Piles are screwed into the ground like a screw. This work can be done both with the help of mechanisms and by hand.
On a note! On average, laying a pile-screw foundation can take about two days.
After installing the supports, they are vertically aligned and the hollow part of the pipes is poured with sand-cement mortar, which increases the stability of the piles and protects them from corrosion.
The last stage in the installation of the foundation is the unification of the supports with a monolithic grillage and the subsequent creation of the basement of the house.
Pile-grillage foundation
As soon as the piles are installed, they are connected with a monolithic grillage, on which the entire building is subsequently erected. This structure evenly distributes the load on the foundation supports and is the basis of the basement of the house.
The grillage is made in a strip or monolithic way and is made of wooden beams or reinforced concrete slabs that unite the foundation supports. Depending on the location, the pile foundation with a monolithic grillage is divided into: high, intermediate and buried.
Important! Due to the natural drop in soil temperature during the cold season, a phenomenon occurs inside the soil, called frost heaving of soil by geologists.
The moisture in the soil freezes in winter and increases in volume. This can lead to the extrusion of the foundation, and therefore the house. To counter this phenomenon, the piles are united with a high grillage at a height of 0.1 - 0.15 m above ground level. Typically, such a grillage is installed under buildings that are lightweight.
The intermediate grillage is placed at ground level using a sand or gravel pad. The disadvantage of this type of grillage is that it is not protected from frost heaving of the soil, which can pull out piles and damage the masonry.
The low grillage is located below ground level. It is lowered to a depth of freezing in heaving soils; on weakly heaving soils, the structure is laid 0.2-0.3 m below ground level.
When building a private house, a high pile foundation with a monolithic grillage is most often used. When arranging the foundation on screw piles, a wooden beam can serve as a grillage, which is fixed with anchor bolts.
The pros and cons of the pile-grillage foundation are as follows:
Advantages of the pile-grillage foundation:
- affordable price;
- the ability to install it yourself;
- quick installation;
- reliability - almost no shrinkage.
Cons of the design:
- strict calculation of the pile foundation grillage;
- used only for light buildings;
- the effect of corrosion on the steel part.
Pile foundation. Pros and cons
One of the main advantages of a pile foundation when building a house is affordability and labor costs. This is the most attractive factor for those who build a house with their own hands.An important advantage is also the speed of arrangement of the foundation and the ability to work at any time of the year.
Also, the advantage of this option for installing the foundation is the stability and reliability of the structure: the blades of the screw piles compact the soil well. In addition, this makes it possible to equip the foundation in almost any soil.
The disadvantages of the foundation on piles include possible shrinkage of the structure. In order to avoid this phenomenon, it is necessary to carry out a study of the soil and precise calculations with a drawing of a pile foundation with a grillage. Thorough preparatory work can be attributed to the disadvantages of the pile foundation.
The quality of the material used is of great importance in arranging the base on piles. If the protective layer is broken, the steel structures of the foundation are subject to corrosion.
Considering the pros and cons of the pile foundation, choosing it as the basis of a country house is considered the most optimal and promising today.



















