Every owner of a country house knows how important it is to have not only a car, but also a specially equipped area for it, where you can create comfortable conditions for storing and servicing the car. Today there are several options for placing a garage on the site. The article will consider projects of houses with a garage under one roof: the advantages and disadvantages of such a solution, as well as the features of planning and construction.

When building a house, it is important to take into account the size and functionality of all utility rooms, including the garage.
Content
- 1 Projects of one-story houses with a garage under one roof: advantages and disadvantages
- 2 Floor plan of a two-story house with a garage
- 3 General features of the design and layout of a house with a garage
- 4 Houses with a garage for 2 cars: projects, planning and construction features
- 5 Styles and materials for building a house with a garage under one roof: photo examples
- 6 Projects of houses with a garage and a bath under one roof: combination features
Projects of one-story houses with a garage under one roof: advantages and disadvantages
Many argue that garage should be located separately from the building in order to avoid inconvenience associated with its use. However, it often happens that the area of the site does not allow a separate space to be allocated for this, and you have to resort to combining these two buildings, combining them under one roof. And it's worth noting that such a solution has its advantages:
- the financial costs of construction will undoubtedly decrease if this option is preferred. Erection of two separate buildings is always more expensive than one complex building;

The presence of a garage under the same roof with the house will allow you to comfortably service the car in the cold season
- it is much more convenient to operate a garage combined with a house, because in cold weather you can get into the car without going outside. In addition, such a combination allows you to store in the garage a lot of things necessary for the household, for which it would be inconvenient to go to the garage if it was located separately from the house;
- thanks to this combination, space is significantly saved. Such rational solutions allow you to place everything you need even on the most modest size of the site.
The disadvantages of this solution include the need for high-quality heat and sound insulation between these two rooms, because otherwise, the cold from the garage will penetrate into the adjacent rooms, and the sound of the car engine running will interfere with household members.

By combining houses with garage, you can significantly save the useful area of the site
Projects of houses with a garage under one roof: placement options
In the process of choosing or developing a project, it is important to think in advance how these objects will be located relative to each other. And in this case, the main question arises just about the garage, since the location of the house is almost always obvious.
The garage can be located according to one of three principles:
- an underground garage is located directly under the building itself, roughly speaking, in the basement or on the basement floor. This solution allows you to significantly save space, as well as reduce the amount of necessary work with the soil. In addition, this is ideal if there is a need to build a garage attached to the house on a plot that is located on a slope;
- the above-ground lower garage is located at the base of the house, so that all living quarters are, as it were, above it. This method is also effective in preserving the space of the territory, however, in this case, the height of the house rises;
- a side ground garage is located on the right or left side of the house. Its main convenience is the ability to complete it to an already finished house, because in the case of the first two options, both premises must be designed and built simultaneously.
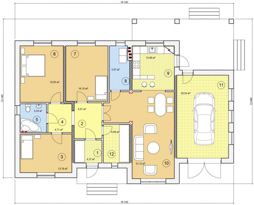
One-story houses with a garage: photo projects
One-story houses are much more common than buildings with two or three floors. This is due to many factors, including the simplicity of arranging the foundation for it, as well as the simplicity of project implementation. After all, a one-storey building does not require floors or stairs. In the matter of combining garage one-story houses are the most convenient, since they eliminate the need to create differences in roof level.

The side ground garage is considered one of the most practical and convenient options for placing a utility room for a car.
It is extremely important to pay due attention to the layout of a one-story house with a garage, and to arrange all premises in such a way as to avoid unwanted neighborhoods. For example, this applies to the nursery and the garage, which should not be adjacent. Ideally, there should be a utility room, kitchen or bathroom between the living rooms and the storage room.
Helpful advice! It is not at all necessary that the garage and the house are located close to each other. Leaving a small passage between them, which can become, for example, a pantry, you create a kind of air cushion that will provide additional heat and sound insulation.
If we talk about the specifics of arranging a roof for such a structure, then for this purpose they most often resort to arranging a gable roof, since this is the simplest and most affordable option in financial terms. However, some owners who do not want to use standard solutions for their home find more interesting options.
So, a pitched roof can be designed above the house, and a flat roof over the garage. Such a broken structure looks great, but the drainage system in this case requires especially close attention.
Floor plan of a two-story house with a garage
The owners of the site can resort to the construction of a two-story house for various reasons. Someone is guided by the number of people living in the house, while someone just wants to build a large and luxurious house. But when it comes to projects of 2-storey houses with a garage, most often this is dictated by the lack of free space on the site. Therefore, such an option to have comfortable housing with all the amenities, even on a very modest territory, for many becomes the only solution to the problem.
There are a huge number of layouts of a two-story house with a garage.Among them there are both fairly simple designs and complex multi-level projects. However, the most common option is considered to be this: the garage is located in the basement, on the ground floor there is a living room, a kitchen, a bathroom, as well as utility rooms (storage room, furnace), on the second there are living rooms. Stairs are used to connect all levels.

When building a two-story house with a garage, it is important to develop a high-quality ventilation system
Helpful advice! If you expand the basement, then the additional space can serve as a place for arranging a veranda. Having looked at the photo of a 2-storey house with a garage, you can be sure that such an addition gives the building a certain refined look. Moreover, such a solution will allow you to have an additional equipped recreation area.
Another photoproject of a two-storey house with a garage, which is definitely worth paying attention to - an elongated building, at the end of which there is a garage. This option is very convenient when it comes to the need to exit and enter, since the gates of the car box will have an exit directly to the street.
But in this case, it is best to provide for the presence of two entrances to the house at once - from the outside (that is, from the side of the garage) and from the yard. As in the previous project, it is best to have non-residential premises in the neighborhood (bathroom, kitchen, pantry), and equip all living rooms on the top floor.

House project with gable roof and built-in garage
General features of the design and layout of a house with a garage
Regardless of which particular plan for a house with a garage you choose, there are certain rules on the observance of which the success of the implementation of the venture depends. Therefore, when choosing a building configuration, it is very important to know the nuances of combining such diverse premises as living rooms and a garage. Let's also pay attention to some subtleties:
- every decision made in favor of a particular layout option must be coordinated with the fire and sanitary services. This is extremely important both for the comfort of living and for the absence of problems when checking by the relevant services;
- most of the projects involve the simultaneous construction of a house and a garage, since these structures will be installed on a common foundation. The main danger in case of non-observance of this recommendation is the multilevel structure of the foundation, associated with the subsidence of the part that was built first;
- a powerful ventilation system is another mandatory requirement for buildings of this type. Otherwise, all unpleasant odors that are natural for the garage (smoke, oil, gasoline) can penetrate into the residential part of the house, causing discomfort to households;
- waterproofing is equally important. In order to ensure a suitable level of humidity in the car unit, it is important to lay high-quality drainage at the planning stage.
Helpful advice!In the case of placing the garage on the side after the house has been built, it is extremely important to maintain the wall bunch. This must be incorporated in the project and observed at all stages of construction.

3D design of a building with an attic, which involves the simultaneous construction of a house and a garage
Houses with a garage for 2 cars: projects, planning and construction features
Since there is often not enough space on the site to build a separate garage, you often have to deal with the fact that the family has not one, but two cars at once. Of course, this is the most popular and convenient form of transport, but how can you solve the problem of storing and maintaining another car? Consider projects of houses with a garage for 2 cars.
Related article:
Do-it-yourself ventilation in the garage. Scheme, calculation and ventilation methods for the garage
Ventilation device in the cellar and basement of the garage.Metal garage ventilation.
What are the requirements for a house project with a garage for 2 cars?
In order for the use of garages in subsequent years to be comfortable, even at the planning and construction stage, it is necessary to adhere to certain standards, among which the main ones are:
- the area allotted for one car should not be less than 18 m². First of all, this is necessary so that almost any passenger car can be put in the garage. After all, even if today the dimensions of your car are very modest, in a few years everything may change, and this must be taken into account;

House project with garage for 2 cars
- the standards provide for the availability of free space as follows: 70 cm each on the right and left, and at least another 70 cm of headroom for the front and rear of the car;
- the gate to the garage should be such that the exit is not difficult. Typically, the standard dimensions are 2.5x2 m in width and height, respectively. The garage height standards in a private house also provide that the ceiling of the car box must be at least 2.2 m.
Helpful advice! Since the car is made of metal, it is easy to corrode if stored under improper conditions. Therefore, it is advisable to provide high-quality heating and ventilation systems.
Styles and materials for building a house with a garage under one roof: photo examples
When viewing photos of garages in private houses, it should be noted that often this part of the building looks inorganic with its environment. Often, the garage looks unnatural against the background of an exquisite house, spoiling the perception of the whole picture with its appearance.

The presence of a garage in the house can lead to the emergence of "islands of cold", so it is extremely important to pay due attention to the insulation of the building
Consider what materials can be used for construction, as well as which design styles are most suitable for construction.
- A Russian estate or, more simply, a house made of timber, with or without a garage. As a rule, such structures made of wood are popular outside the city and are rarely erected within the boundaries of large settlements. Looking through the projects of houses from a bar with a garage, you can see that such a familiar material as wood can be used to implement very unusual, but rather practical ideas.
- The English-style house is distinguished by its simplicity and sophistication at the same time. Simple lines and geometric shapes can be complemented by columns or stucco, which sets the house apart from the rest. A wide variety of materials can be used for construction. Including can be found projects of houses from foam blocks with a garage.
- Empire style is the most solemn style in which every feature of the building should create a festive mood. It is far from the easiest solution when it comes to the need to arrange a garage attached to the house. Photos, however, perfectly demonstrate how effective the result can be if you approach this issue with due attention.
Helpful advice! Among non-standard ideas, you can consider the project of a one-story house with an attic and a garage. The implementation of such an idea will create additional living space even if the garage and upper rooms have to be added to an existing house.
The best materials for the implementation of projects of houses with a garage: photo examples
As for the choice of the most suitable building material, then it is worth carefully weighing all the advantages and disadvantages of each option. Let's take a quick look at the most popular ones:
- wooden houses "breathe" the best and are highly environmentally friendly.As for the main claims - flammability and a tendency to decay, modern processing compounds have long ago solved these problems. So the only significant drawback of this solution is the high cost of the material;
- foam concrete or aerated concrete blocks are materials with excellent thermal insulation characteristics. Among other advantages, it is worth noting excellent soundproofing properties, incombustibility and a fairly high strength indicator. However, do not forget about the disadvantages, for example, in the case of using a cement-sand mortar for masonry, the presence of cold bridges is ensured, and special glue will cost several times more;
- brick has been the undisputed leader for many years. The features of this material include a large weight, which is the reason for the need to lay a reliable foundation. In addition, the cost of a brick cannot be called low, which, nevertheless, is fully justified by its strength, thermal insulation properties, and also a long service life.
Projects of houses with a garage and a bath under one roof: combination features
Despite the fact that the implementation of the plan for a one-story house with a garage is in itself a difficult task, many owners do not stop there, additionally creating other structures - a gazebo, a sauna, a veranda, etc. Often envisaged in projects of one-story houses with a garage and a terrace with a sauna, which by themselves would take up too much free space on the site.

Country log house can be designed with maximum convenience, for example with a built-in sauna and garage
Such a solution has its own difficulties, but at the same time retains the advantages that are in the case of any combination - saving time, effort, building materials. In addition, there is no need to travel a significant distance from one object to another.
You can also consider an interesting option for a more rational use of available resources. For example, you can heat the garage from the stove, which is located in the bath. Sometimes this option is also used for partial heating of the house. However, in this case, it is important to design this moment so that the heat from the stove does not disappear, but can be used.

House project with garage and sauna under one roof
Important! This heating method is best used as an additional heating. Moreover, this method is not very effective when it comes to rooms with an area exceeding 100 m².
Looking through photos of one-story houses with a garage, as well as more complex structures, which include an attic or a bath, one cannot help but notice that such a solution is not only an opportunity to save money. For many, this is an opportunity to design a house that is as comfortable to use as possible, which allows you to conveniently store and maintain the cars in your family.










