The housing issue is relevant for a modern person. Buying a new apartment can cost a lot, and utility bills are growing every month. The best option in this case is to build your own home. This will later save money and leave housing for future generations. If you need the layout of a two-story house 6 by 6 m, drawing can be found on the Internet or ordered from a specialist.
Content
- 1 The advantages of the 6 by 6 m layout
- 2 Features of the layout and arrangement of rooms
- 3 Porch or terrace layout
- 4 Common mistakes when planning a house
- 5 The plan of a two-story house 6 by 6 m: the choice of material for construction
- 6 Layout of a two-story house 6 by 6 m: the main stages
- 7 Video review of two-story houses 6 by 6 m: layout options for the second floor with one and two rooms
The advantages of the 6 by 6 m layout
A house measuring 6 by 6 m is the best option for organizing housing space for the comfortable accommodation of the whole family. If you correctly make the internal breakdown, you can achieve that the area of usable space will be 70 m². A two-story layout option will allow you to place a large number of rooms for different purposes inside the building.
In addition, when planning a two-story house of 6x6 m, you will save significant money. After all, the larger the area, the higher the construction costs, and the 6 by 6 format is an excellent option in terms of the ratio of price and the resulting usable area of the house.
Features of the layout and arrangement of rooms
This format of a residential building implies an almost complete absence of corridors. This means that you will have more free space for living rooms, and you will not have to install too long communications. At the same time, you can easily divide the space into functional zones thanks to the walls and partitions, and two floors make it possible to distinguish the active and passive parts. The active part of the house usually means the living room and kitchen, and the passive part of the house usually means the bedroom, bathroom and other personal areas.
When planning a two-story house of 6x6 m, on the ground floor, as a rule, there is a dining room, a recreation room, a living room and other common areas. On the ground floor, it is customary to receive guests, hold family holidays and business meetings. The second floor is a purely personal space. If you plan to live in a house together, then you can place one large bedroom, and in the case of a large family, several private rooms.
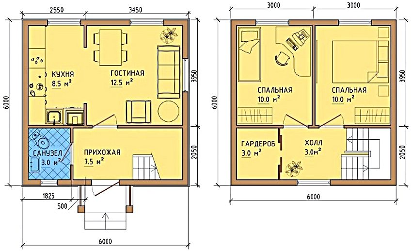
Classic layout of the first floor
From the entrance hall, located on the first floor, there should be access to the bathroom and stairs to the second floor. Behind a small partition or wall, you can place the kitchen, dining room and living room. It is best if these rooms are separated only with furniture, which will create a feeling of spaciousness, the illusion of a space of a larger area than it really is. It is worth placing the kitchen as close to the hallway as possible so that you do not need to go through the entire floor into it.
Helpful advice! The best option is to place the bathroom close to the kitchen. This will allow the use of the same communications for the two rooms.
It is better to place the stairs near the hallway and separate it with a partition. So people going up or down the stairs will not disturb anyone, and in the living room it will be possible to create a secluded and cozy atmosphere.
The complexity of the layout of a two-story 6x6 house is that a large number of rooms must be located on the first floor. If you plan to make an autonomous heating system, you also need to consider the need for a boiler room. This also includes a pantry, vestibule, and more for your taste.
The most acceptable version of the bathroom is a combined one, with an area of up to 3 m². This space is quite enough for installing a toilet, sink and shower or bath.
For the vestibule, only 1 m² is also enough, but the hallway should be made larger - 2-2.5 m². In such a room, several guests will be able to freely unfold, while it will not take up too much space from the main area of the first floor.
What you shouldn't save on is the kitchen. The optimal area of this room is 8-10 m². In this case, it will be possible not only to comfortably cook food in it, but also to use it as a dining room. And if you buy built-in furniture for the kitchen, it will help to win some more space.
On the ground floor, you can also place a small bedroom, which, if necessary, can serve as a guest room or a nursery.
Also, when planning a two-story 6x6 house, the correct arrangement of windows in the rooms is very important. For example, for a bedroom, they should face the sunny side - this way you will not only create a cozy atmosphere in the room, but also save on lighting.

Project of a two-storey house 6x6 m. Plan of the first floor: 1 - entrance hall; 2 - utility block; 3 - bathroom; 4 - bedroom (nursery, study); 5 - living room; 6 - kitchen
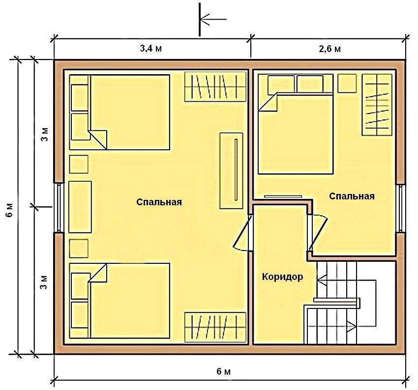
Layout of the second floor
The area of a one-story house is 6 by 6 less than the area of an average apartment, therefore it is much more expedient to build a house on two floors. If you organize the layout correctly, such a building can safely accommodate a family of 4-5 people.
It is recommended to start planning a two-storey 6x6 house immediately from the second floor. First, you need to divide the entire floor into three conventional parts. The first of them is the corridor that you enter by going up the stairs. There should be free access to other rooms from this corridor. As for the location of the corridor, there are two options:
- Exactly in the center of the floor - if the rooms are planned to be the same size.
- Slightly away from the center - with different areas of the premises.
Helpful advice! If you are planning a corridor for the entire length of the floor, you must take into account that its length will be 5-6 m. To save space in the bedroom at the end of the corridor, you can place a storage room or a small dressing room.
The second floor of a private house is the so-called passive zone. It usually has two bedrooms. If you have a child in your family, then one of the bedrooms can also serve as a nursery.
If you live alone or alone, it is quite possible to make a comfortable office from the second room.Due to the fact that it will be located on the second floor and isolated from the core not only by ceilings, but also by a corridor, good sound insulation will be created, so you can be sure that even a noisy party on the first floor will not interfere with your work or sleep. In addition, since the passive zone of the house is restricted from access by unauthorized persons, you will not have to worry about someone suddenly invading your personal space.
When planning a two-story house of 6x6 m on the second floor, you can abandon a wide corridor or hall, and instead equip a second bathroom. In order not to pull unnecessary communications, it can be done right above the bathroom, which is located on the first floor. Firstly, it will give you the opportunity not to go down to the active zone to shower or go to the toilet. Secondly, this creates the possibility of separate use of the bathroom by guests and owners of the house.
Remember that the arrangement of a bathroom on the second floor is not only convenient, but also quite expensive. This includes the purchase of a second set of plumbing fixtures and the laying of communications, so it is worth considering several times whether it is so necessary.
Porch or terrace layout
If we consider the layout options for two-story houses 6 by 6 - photos of such buildings are widely represented on the network, it can be seen that many owners of suburban buildings prefer to equip their dwellings with a small terrace or at least a porch. This solution has several advantages and disadvantages.
The good thing about the porch is that it is very convenient to be on it in inclement weather, and the canopy above it will help to open the front door without any problems during rain. In addition, you can leave your shoes on the porch during the warmer months. This is where its functionality ends and purely decorative functions begin.
The porch area, as a rule, does not exceed 1 m², but you can decorate it as your imagination tells you. Many owners of wooden buildings prefer to make a carved wooden porch, but if your house is made of a different material, there is a huge variety of design solutions.
The terrace is a much more functional element of the building. Much more materials and time are spent on its construction than on the porch, but it also gives much more advantages. The most popular uses for a terrace are:
- Alcove. Place some comfortable chairs on the terrace or a benchand you will get a great place to spend time outdoors.
- Summer dining room. If you add a dining table to the chairs, you get a cozy dining room, where it will be pleasant to eat with your family, meet guests or celebrate significant dates.
Helpful advice! The terrace can easily be turned into a green gazebo. To do this, you need to stretch thin cords around its perimeter and plant any climbing plants: ivy, grapes, etc.
When studying the methods of planning two-storey houses 6 by 6, photos of buildings of this size can be found on the Internet, one cannot but notice that the terrace is not only a functional, but also a decorative element. If you are friends with wood carving, the terrace can be turned into a real work of art. For amateur gardeners, planting plants would be a good option - a terrace in greenery and flowers will become a favorite place to relax, communicate with relatives, as well as hold family celebrations.
Common mistakes when planning a house
There are a number of common mistakes that should be avoided when the layout of a two-story building:
- placement of communications away from wet areas.This creates additional costs for laying pipes, as well as inconveniences associated with the long route length;
- living rooms without natural light. Always try to arrange bedrooms so that as much sunlight as possible gets into them, which will positively affect your mood and well-being;
- one entrance to the house. Ideally, a private house should have 2-3 entrances, each of which will have a different purpose. So, through the front entrance you can meet guests, and from the courtyard you can go to the personal plot;
- exit from the bathroom or utility rooms to public areas. This will not only interfere with your guests, but also violate established sanitary standards;
- neglect of hallways. For domestic weather conditions, it is very important to have a place in the house where you can change clothes and take off your shoes, without going into the public area;
- walk-through living rooms. This layout will create discomfort for you and your guests;
- no pantry or utility unit. You should not save space at the expense of this room - the building must have a room where household equipment will be stored.
Plan of a two-story house 6 by 6 m: the choice of material for construction
The modern construction market offers a huge number of different materials for building houses. Their choice depends solely on your financial capabilities and personal preferences. Also, when choosing a material, the functional purpose of the building is of no small importance.
For example, if it is planned to live in the house all year round, it is worth using massive structures that can provide a high level of thermal insulation, as well as withstand temperature extremes, changes in humidity and other natural factors.
A summer house can be built from lighter and cheaper materials. In addition, if the house is not planned to live in the cold season, there is no need for a heating system and a number of other communications.
Below we will consider various options for materials for construction with all their advantages and disadvantages.
Related article:
House with an attic: photos, projects, planning features. Various layouts. Advantages, disadvantages and features of residential attic floor layouts. Create a project yourself.
House made of stone or concrete
Concrete foam blocks are one of the most common materials for building a home for all seasons. Foam concrete boasts the following advantages:
- a high level of sound insulation - such a building can be erected both in the forest and in a busy summer cottage village: no sounds from the street will penetrate behind thick walls, and you can calmly go about your business;
- thermal insulation - concrete walls do not let the cold through from the street and retain heat inside the room, therefore a concrete house is also a saving on heating;
- fire safety - concrete does not burn, so the level of fire safety for a building made of this material will be much higher than that of a wooden one;
- resistance to temperature extremes and corrosion - concrete blocks do not expand or shrink when the ambient temperature changes, they tolerate high humidity well and do not need additional care after the end of construction.
In addition, it is possible to build a building from concrete or stone blocks quickly and for relatively little money. It can take anywhere from two weeks to a month to complete an entire building, so if you need to build a house in a short time, concrete blocks are your option.
Another plus of this material is that there is no need for a massive foundation.You can limit yourself to a simple strip design, which is quickly assembled, does not require a lot of materials and time to become suitable for further construction.
When planning a 6x6 two-story house made of concrete, you must also take into account the disadvantages of this material. One of them is the need for additional finishing of concrete walls, since without facing they look rather gray and unprepossessing. Fortunately, the use of modern finishing materials allows you to quickly and effectively solve this problem.
The situation is a little easier with stone blocks. Walls made of natural stone look good even without additional finishing, so if you need an impression of massiveness and inaccessibility from the house, the external walls should be made of natural stone.
Choosing natural stone as a material for construction, it is worth exploring the various layout options for a two-story 6 by 6 house - photos and projects found on the network. You will find that often walls are not entirely made from rough stone blocks. Only the lower part of the wall can be made of them, or only the first floor.
Advantages and disadvantages of a wooden house
Wood is considered to be an environmentally friendly and cheap material, therefore it has recently become fashionable to build private houses from it. But this material, like everyone else, has a number of disadvantages.
The first of them is an increased fire hazard. A structure made of logs or planks is highly flammable and burns well. To avoid this, it is necessary to carry out a special impregnation of the material, which will make it less susceptible to fire.
Also, special impregnation must be done to protect the wood from rotting and parasites.
You can build a house from several groups of wooden building materials:
- glued or solid timber;
- rounded logs;
- sandwich panels.
The most economical option in terms of financial costs and time is house from a wooden bar... There are two types of timber - solid and profiled. Each of them has its own characteristics that should be considered during construction.
The profiled bar got its name because it contains a profile with crown grooves or spikes. This allows you to assemble a building from it quickly and without much effort. In fact, when constructing a building from profiled logs, you only need to purchase the material and then assemble the house from the finished elements.
The profiled timber has the following advantages:
- such a house will be resistant to deformation, and the features of the material increase the performance of the walls;
- low construction costs in terms of time and money;
- walls made of profiled timber do not need additional finishing or cladding;
- moisture does not enter the mezhventsovy seams, therefore, there are no foci of decay;
- the timber provides a high level of thermal insulation and good protection against blowing.
Of the shortcomings of the material, it is worth highlighting the following:
- increased flammability;
- the possible occurrence of cracks when the timber dries out in the warm season, therefore it is recommended to purchase material that has passed chamber drying;
- the thickness of the timber is poorly suited for using a house from it in the cold season, therefore, during construction, additional wall insulation must be done;
- redevelopment or add-on timber houses is impossible, so you need to think carefully project future construction.
The solid timber also boasts an affordable price and ease of installation. A house from it can be easily built on your own and without the use of specialized equipment.Of the minuses, it is worth highlighting the low level of thermal insulation, the ventilation of the seams, susceptibility to decay, and a high level of cracking in the warm season.
Useful advice! If you want your wooden house to stand for more than a dozen years, the best material for its construction is dried and specially processed rounded logs. This is the most durable and resistant type of wood materials.
Remember that when planning a two-story 6x6 house, the choice of material is one of the most important points, since many of the operational characteristics of the future building depend on it. Also, the type of foundation, the need for additional finishing, the complexity of communications and many other points depend on the material.

Location of premises on the ground floor timber houses
Layout of a two-story house 6 by 6 m: the main stages
The project of your future home can be entrusted to professionals or you can create it yourself. In the first case, you are guaranteed to get a high level of quality, and in the second, exactly the layout that you like best. In any case, to create a quality project, you need to do the following:
- Create a detailed schematic drawing on a piece of paper. At the same time, it is very important to observe all proportions. Ideally, you can schematically indicate the location of furniture in the house.
- Decide on the number and functionality of the premises. At this stage, it will become clear which rooms are best combined to save space or reduce, and which can, on the contrary, be expanded.
- Indicate on the drawing the dimensions of each of the rooms, taking into account the thickness of the walls and the location of the communications.
- Designate the roof structure, the presence and layout of external extensions such as a porch or terrace, the location of windows and doors.
A photo of the layout of a two-story house 6 by 6 of a typical sample can be easily found on the Internet. Using ready-made schemes may somewhat limit your design imagination, but this will save you the risk of making common mistakes.
As for the financial side of the issue, it all depends on a large number of factors. A small private house made of wooden beams can be built for 400-500 thousand rubles, but a building made of blocks will cost you 1-1.5 million. In any case, it will be much cheaper and more reliable than an apartment with the same area.





























