Many residents of apartments with a standard layout are unhappy with the basic data provided to them. And this is quite understandable, because the living space is often divided in such a way that living for the family becomes uncomfortable. If your goal is to redevelop an apartment: what is possible and what is not - one of the most common questions at this stage. Consider all the prohibitions, as well as the recommendations of experts in this area.
Content
Redevelopment of an apartment: what can and cannot be done
Almost all changes that residents of apartment buildings can afford are controlled at the legislative level. Therefore, the basis of any activity is the Housing Code, which provides for a special section aimed at regulating this issue.
Redevelopment bans
Let's consider in detail what is strictly forbidden to do as part of the redevelopment of an apartment.
It is forbidden to carry out any construction work aimed at the destruction or deterioration of the technical characteristics of the load-bearing walls (partial destruction, thinning, creation of additional loads). In order for the redevelopment to be carried out safely for everyone living in the house, refer to the technical passport of the apartment. All load-bearing walls are marked on the plan.
The ban is established not only for the demolition of these walls, but also for the creation of additional loads on them. The installation of any heavy partitions requires an appropriate permit. In case of apartment redevelopment without approval, the Housing Code provides for liability in the form of a fine. For redevelopment of an apartment without permission, you will have to pay about 4 thousand rubles.
Important! If you are faced with the fact of illegal redevelopment of an apartment, the housing service staff will tell you where to complain.
How to understand which wall is bearing? First, all external walls must be load-bearing. Secondly, these are the walls that separate one apartment from another and from the entrance. To get accurate information, just look at the apartment plan.All load-bearing walls are much thicker than wall partitions, and are marked with special shading or a bold line.
It is forbidden to use common building communications for redevelopment of your own apartment... In this case, most often they mean the use of hot water and a heating system. For example, to install warm floors in an apartment, it is necessary to provide the room with an additional water heating device. Otherwise, you risk creating a high load on public communication, and either depriving some of the residents of this convenience, or significantly lowering the temperature of the water in the tap. For the same reason, it is forbidden to install additional batteries on balconies and loggias.
Disruption of the ventilation system, water risers or gas pipes is prohibited.... Any work related to affecting these systems must be coordinated with the relevant organizations and carried out only after obtaining permission.
Naturally, the question arises of combining the kitchen and living room, because this is one of the most common redevelopment options in small apartments. There are two options for solving the problem:
- replacement of the gas stove with an electric one (in this case, even the complete unification of rooms into one room is allowed);
- installation of an additional door or window opening in the kitchen (complete combination of rooms by demolishing a wall or creating an open arch is not allowed).
It is forbidden to increase the area of non-residential premises by reducing residential... This means that it is impossible to take part of the room to expand the pantry or corridor. In addition, the Housing Code does not provide for the redevelopment of an apartment in a panel house in such a way that living rooms are left without a source of light or heat.
Note! When redeveloping, do not forget that the resulting living room area should not be less than 8 m².
It is forbidden to radically change the location of the bathroom... It is not allowed to install a bathtub, sink or shower directly above the living rooms of the neighbors below. To expand the bathroom, you can use only non-residential adjacent premises, for example, a storage room, a corridor, etc.
Changes that are allowed as part of the redevelopment
In order to understand how to make an apartment redevelopment on your own, to legalize all the changes and never return to this issue again, consider what is still allowed for residents of apartment buildings and how much it costs to legalize the redevelopment in an apartment.
The fact that the Housing Code provides for and permits certain changes does not mean at all that their implementation can be carried out in a free manner and be not supported by any documents. The fact that some changes are allowed does not exempt from the need to legalize the redevelopment of the apartment. So what can be improved on your living space?
It is allowed to demolish walls that are not load-bearing... They can be dismantled in whole or in part, moved, modified. In addition, new walls can be erected to divide the existing space. However, here one must not forget about the permissible limits of the load on the floor of the building. It is very difficult to make calculations on your own, so it would be better to contact a specialist who has all the information necessary for this. In addition, he will tell you how to agree on the redevelopment of the apartment.
Helpful advice! If, in the process of an agreed redevelopment of the apartment, you decide to install an additional wall or move an existing one, pay attention to drywall.It is a lightweight material, very convenient in installation and decoration.
You can increase the size of the living space by dismantling the wall between the existing room and the loggia... It also requires the consultation of a specialist who can suggest the most suitable redevelopment option. Since it is impossible to install an additional battery on the balcony, you need to think about how to make sure that the loggia does not become an additional source of cold.
The main emphasis in combining the balcony and the room should be done on the insulation of the outer wall. If all materials are correctly selected and of high quality, then a small electric heating device will be enough to maintain the required temperature in the room.
The expansion of the bathroom is allowed due to adjacent non-residential premises, such as a corridor and a storage room... The wall between them can be pulled down and enlarged, thus the size of the bathroom. If you receive the appropriate permission, you can also install the jacuzzi in the apartment. Although such a bathtub is quite heavy, with proper arrangement of the floor, its installation will not create a significant load on the building.
With the participation of the relevant services, changes in the operation of gas and water supply systems are allowed... A special license allows workers to make calculations and work with these communications.
You can increase the area of the room using non-living space... Almost any options are permissible here, with the exception of those when it comes to combining a room with a kitchen, which has a gas stove.
Allowed to divide existing rooms with additional partitions... As an example, you can see the plans to redevelop a two-room apartment into a three-room apartment.
The cost of approving the redevelopment of an apartment is quite low, and it is quite possible to do everything according to the requirements of the law. You can find out how to get permission to redevelop an apartment in the housing service of your area.
How to legalize apartment redevelopment yourself
In order to obtain permission for housing redevelopment on your own, you must go through several mandatory steps:
- obtain permits from the housing inspection to carry out work;
- draw up a new apartment plan;
- carry out all repair work related to redevelopment;
- invite and accept a commission consisting of employees of the housing inspection to verify and register the changes made.

It is possible to carry out repair work only after obtaining the appropriate permission from the BTI
How to legitimize an apartment redevelopment already made
If you do not want to be held liable, illegal apartment redevelopment is not for you. However, let's assume that the changes were made earlier, without your participation. How to arrange an apartment redevelopment yourself? Let's consider the procedure in this case.
According to the legislation of the Russian Federation, namely 4 of part 29 of article of the Housing Code, the redevelopment already carried out can be registered only through the court. To do this, you must provide the following documents:
- documents confirming your ownership;
- technical passport for the apartment (both new and old versions);
- a certificate from the sanitary and epidemiological station;
- conclusion on the state of the supporting structures (it can be obtained from a licensed design organization);
- statement;
- conclusion of the State Fire Supervision Service on the compliance of the redevelopment with all fire safety standards.
To find out more about the procedure for agreeing on the redevelopment of an apartment, you must contact the Bureau of Technical Inventory.Experts will tell you what is needed to properly legalize the redevelopment of an apartment, the cost of the procedure and what documents need to be prepared. You will need to provide a certificate of ownership and a technical passport for the apartment, on the basis of which an application for a new technical passport will be drawn up.
Unregistered apartment redevelopment can lead to many different consequences. This also applies to the transfer of housing from one owner to another. And we are talking not only about the sale and purchase transaction, but also about the exchange, acceptance as a gift and inheritance. That is, if it is necessary to carry out any real estate transaction, the real layout of the apartment must match the one indicated in the documents. Otherwise, there will be a lengthy trial and re-registration.
Another case that prevents the full use of their rights as an apartment owner is a change in the boundaries of the living space. This can be done by partially joining the staircase. According to the law, any change in the established boundaries entails the recognition of existing documents as invalid. So it is likely that you will have to prove your ownership in court if the extension of the living space was carried out without the permission of the relevant organizations.

Removal of construction waste is regulated by legislative norms, for failure to comply with a fine of 3,000 rubles or more
As you can see, initially it is much easier to go the legal way than after the redevelopment has already been completed. The price of an apartment project for approval will also be lower if everything is done on time and consistently.
How much does it cost to redevelop an apartment
Before you start changing your living space, you need to find out how much the redevelopment costs in the apartment. BTI provides a number of paid services, which cannot be dispensed with. The cost of paperwork for redevelopment of an apartment is quite acceptable - about 5 thousand rubles. The total cost of an apartment redevelopment project can range from 20 to 100 thousand rubles.
Below is a list of expenses for self-approval of apartment redevelopment:
- payment for a new technical passport (the cost of agreeing on the redevelopment of an apartment largely depends on the region of your residence and the area of the apartment);
- state fee for obtaining a new cadastral passport;
- costs associated with the conduct of legal proceedings (if an already carried out redevelopment is being drawn up): a court fee and, if necessary, payment for the services of a lawyer;
- preparation and approval of a new apartment project, which is issued by a licensed organization.
Important! Do not delay and it is better to immediately order an apartment redevelopment project. At best, you simply cannot sell it if necessary, and at worst, you face a very large fine.
Redevelopment options for apartments of various sizes
Among the most radical solutions to expanding living space is the creation of a studio apartment. To do this, all walls that are not load-bearing (except for the walls of the bathroom) are demolished and replaced with light translucent ones. partitions... This option is perfect if the apartment is home to one person or a young couple.
Consider various options for redevelopment of three-, two- and studio apartment.
Related article:
Living room combined with kitchen: photos of the best interiors. Where is such a combination appropriate? Advantages and disadvantages. Types of planning, methods of functional zoning of space. Choice of style.
Redevelopment of a three-room apartment in Khrushchev
Redevelopment of a three-room apartment in a panel house will take you a lot of time and effort.Therefore, before starting the installation, develop the most detailed plan and coordinate it with the relevant services. This will help you avoid unnecessary hassle and save on the cost of apartment redevelopment.
But what, it would seem, can be improved in an apartment with as many as 3 rooms? It often happens that living alone or three together, a family does not need so many rooms, but the size of the kitchen leaves much to be desired. In this case, they make (as seen in numerous photos) the redevelopment of a 3-room Khrushchev apartment, combining an adjacent living room with a kitchen. You can see examples of successful solutions for apartments of this type in the photo of the redevelopment of a 3-room apartment of 64 sq. m or other area.
In the process of redeveloping an apartment, the combination of the kitchen and the room into one zone is almost painless. All you need to do this is to agree on the redevelopment of the apartment yourself.
Particular attention should be paid to the redevelopment of a 3-room apartment of the P-44T series. An apartment of this type has a loggia, which can perfectly help expand the space.

Combination in Khrushchev's kitchen and the living room allowed to get a spacious dining area
Redevelopment options for a two-room apartment
The most often found on the Internet are photos of the redevelopment of a 2-room apartment in Khrushchev, demonstrating the complete or partial unification of the entire space. However, for families with children, this option is practically not considered, since the redevelopment of a two-room apartment in Khrushchev is designed to increase the level of comfort, and not vice versa.
In an apartment where 2 rooms are adjacent, there are not so many redevelopment options (the photo of the Khrushchevs well demonstrates this type of apartment). Here you need to think about whether there is an option to painlessly divide the rooms with the help of, for example, a small hall or dressing room, or whether you will have to radically change everything. In any case, you will have to sacrifice part of the area of one of the rooms in the process of arranging. But, in this case, it's worth it.
One of the best options for redeveloping a 2-room apartment is to divide a large room into two small ones. This is a great solution for a family with two children of different sexes, each of whom will have the opportunity to have their own room. The second room in this case is reserved for the parents' bedroom. The kitchen will also play the role of a living room, so it is advisable to combine it with a loggia or balcony.
Before making the final decision, look at as many photos of the redevelopment of a 2-room apartment in Khrushchev, presented on the Internet, as possible.
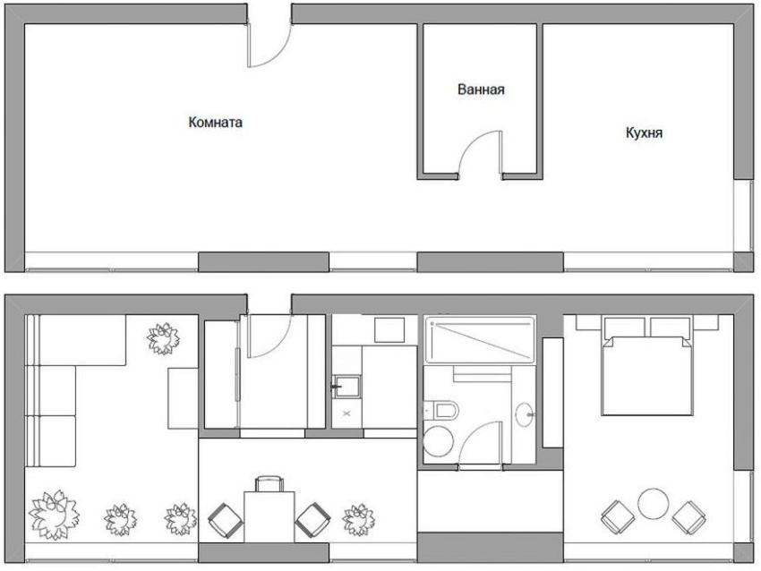
Redevelopment of a one-room apartment in Khrushchev
Surprisingly, but it is possible to make a redevelopment of a one-room apartment. Photos of successful solutions prove the feasibility of such investments. There are a lot of options for redeveloping a one-room apartment, and all of them are aimed at visual and actual expansion of the space.
Depending on the goal you are achieving, you can act in two directions:
- redevelopment of a studio into a one-room apartment;
- redevelopment of a one-room apartment into a two-room apartment.
It also happens the other way around, when the owners want to make a studio out of a one-room apartment. In this case, you need to act according to the standard scheme for combining a kitchen and a room. An example of a project for redeveloping an apartment of this type is not difficult to find on the Internet. The price of an apartment redevelopment project in this way is the lowest.
If the layout of your apartment does not quite match your wishes, then this can be changed. It is enough to collect all the necessary documents and redevelop.Of course, this will take a lot of time and effort, but you can expand that part of the apartment that is most in demand in your family. And this, of course, will have a positive effect on your comfort of living in it.


















