One-story house projects with a garage attract developers with their functional architecture and beauty. Therefore, more and more people prefer such solutions, which provide everything they need for life outside the city. This article will help you understand the advantages and disadvantages of certain projects, as well as provide illustrative examples of successful layouts and photos of buildings from different materials.
Content
- 1 Nuances and important points in the construction of one-story houses with a garage
- 2 Advantages and disadvantages of finished projects of one-story houses with a garage
- 3 Projects of one-story houses with a garage: buildings of various shapes
- 4 A quick overview of the best one-story house projects
- 5 Review of modern projects of one-story houses with a garage up to 150 m²
- 6 Materials for the construction of buildings with a garage: photos of houses and project features
Nuances and important points in the construction of one-story houses with a garage
A comfortable life outside the city is impossible without a car, so construction companies are creative when creating projects for buildings with a garage. Regardless of the area of the future house and its layout, the availability of premises for a vehicle requires compliance with certain rules.
Be sure to pay attention to such nuances as:
- safety;
- reliability and strength of the foundation;
- ventilation system;
- the optimal dimensions of the premises, in particular the garage;
- architectural form of the building;
- material for construction.
Note! The entrance to the house with a garage should be convenient, and the size of the room itself should correspond to the dimensions of the vehicle.
Not a single project of a beautiful one-story house with a garage is complete without a gate. This structure is considered one of the main elements of the building arrangement and affects its appearance.In most cases, owners of suburban housing prefer automated systems that are highly reliable and convenient.
The minimum door width is 2.5 m. This figure can be slightly exceeded. If it is planned to build a garage for two cars, the room will have to be equipped with an oversized gate. At the same time, the height of the structure remains standard, it is 2.1 m.
Advantages and disadvantages of finished projects of one-story houses with a garage
Any residential building project has both advantages and disadvantages. If you do not take into account the layout of a house with a garage and the material from which it is made, we can highlight the following advantages of one-story buildings:
- Single-storey buildings do not have stairs, so they have safe living conditions for the elderly and children.
- All preparatory and construction work takes much less time than structures with several floors require.
- Foundation construction costs are reduced - no heavy-duty foundation is required to support the weight of a heavy multi-story structure.
- A one-story house is much easier and easier to care for.
- For the implementation of projects of one-story houses with a garage under one roof, much less space is required on the site than for the construction of detached structures.
- You don't need to go outside to get into the car.
- Even an unheated extension will be much warmer than a detached garage.
Construction companies, as well as owners of suburban housing, also note some disadvantages associated with the implementation of projects of one-story residential buildings with a garage:
- The dimensions and shape of the building depend entirely on the size of the site.
- Sometimes a one-story house is more expensive for the developer than a two-level building. This is due to the increased roof area, as well as the long length of communications.
- The peculiarities of operating the garage turn it into a fire hazardous room, so you will need to take special protective measures to prevent a fire at home.
Important! The project must necessarily provide for high-quality forced ventilation, and this applies not only to the garage, but also to the house as a whole. Otherwise, the microclimate in the living quarters will be unfavorable, and the air will be damp.
Projects of one-story houses with a garage: buildings of various shapes
Building shape is a broad concept. It includes not only the geometry of the walls, but also the shape of window and door openings, the type of roof, the parameters of the porch and the protective visor above it, etc. All these elements affect the exterior of the building. The shape of the house can have correct or incorrect geometry.
The following types of structures are considered correct (from a geometric point of view):
- rectangular and cubic;
- U- and L-shaped houses;
- H- and T-like.
U-, T-, L- and H-shaped buildings are suitable for one large family or several generations at once. Such houses have many advantages. They allow you to add an individual entrance to the project for each family, as well as provide all residents with personal space. Of course, in this case, some of the premises are intended for joint recreation.
When developing projects for buildings with irregular geometry, they most often start from the shape of the site where the house will be built. To achieve harmony, developers usually repeat its silhouette in architecture. This task is not easy and requires an individual approach, since such projects are quite complex.
The construction of an irregularly shaped house is mainly resorted to for purely aesthetic rather than practical reasons.Buildings with such architecture stand out against the general background, they are unique and look unusual. Moreover, to achieve an irregular shape, it is not at all necessary to violate the geometry of the walls. It is enough to equip the roof with an original non-standard design.
Projects and photos of one-story houses of square and rectangular shapes
Projects of one-story beautiful cube-shaped houses attract developers with high heat saving rates. These buildings have a simple structure that heats up quickly and cools slowly. The effect of heat saving is achieved due to the fact that the contact area of the wall surface with the external environment is very small. Square buildings are compact, quick and easy to build. This is where the list of their advantages ends.
The distribution of interior space in a square house is accompanied by certain difficulties. It is very problematic to draw up a comfortable layout, since adjoining rooms are almost always present in the projects of such buildings. Such placement of premises is accompanied by certain inconveniences for residents.
In addition, it is very difficult to fit technical and economic premises into the project of a square building, for example, a pantry, a laundry room, a boiler room, etc. Therefore, if you want to acquire a small house with a garage, you should abandon cubic structures.
Note! Cubic buildings are usually erected in summer cottages for seasonal use. They do not have conditions for permanent residence.
Unlike square structures, rectangular houses are in great demand. In the projects of such buildings, you can include many isolated rooms, allocate an area for a built-in garage or utility rooms. Buildings in the shape of a rectangle allow you to divide the internal space of the house into "noisy" and "quiet" parts. This advantage also comes in handy if you want to locate the break rooms as far from the garage as possible.
The project of a one-story house with an attic will be an excellent alternative for owners of suburban areas who cannot afford the construction of a two-story building. Rectangular structures are best suited for this purpose.
Rectangular houses are not compact in size, which is a significant drawback. The construction of such buildings will require a large area. At the same time, additional requirements are put forward for the site. Its surface must be even, and its shape must be proportional and symmetrical.
What are the features of the projects of one-story houses of the L-shaped and U-shaped shapes
The corner buildings have original and aesthetically pleasing architecture. With external compactness, they are spacious enough inside. The angular shape allows you to organize a cozy patio. The walls of the building will reliably protect this space from the wind. Such projects are suitable for owners of suburban areas of an angular or square shape, where it is simply impossible to build a rectangular house.
Additional extensions organically fit into the layout of the L-shaped structures, therefore, in the network you can find a lot of projects of one-story houses with a garage and a veranda or terrace. Usually these elements are placed in the inner corner, which forms the gables of the building. Often, terraces are also given an angular shape that supports the geometric features of the home.
If the building has one entrance, then it is usually located in a wing, combined with a terrace. However, projects with two independent entrances are in higher demand. They are placed on different gables.
Compared to standard buildings, corner houses have more interior space options. The layout often includes a "quiet" area with an office and a bedroom in one wing, while the other is reserved for the kitchen and living room. Such projects can involve many premises for various purposes, so corner houses are very comfortable and suitable for permanent residence. The entrance to the garage can be both from the street and from the premises.
Useful advice! When developing a project for an L-shaped house, it is imperative to take into account the width of the gables. If the short wing of a building is made wider, the whole structure will look more attractive and harmonious.
Projects of U-shaped houses allow to realize the potential hidden in corner buildings to a greater extent. At the same time, their architecture looks more organic and balanced.
One building will accommodate all the premises necessary for a comfortable and convenient life:
- living rooms;
- swimming pool;
- Technical buildings;
- front zones;
- garage, etc.
U-shaped buildings allow you to control the degree of illumination. Rooms can be positioned so that a certain amount of daylight enters each room. By correctly planning a large house, you can avoid the need to install light wells that provide access to the sun's rays in the interior.
A quick overview of the best one-story house projects
The area of one-story houses can be different. Construction companies offer standard designs of simple one-story houses of 8x8, 8x10 and 10x10 m with variable floor plans.
Useful advice! When preparing a project for a one-story house, it is imperative to take into account the likelihood of expansion in the future. Perhaps, in the future, the owner will want to increase the area of the building, so it is advisable to think over the layout taking into account these nuances.
If desired, the owner of the land plot can expand the project during the construction process or modify an already finished house:
- Adding a roof with an attic to the structure - this addition will not affect the construction price too much, but the owner will have an additional floor where it will be possible to organize a bedroom or an office.
- Make a pitched roof - for this, one of the walls rises, as a result of which additional space (niche) is formed, which can be used at your discretion.
- If the size of the site allows, you can increase the area of the house by adding additional rooms to it.
- Add a basement or basement - this space is suitable for arranging a sauna, garage or large storage room.
- Organize a flat roof - if the site is small, a flat roof can be a complete replacement for an open rest area.
Related article:
Projects of two-story houses with a garage: the unity of comfort and laconic architecture
Brick, foam concrete, aerated concrete as basic building materials. Wireframe technology. Buildings with mansards, balconies, terraces.
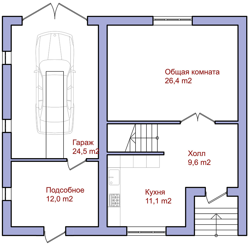
Project of a one-story house: photos and nuances of the construction of an 8x8 m building with a plinth
Projects of buildings with a basement floor are in high demand among developers. Such structures have many advantages:
- allow you to save building materials;
- the underground floor will serve as an additional foundation;
- in the basement, you can place a garage or equip utility rooms, freeing up the living space at the top;
- the basement is suitable for installing heating equipment and nodal components of the water supply system, which will remove all unsightly elements from living quarters;
- the basement can be used as a cellar with the necessary conditions for storing conservation and harvest.
The disadvantages of such projects include the high cost, as well as the need for a high-quality ventilation system and waterproofing in the basement. In addition, not every site is suitable for the construction of a building with a basement.
Before choosing a one-story house project with a basement and a garage, you need to find answers to the following questions:
- What is the depth of the groundwater table? If the groundwater is close to the surface, the construction of a basement is not possible.
- What is the slope of the land plot? If the construction site is heavily sloped, leveling a large area will be expensive.
- What type of soil will the building stand on? A house with a basement and a marshland are simply incompatible.
Advantages and features of projects of one-story houses 8 by 10 m
Plans for one-story houses 8 by 10 m are widespread, since most people living outside the city have a car, and sometimes several. Houses of this size make it possible to equip a good garage where you can hide your car from the effects of adverse weather conditions. If necessary, an extension is made and communication systems are inserted into it without much difficulty.
The advantages of the layout of a one-story house 8 by 10 m, including a garage:
- Comfort - garage doors protect the car from the negative effects of various environmental factors, and their size makes it easy to bring large objects into the house.
- Cost effective - there is no need to build a separate foundation and walls for the garage, which will be separated from the main building by just one partition. Since one of the walls will be common, this will make it possible to save on building materials.
- Functionality - The garage can be used as a storage room suitable for storing large items such as prams and scooters, bicycles, sports equipment and gardening equipment.
Useful advice! To keep things in the garage as efficient as possible, it is advisable to install shelves on the walls, special racks for tools and bike holders. They will free up internal space, as well as maintain order in the room.
Projects of one-story houses 8 by 10 m have disadvantages:
- If the garage is not insulated, then the cold from this room will penetrate into the house.
- If the ventilation system is not installed correctly or is not working very efficiently, the vehicle's exhaust gases will pollute the air in the living area.
Advantages and disadvantages of one-story houses 10 by 10 m with an attic
The area of a one-storey house measuring 10x10 m is about 150 m². Buildings of this size allow you to comfortably accommodate a large family with children.
Advantages of structures with an attic floor:
- saving building materials (unlike an extension in the form of a full-fledged second floor, a large attic under a gable roof is already included in the estimate);
- if you use the space of the attic floor correctly, you can double the functionality of the building;
- a large roof retains heat much longer, which saves on heating;
- laying communications to the attic floor does not require much effort and serious costs;
- the space under the roof can be used to equip a recreation area by placing a billiard room or library there;
- the interior of the attic will look very original.
Disadvantages of projects of large one-story houses with an attic:
- if the technology for the construction of the attic floor is violated, the space under the roof will
- cold; since the walls of the attic are at an angle, special windows are installed in this room, the price of which is 2-3 times higher than the cost of conventional structures (the same applies to furniture, most often it is made to order);
- if there is a lot of snow in winter, the room under the roof will be darkened.
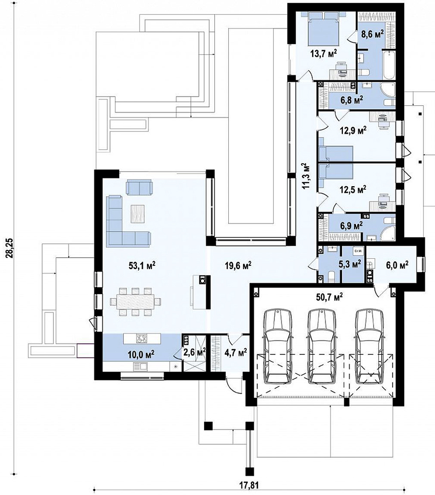
Review of modern projects of one-story houses with a garage up to 150 m²
Buildings with a living area of 150 m² can accommodate a family of 4-5 people. The project of a modern one-story house with a garage can include a living room, three bedrooms, a kitchen. An excellent addition to such a structure will be an attic floor or a basement, which allows you to hide the wiring of communications.
Such buildings have many advantages:
- for construction, various materials can be used, for example, foam blocks, stone, timber, etc.;
- compact size, allowing the construction of a house in a small area;
- the opportunity to reduce utility costs, since the living area that needs heating is small.
Modern projects of one-story houses from this category include buildings with dimensions of 11x11, 10x12 and 12x12 m, as well as structures with an attic and a garage.
Useful advice! If the garage is not in the basement, it will hide the space in the house. The owners of small plots are especially acutely aware of the lack of living space. To compensate for this disadvantage, it is advisable to supplement a one-story house with an attic.
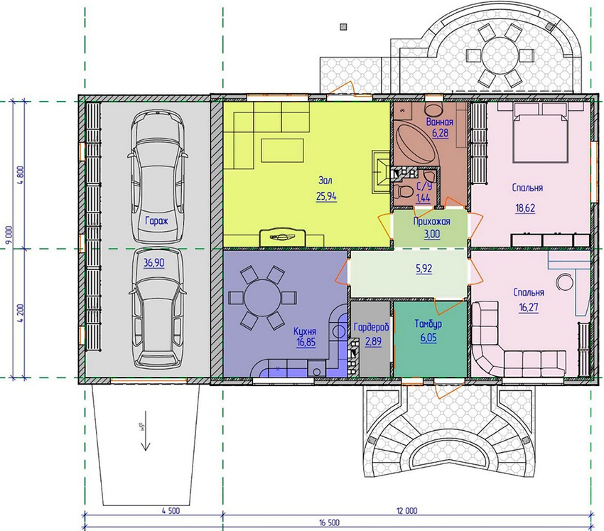
Projects of one-story houses with a garage: photos and advantages of buildings of 10x12 and 12x12 m
On average, the size of the living space is 140 m² (provided that there is an attic in the project of a one-story house with a garage of 10x12 m). The architecture of the building and the layout of the premises can vary. When choosing a suitable option for a house with such dimensions, it is imperative to take into account how many people will permanently live under one roof.
Regardless of the project chosen, single-storey buildings 10x12 and 12x12 m in size have a number of advantageous advantages:
- if you want to increase the usable area in such buildings, you can make an attic by constructing a gable roof;
- the absence of stairs makes the house safe for children and the elderly, since there is no need to climb the stairs to the second floor (if the project involves an attic, it is better to organize the bedrooms of these residents on the first floor);
- The exterior of the building's façade can be diversified by adding architectural elements, such as bay windows or panoramic windows, arches and other decorative details.
Projects of buildings of 10x12 and 12x12 m in size allow you to organize three bedrooms in the house or take one of them for the dining room (if you combine it with the living room, the layout will turn out to be more spacious).
Features of village houses: projects of sustainable buildings from a bar
Among all the existing options, a special place is occupied by one-story village houses made of timber. The footage of such buildings can be different - from 6x6 to 11x11 m. It depends on the chosen project and the size of the timber. Natural materials are in high demand among developers. Projects of village houses, implemented on suburban areas, look beautiful and harmonious, they fit well into the natural landscape. If you follow the construction technology, such buildings will be able to serve for a long time.

Country houses made of timber are characterized by environmental friendliness, durability and good heat conservation.
The advantages of projects of one-story houses with a bar with a garage:
- for construction, both ordinary and profiled timber can be used, therefore, projects of village houses have many design options;
- the material is durable and environmentally friendly;
- wood creates comfortable climatic conditions for humans;
- building material is safe for the health of residents;
- installation of communications in the house does not require much effort (wood lends itself well to processing, so it is easy to drill holes in the walls and lay the wiring);
- wood has good heat-saving properties, it does not let the cold outside, therefore, log houses are suitable for regions with severe winters.
Important! Wood absorbs moisture well, so the walls must be waterproofed. In addition, the material can suffer from mold and various microorganisms. To avoid this, the tree should be treated with antiseptic and protective agents.
Is it possible to draw up a project for a one-story house with a garage and a bathhouse under one roof?
If you correctly distribute the internal space, then it is quite possible to place a sauna or bath in the room. This layout option can be considered on the example of a 13x16 m building. The total area of the premises is about 130 m². In this case, you can see how variable the layout is, created on the basis of the same project.
In the first case, the project of a one-story house with a sauna and a garage includes the following premises:
- two bedrooms (size 13.7 and 13.2 m);
- living room (21.6 m);
- kitchen combined with a dining room (13.2 m);
- garage (23.2 m);
- dressing room and technical room (each room is 5.7 m);
- small bathroom (6.8 m).
Since the area of the bathroom is small, there is only enough space for a shower. In this situation, the size of the room allows the installation of a modern sauna, which is made in the form of a compact cabin. The advantage of this project is that from the dressing room you can get directly into the garage, and from there you have access to the street through the technical room.
In the second case, the size of the bathroom is increased due to the dressing room, which is removed from the layout. This area is quite enough to equip a bathhouse in the house. Moreover, both projects have two entrances from different sides of the building, which is very convenient (from the side of the porch and the covered terrace).
Materials for the construction of buildings with a garage: photos of houses and project features
Various materials can be used to construct a one-story building with a garage. The choice depends on the budgetary possibilities of the owner, the architectural features of the building, the project itself, as well as the properties of the soil on which the house will stand.
For the construction of suburban housing, the following materials are usually used:
- brick;
- wood;
- cellular concrete (gas and foam blocks).
Note! Before purchasing materials, it is necessary to carefully calculate the dimensions of the future building. The design documentation should detail the proposed types of work, the procedure for their implementation, and also draw up a list of required materials. Based on these data, the calculation is made.
What blocks is better to build a garage from: projects based on aerated concrete and foam blocks
Gas and foam concrete are varieties of the same material - aerated concrete. The difference between them lies only in the manufacturing technology, which, as a result, affects the technical and operational parameters of these units.
Materials for the construction of aerated concrete buildings have a standard thickness:
- 200 mm;
- 375 mm;
- 400 mm;
- 500 mm.
When developing a project for a one-story house with a garage made of foam blocks or gas blocks, it is imperative to take into account the climatic features of the region. The fact is that concrete has hygroscopic properties, therefore, the walls of the building must be protected from the effects of adverse environmental factors. For this, such finishing materials are used as:
- siding;
- fake diamond;
- facing brick;
- decorative plaster, etc.
The minimum material density is 300 kg / m². This indicator is selected taking into account the tasks for which the blocks will be used. For example, for the construction of load-bearing walls, products with a density of at least 400 kg / m² will be required. Partitions inside the house, which do not perform load-bearing functions, can be built from less dense material, the purchase of which will cost less.
Important! To implement the project of a one-story aerated concrete house with a garage, you need to use materials of appropriate density. Don't skimp on security.
How to implement a project of a one-story house with a brick garage
In the design documentation of such buildings, silicate or ceramic bricks are mainly laid. The choice of material depends on the climatic characteristics of the region where the house will be located. Taking this criterion into account, the thickness of the masonry on the load-bearing walls can vary within the range of 250-640 mm.
The use of innovative technologies aimed at energy saving allows you to reduce the mass of bricks in the walls of a finished house. If the project of a one-story brick house with a garage provides for continuous masonry of 640 mm thick external walls, the characteristics of the building can be improved by changing the approach to its construction. For this, the thickness of the masonry is reduced to 250 mm, and extruded polystyrene foam (150 mm) is added as a heater. For wall decoration, you can use facing bricks (120 mm).
Most often, hollow ceramic bricks are used for the construction of country cottages. Air-filled voids in products enhance the heat-saving properties of the masonry. Solid brick is more suitable for arranging ventilation risers. This version of the material is more effective than expanded clay modules. Solid brick is also suitable if the project provides for a fireplace in the house.
Features of projects of one-story frame houses with a garage
Houses built using frame technology are less reliable and durable than brick or aerated concrete structures. However, the cost of implementing such projects is much lower, and the time frame is much shorter. In addition, frame buildings have a relatively light structure, so they can be installed on columnar or pile-type foundations. Such foundations do not require high costs and are erected very quickly.
The design documentation of frame buildings usually includes drawings of external and internal walls. Detailed information about all the nuances of the design is simply necessary, since it is used directly in the construction process. Therefore, the cost of the projects themselves may be higher than in the case of the construction of brick or aerated concrete buildings.
Frame houses are predominantly wooden structures. A timber is used as load-bearing racks, which is sheathed with boards with a section of 40x150 or 50x200 mm. In the west, frame buildings are very popular, but in our country such buildings are operated only seasonally.
It takes a lot of time to choose a finished project or develop a new one. The more carefully the layout is thought out and all the nuances are taken into account, the more convenient and comfortable the house will be in the end.



























