Raspberry is a very common and favorite berry by many. The fruits ripen early, smell great and taste great. The plant reproduces easily and quickly. From a bush planted in spring, you can get a small harvest in the second year. And if you choose the right place for planting, then the yield can be increased. A raspberry trellis will help to simplify the care of the plant. This article will tell you about the features of planting shrubs using supports.
Content
- 1 Raspberry: planting and caring for the bushes of a fruitful plant
- 2 Benefits of using trellis for growing raspberries
- 3 Trellis for raspberries: features of the device
- 4 Garter raspberry on a trellis: device and types of support
- 5 Do-it-yourself tapestry: we select materials for construction
- 6 How to tie up raspberries correctly: tips for using the trellis
- 7 We make a trellis for raspberries with our own hands, photos of finished designs
Raspberry: planting and caring for the bushes of a fruitful plant
Raspberries are an unpretentious culture, the fruits of which have a pleasant taste and antipyretic properties. The jam from this berry is very tasty and aromatic. A dense raspberry tree looks beautiful in any area. You can plant raspberries in spring or autumn. Growing raspberries in the country is not as difficult as it seems. If everything is done correctly, the bushes will quickly take root, begin to grow intensively and give a rich harvest. From this publication you will learn how to tie raspberries to a trellis.
Raspberries belong to the Pink family. Usually it is an upright shrub with small thorns. The plant has a small flower. Fruits come in a variety of shades, from light pink to almost black (in the case of blackberry raspberries). There is a yellow raspberry.
The branches on which the fruits will grow appear in the second year of the plant's life. In the southern regions of Russia, fruits can appear already in the first year of planting raspberries. Currently, breeders have developed remontant varieties of raspberries that are capable of producing crops at lower ambient temperatures.
Features, methods and schemes of planting raspberries, fertilizer for plants
Raspberries should be planted on neutral or slightly acidic soils. It is better to choose a place for shrubs that is sunny, protected from strong winds, and has good snow cover in the winter season. You also need to ensure that the raspberry's predecessors are not plants prone to the same diseases, for example, tomatoes, strawberries, potatoes.
The optimal planting time for raspberries is spring and autumn; green cuttings are planted in summer. It is necessary to prepare the soil for planting in advance, in the case of autumn planting - a month in advance. In spring, this can be done immediately 2-3 weeks before placing the plant in the ground.
Before planting, the future raspberry tree must be protected with slate, dug in to a depth of about 35-40 cm. This must be done so that the raspberry root system does not spread to other beds and areas. The distance from the raspberry bush to the fence should be at least 1 m.There are several ways to grow a plant:
- separate bushes - about 10 branches are left on the bush and planted in separate holes;
- trellis or tape method - plants are planted in one row in trenches.
For planting with separate bushes, it is necessary to make pits approximately 40 x50 cm in size.In each hole, you need to pour the planting mixture with a small mound. Before planting, it is recommended to moisten the plant roots in mullein nutrient solution or a special planting mixture solution. Then they lower the raspberries into the hole and sprinkle the roots of the plant with a fertile layer of earth.

Raspberries can be grown as separate shrubs or tied to trellis
It is necessary that the distance between the bushes is about 1 m, and between the rows - about 2 m. The neck of the root should protrude a few centimeters above the soil so that after complete shrinkage of the soil and watering it will be at ground level. It is impossible to lower the roots of the plant too deeply, as this can lead to decay of the basal bud. High waist is also undesirable for raspberries.
In the case of trench planting of bushes, it is necessary to dig a groove about 45 cm deep and about 50 cm wide. The number of trenches depends on the number of intended rows of raspberries. The optimum row spacing is about 1 m, and the plant spacing is about 40 cm.
Fill the trench with a nutritious planting mixture. It includes:
- rotted manure or compost;
- fertile topsoil;
- mineral fertilizers - double superphosphate is best.
All components are added to the trench in layers or a mixture is made by mixing the components.
After planting, the seedlings must be watered, and then the soil must be mulched with humus, peat or ordinary dry soil. If the soil is perfectly moistened with atmospheric precipitation, then additional watering is not required. Provided that the buds of the plant are well developed, they need to be cut off, leaving 30 cm.
Helpful advice! It is not recommended to add nitrogen-containing fertilizers during planting. Raspberries will not root well. It is better to add some ash.
How to tie up raspberries: tips for care, watering and pruning
Water the raspberries well, but in moderation so as not to flood the roots. Especially the plant needs sufficient saturation with liquid in the spring and summer.
Pruning for raspberries is needed to shorten fruiting shoots and remove too dense and unnecessary growth at the roots. Usually in the spring after planting, fruiting branches are pruned by about 20 cm. From the second year of life, the stems of the plant are shortened annually after harvest or in spring. After the winter period, the branches are pruned about 10 cm to a strong bud.
In order not to often dig up the soil, the aisle can be mulched - covered with straw or peat. To prevent frost damage to raspberries, many varieties need to be bent down. To do this, you need to tilt the bushes to each other and tie them.
So that the bushes do not break under the weight of the fruit, they need to be tied up. The fan method is most commonly used.In this case, you will need to drive two sticks between the bushes - and already raspberries are tied up to them at different heights: part of the shoots of one bush and part of the stems of the neighboring one. The result is a kind of fan.
In the case of a trench landing method, the best option would be to use a trellis garter. You will learn more about how to make a trellis for raspberries later in this article.
Benefits of using trellis for growing raspberries
A garter for raspberries is necessary, since the shrub is high - 1.5-1.8 m. Moreover, the shoots of the plant are relatively thin and flexible, and therefore they bend and often do not support their own weight. A large crop forces the branches to sink to the ground itself, as a result of which the berries get sick and rot.
Only undersized raspberry bushes can do without a garter. For early maturing and high-yielding varieties, this procedure is simply necessary. In general, the trellis for blackberries and raspberries is very useful, this design has many advantages:
- Thanks to the trellises, you can easily form beautiful rows of raspberries.
- The lower branches of the plant do not get dirty because they do not touch the ground. As a result, stems, leaves and berries are not attacked by pests such as snails and frogs.
- The berries stay clean regardless of the weather.
- Thanks to the trellises, the raspberry bushes form regular, straight beds with wide gaps between them. This contributes to excellent wind blowing, which guarantees dryness to the bushes, which means it prevents fungal diseases.
- The use of a trellis guarantees an even planting of the raspberries, as a result, each branch receives the same lighting. This facilitates the simultaneous ripening of the berries and makes harvesting easier.
- It is easier for the gardener to care for the plants. Watering, weeding and mulching the soil is very easy. In addition, the use of such a planting allows you to see and eliminate damaged shoots in time.
- It is easier to harvest, and then prepare the site for winter.
- It's easier to move between bushes. Without trellises, you will have to wade through the dense thickets.
In order to get all the benefits, it is important to choose and install the trellis structure correctly.
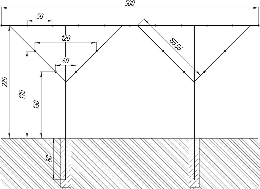
Helpful advice! The base of the trellis should be buried 80-100 cm in the ground, so the total length of the pole should be about 230-280 cm: 80-100 cm in the ground and 150-180 cm above it.
Trellis for raspberries: features of the device
Raspberry is a very flexible plant, therefore, under the weight of the harvest, it bends strongly, and the stems of some varieties generally lie on the ground. It is for this reason that it is recommended to grow raspberries on trellises. This is especially true in summer - during fruiting.
The design of the trellis is very simple: on both sides of the row with the plant, you need to install supporting horizontal poles (or wire) fixed on the posts. Raspberry stems are tied to the supports with twine.
Such a trellis is easy to manufacture and is known to all gardeners, but its design can be slightly complicated and benefit from it. The support is placed on one side, just not at the edge of the row, but at a distance of 30-40 cm from it. All fruiting branches are tilted towards the trellis and fix them. Thanks to this tying, adult stems do not interfere with the growth of young shoots.
Next, we will tell you how to tie up raspberries in the spring. You need to install the trellis even before bud break. When the stems are tilted, all buds sprout upward and the crop is placed on the lighted side. Growing stems do not mix with biennials and do not interfere with harvest.Detachment of young shoots from fruiting ones contributes to better lighting and ventilation, and also prevents fungal infections of the stems.
Related article:
Trellis for grapes: optimal support for a climbing plant
Advantage of use, material for manufacturing, types of designs, tips, recommendations, photos and drawings for creating with your own hands.
After collecting the last berries, two-year-old shoots are removed. They are cut to the very base without leaving a hemp. At the same time, damaged, thin and short annual stems should be removed. It is necessary to leave the strongest, thickest and highest shoots. The soil under the bushes must be loosened. Garden forks are best suited for this, but it is important to remove weeds and water if necessary.
Garter raspberry on a trellis: device and types of support
Growing raspberries on a trellis is the best option for gardeners who want to increase their berry yield. These poles are made of various materials: wood, steel pipes, angles, posts or stakes. The sizes of the raspberry trellis can be different, but on average they are from 2.2 to 2.5 m in height.
In the case of using a tree as a support, before installation, the material must be treated with iron sulfate for two or three days. To prepare a solution, dilute 1 kg of a chemical in 50 liters of water.
Trellis for plants that curl can be classified as follows:
- A single-strip trellis consists of small posts with a single wire stretched that provides support to the raspberry branches on one side. Each branch is attached to the wire separately. This mounting method is suitable for small areas of the raspberry tree.
- The two-lane trellis includes two rows of wires that are stretched parallel to each other at a distance of 0.5 m. This design ensures the correct formation of the plant, the plantings do not thicken, because the stems of the bush are tilted in different directions. Suitable for use in both small and large areas.
Single-strip trellis are subdivided into vertical flat, fan-shaped, free, inclined, horizontal. Two-lane supports are of several designs:
- in the form of the letter T - horizontal dies are attached to the vertical posts, and a wire is fixed on them and plant shoots are tied;
- in the form of the letter V - raspberry branches are located at an angle and are supported on both sides, the central part of the bushes remains free, well blown;
- in the shape of the letter Y - a movable structure with adjustable tilt angle.
Helpful advice! The use of a bush (fan) trellis somewhat simplifies the garter. Observations have shown that this option results in poorer yields than other designs. The improved one-sided trellis allows you to harvest 2 times more than when using a vertical support. This is possible due to a more complete collection of berries and a reduction in losses.
Do-it-yourself tapestry: we select materials for construction
Raspberries need support for the second year after planting. Therefore, you should install a trellis for shoots within the first two years. It is best to put poles and anchors immediately after planting the plants. Next spring, even before the snow completely melts, while the pillars are firmly held in the frozen soil, it is necessary to stretch and secure the wire.

For the manufacture of trellises, you can use reinforced concrete posts or metal pipes of small diameter
Standard reinforced concrete structures with a cross section of 10 × 10 cm can be used as pillars. Also, substandard pipes with a diameter of 8-10 cm are suitable for these purposes. You can also use wood.
The total length of the pillars is 2.2-2.5 m, while their height above the soil surface is 1.5-1.8 m. Before installing them on the raspberry patch, metal pillars are treated with anti-corrosion agents, for example, immersed in a bath with bitumen, and wooden ones - with antiseptics (kept for 2-3 days in a solution of copper sulfate). The optimal distance between the posts on the plantation is 10-20 m. For 1 hectare, you will need from 200 to 400 pieces.
The posts at the end of the row must be additionally secured with anchors. Stainless wire is perfect for pulling between vertical supports. But it is best to use a product with a polyethylene coating, polyamide wire or reinforced polyethylene (or propylene) twine.
Each plant shoot is tied separately. The stems can be attached to the main wire with another long soft wire thread or twine, braiding the main thread together with the shoots. The ends of the twine are fixed at the extreme posts.
Helpful advice! When creating a double-sided trellis, the costs will be 30% higher than when performing a one-sided one, and 70% more than when building a vertical one.
How to tie up raspberries correctly: tips for using the trellis
The simplest support is a vertical flat trellis for raspberries (photos clearly confirm this). Its design is quite simple: these are two rows of wires, fixed at different heights from the soil in one vertical plane. Usually, the first thread is located at a height of 0.6-0.9 m, and the second - 1.2-1.5 m. It is to them that the fruiting branches of raspberries are tied at a distance of 7.5-10 cm from each other. In this case, young shoots grow freely, interspersed with fruiting stems, making it a little difficult to harvest. To simplify the garter, you can pull two strands of wire at each level and place the shoots between them.
If the raspberry tree is located in an area that is perfectly protected from the winds, then both strands of wire are pulled at the same level (about 1-1.5 m). In this case, the horizontal distance between the trellis is 0.4-0.5 m. In this case, all shoots are placed between the wires, without tying them. This somewhat reduces the cost of the garter.

If the raspberry bushes are well protected from the winds, then the threads should be pulled at the same level
The distance between the wires can be increased to 1 m. Then the fruit-bearing shoots are tied at a slight angle, forming an inclined double-sided trellis. Thus, young shoots are in the center of the row and do not interfere with the development of fruiting branches. Such placement of raspberries on a trellis (photos demonstrate this) contributes to high-quality collection of berries, both with a manual method and with a mechanized one.
The use of an inclined trellis allows you not to tie the shoots, but to clamp them between pairs of wire strands. Such support can be one-sided, but even in this case, separation of young and fruiting stems is achieved.
The tying work is most convenient for two people: one pulls up the shoots, and the other attaches them to the wire. It is recommended to tie the twine to the main wire every 5-10 m. You can make a loop on the intermediate post. Such actions prevent branches from knocking down into groups under the influence of the wind. Also, this option will help to reduce the labor costs for the garter and for cutting out old shoots (compared to securing each shoot with a separate thread).

When tying raspberries to the trellis, it is necessary to separate the young shoots from the fruiting stems
There are many photos on the network of how to tie up raspberries. They will make this process easier. We also recommend watching a video of a raspberry garter on a trellis.
We make a trellis for raspberries with our own hands, photos of finished designs
You can buy a trellis, or you can create it yourself.To do this, you need to follow the recommendations and tips that will tell you how to make a do-it-yourself raspberry trellis.
Stakes made of wood, iron reinforcement and other improvised means are used as a basis. The only requirement for the material is that it should not bend and break under the heavy weight of the plant. Wire, twine or fishing line are pulled between the structures. On the Internet, it is easy to find a photo of a trellis for raspberries of any design.
Regardless of the type of raspberry trellis, the wire is usually pulled in two rows, one under the other. The first row is used for fixing young branches, and the second for two-year-old shoots. The lower one is stretched at a distance of 40-60 cm above the ground level, the upper one - 1.5 m. This value may vary depending on the height of the bushes. It is best to fix the thread 30-40 cm below the maximum plant height. The optimum distance between the bases is 7-9 m. However, when choosing it, one must take into account the strength and elasticity of the wire.
Helpful advice! You can organize a trellis for other types of plants. For example, a do-it-yourself rose trellis will ennoble the area and delight the eye.
DIY raspberry trellis: step by step instructions
- First, it is necessary to treat the bases with protective substances. If wood is used, it must be covered with a protective varnish. This will slow down the process of rotting material in the ground. Similar actions must be performed with iron structures in order to prevent the corrosion process.
- When creating a T-shaped or Y-shaped trellis, it is required to nail the strips with nails (at least 5 cm long and 3 ml in diameter).
- For the bases, dig holes in the soil. It is recommended to do this with a special drill, but you can also manually.
- The wire is secured with nails. It is important that they are driven in at the same distance from the ground, otherwise the branches of the bushes will slide along the wire in one direction.
- The wire is pulled tightly between the bases and firmly fixed on the nails.
The use of modern technologies to obtain a good harvest of raspberries is impossible without the use of special devices. The raspberry trellis is a great opportunity to conveniently grow berries in a small area.
There is no better method to increase the yield of a plant and reduce the time it takes to leave it, other than to tie up raspberries in the spring. This process is not easy and time consuming, but it will fully pay for itself after increasing the productivity of shrubs. You can buy a raspberry trellis or make it yourself. For manufacturing, any durable material is used, including a plastic trellis.
Beautiful and functional trellises help to improve the yield, as well as facilitate plant maintenance and help protect them from diseases. Raspberry trellis are the best solution with many advantages. Indeed, thanks to this design, the process of tying shoots becomes quite simple. Plus, garters can change over time. It is also recommended to use the trellis in the greenhouse.



















