When choosing a project for the construction of a cottage on a suburban area, first of all, you need to decide on the number of storeys of the building. This nuance has a direct impact on the budget for future construction and the functionality of housing. In turn, the choice of the number of storeys of the building depends on the area of the site. A small building area imposes some restrictions on the choice of the type of building, so a good plan for a one-story house will always have to be in place.
Content
- 1 One-story house plan: advantages and disadvantages
- 2 Photos of projects of one-story houses and ways to increase space
- 3 Development of a project for a one-story building
- 4 One-story house plan up to 100 sq m: interesting solutions
- 5 Projects of one-story houses up to 150 m2: photos and popular layouts
One-story house plan: advantages and disadvantages
Construction work on the construction of a one-story building has a lot of advantages, because building a house with one floor is much faster and easier than with two or more.
This type of building opens up wide opportunities for the development of design, its implementation, and also ensures the reliability and safety of the finished building. But one-story cottages will not be able to solve the problem of building suburban areas, the owners of which have large families. In this case, you should pay attention to two- and three-story buildings.
Single-storey buildings are popular not only for their small size and low construction costs. They fit perfectly into the natural landscape. Nevertheless, one should think about the distribution of internal areas, since the building ultimately must fully meet the needs of all residents. To do this, you should familiarize yourself with the photos, plans of one-story houses, as well as their characteristics. This will allow you to create a more complete picture of understanding how building designs are designed.
Related article:
Photo of the layout of a one-story house 10 by 10. Options for increasing the living space. Competent home design and advice on rationalizing free space. Photo of the layouts of one-story houses 8 by 10 and 10 by 12.
Advantages of projects with one floor
Like any type of building, a one-story building has both advantages and disadvantages. The best option is the one that has more advantages than disadvantages.
Advantages of low-rise projects:
- the foundation is the most important part of the house. At the same time, the cost of its construction is very high in comparison with the prices for the remaining types of work. In most cases, one-story buildings have a simplified foundation. Such a base is not designed to withstand the weight of several floors, therefore it can have a simple design and a lightweight structure. Which, in turn, does not impose restrictions on the type of soil in the area allocated for building;
- during the construction of walls, you can significantly save money, since their structures do not require additional reinforcement, since there is no second floor. The choice of building materials in this case is also practically unlimited;
- engineering in one-story buildings is very simple. There is no need to carry out complex wiring of communications, heating systems, etc., taking into account the special operating conditions of the house. As is the case, for example, with houses where there is such an architectural element as a second light or there are many floors. Installation work is simplified as much as possible and is very cheap;
- due to a simple design, building a house does not require large costs, and all work is carried out in the shortest possible time;

3D project of one-story houses with attic and garage
- projects with one floor do not include the presence of a staircase, with the exception of layouts with an attic. This allows you to abandon the construction of an expensive and complex staircase, more rationally disposing of the internal living space.
Note! The psychological factor is of great importance when choosing a layout. For families with children, the aspect of unity and optimal placement of living rooms in relation to one another is very important.
Disadvantages of one-story buildings and features of the organization of space
One-story buildings also have disadvantages, of which there are not so many:
- structures with a large area and one storey pose significant difficulties at the design stage. In such conditions, when drawing up a layout, you need to ensure that there are as few walk-through rooms as possible. This requirement especially applies to rest rooms - bedrooms, guest and children. The comfort of being in them will depend on this;
- buildings with one floor and large dimensions require significant costs at the stage of organizing the roof. Subsequently, a roof with such dimensions will more often need to carry out scheduled repairs and renovations, which will cause new costs;
- buildings with small dimensions limit the size of the interior. At the design stage, it will be necessary to create a layout that will simultaneously meet the needs of all residents and comply with construction and sanitation standards.
Photos of projects of one-story houses and ways to increase space
Given the fact that one-story buildings are most often limited in size, many owners of suburban areas seek to increase the internal space by any available means.
Ways to increase the area:
- arrangement of the basement floor, where you can place not only living rooms, but also billiard rooms, a gym or a storeroom;
- construction of a mansard roof that can be used to accommodate a guest room, bedroom or children's room;
Note! The cost of building an attic floor is only slightly higher than the cost of organizing a roof with two slopes. Therefore, the attic can be viewed as a profitable investment.
- installation of a roof with one slope in order to further organize an attic room or a hinged-type platform;
- using a flat roof to create an additional seating area with a flower garden or patio;
- organization of a garage or workshop.
All these elements will diversify the layout of a residential building and make it more interesting from an architectural and functional point of view.
The plan of a one-story house 8 by 8 meters with a basement
Such an element of the building as a basement cannot be considered as a full-fledged floor. Therefore, it does not affect the nominal number of floors in the house. But if the underground area of the building is refined and properly equipped, the basement area can be safely added to the total size of the building.
The project of a one-storey building with a basement does not provide for the placement of living rooms on this site. Such difficulties are due to the fact that there is no way to organize natural lighting in the required amount and a normal level of ventilation.

The plan of the basement of a one-story house 8 by 8 m: 1 - corridor, 2 and 3 - non-residential premises (billiard room, boiler room, laundry, gym, etc.)
Nevertheless, you can always move all the premises that have an economic and technical purpose to the lower part of the building. Even a small building measuring 8x8 m will be able to provide a family with additional space to accommodate many things and household appliances on basement floor.
Useful advice! Use a plinth for installing a water supply and heating system (boiler installation), organizing a laundry, an ironing and drying area, storing canned goods and vegetables (instead of a cellar). Utility rooms, a pantry or a closet can be moved here.

Three-dimensional house project 8x8 m with basement floor
Large projects allow you to place rooms for relaxation on the basement:
- gym;
- billiard room;
- workshop;
- mini cinema;
- sauna;
- small swimming pool.
Features of the layout of a one-story house 10 by 10 meters with an attic
In terms of cost, a cottage with an attic floor is almost the same as a house with an attic. This moment is due to the fact that materials for the construction of the attic are required almost as much as they are needed for the attic zone. But in this case, there will be additional costs, since you will need to perform:
- insulation;
- finishing;
- carry out the heating system.
All this is necessary in order to organize residential-type rooms on the attic floor, to provide comfort in them. Therefore, the costs are fully justified.
As in the case of the basement, from the architectural point of view, the attic cannot be considered as a full-fledged floor, therefore, it is able to offer much less usable area than it could be in a two-story building. But this space makes it possible to make interesting and varied layouts.
Most often, the attic appears conditionally on the building plan as the second floor. For this reason, in the upper part of the house, owners tend to arrange bedroom rooms and small bathrooms. The area of this plot determines the number of bedrooms and their dimensions.
The attic may include several small bedrooms, as well as a hall, a full bathroom, complete with a bath. You can also place a pantry here.
Plan of a one-story house 8 by 10 meters with a garage
The presence of only one floor in the house cannot be a hindrance to creating a garage or workshop under the same roof as the living quarters.At the same time, plans for one-story houses with a garage can have a completely symmetrical layout or, conversely, a certain number of rooms located freely.
Symmetrical building options offer layouts in which the garage space is separated from the residential-type rooms by powerful main walls. Outwardly, a similar building looks symmetrical, perhaps a conditional division in half into two zones: the residential part and the area allocated for the garage. With a free distribution of spaces, the garage room simply adjoins one of the outer walls of the structure.
Useful advice! It is recommended to draw up a layout so that access to the premises is not only from the street, but also from the side of the house. Thanks to this, the car owner will not need to get wet in the rain and snow in bad weather when he wants to go to the garage.
To increase the free space in the house, it is not at all necessary to be limited to one garage, basement or attic. You can use all of these elements to make your home comfortable and convenient.

One-story house project 8x10 with garage
Development of a project for a one-story building
The comfort of living in a house is influenced by many different factors. But the most important of them is the nature of the placement of rooms, as well as the peculiarities of their interaction with each other.
The rational distribution of spaces is determined by:
- the size of the rooms;
- the purpose of the premises;
- placement;
- connections between rooms and other types of premises, such as verandas, corridors.
The foundational part of the house is the basis for creating the layout. Today, based on standard projects, the possibilities for creating layouts have significantly expanded. Developers use pre-designed blueprints, including typical design and planning solutions. This reduces the cost of the design phase, and not only the expense of money, but also time is reduced. Ideas are implemented in a short time, they are as close as possible to the needs of most of the owners of suburban areas.
The planning phase of the building and its interior
The building planning phase includes several mandatory requirements that must be adhered to.
When drawing up a plan, do not forget about the following points:
- location in relation to the wind rose;
- features of the surrounding landscape and the direction in which the flow of groundwater moves;
- location in relation to the cardinal points;
- buildings located on the territory, their features and distance from the site allocated for construction;
- availability of connection to engineering and communication systems;
- peculiarities of binding internal communication systems to the premises of the building;
- the form of the structure;
- the ability to identify hidden spaces suitable for use as useful areas, provided that minor changes are made to a typical project;
- the number of rooms, their purpose, the connection between the interior of the house and the features of future use.
Useful advice! It is recommended to bring the elements of communication systems into nodes. This will reduce costs and eliminate unnecessary parts assembly. For example, a kitchen and a bathroom should be adjacent. This will eliminate the need for additional piping.
Useful information for the design phase
Communication systems need to be thought out very carefully. It is better if you can keep the length of the piping to a minimum, since the installation of long pipes involves the installation of many connections. The more connections, the higher the risk of leaks.
The sewerage system needs a good outflow of water. It should be designed in order to be able to normally accept the volume of liquid if a dishwasher and a washing machine are running in the house at the same time, as well as a bathroom or shower stall is operated. This moment depends on the number of permanent residents in the house and the needs of each of them (as well as household appliances) in water.
The binding of a residential building to communication systems must be carried out in full compliance with sanitary and hygienic standards. As a rule, wastewater is recycled in a natural mode, which involves the use of gravity. Drainage is carried out exclusively in a place designated for this purpose. You should obtain a special permit from the sanitary service and properly organize a drainage pit.
Important! It is unacceptable to use stormwater and reservoirs for drainage. This can lead to a fine by the sanitary inspection or a subpoena from the utility company, as well as lead to pollution of the environment and groundwater. Carefully study the rules and requirements for the process of organizing the sewer system in a suburban area.
The local grid company may also have certain requirements regarding the use of household appliances. Find out in advance what the limit is and, taking into account these data, commission electrical devices.
One-story house plan up to 100 sq m: interesting solutions
With the optimal location of the house, the wind should be directed towards the roof slopes. Due to this, resistance and wind load are reduced during strong gusts and bad weather. Moreover, precipitation will not fall into the gables.
If it is planned to build a residential building in a region where there are sharp and frequent changes in the direction of the winds, it is recommended to use half-hip or hip type roofs. Thanks to these structures, it becomes possible to form additional canopies and planes that provide effective protection of the walls from the effects of precipitation.

If you remove the internal partitions, combining the kitchen, dining room and living room, this will visually expand the internal space of a small house.
Do not forget about the features of the landscape relief of the area. It is not recommended to locate the building at the most extreme points, that is, to carry out construction in the highest and lowest zones of the site.
To determine the location of the building, you should visit the local administration and get a map there that reflects the geodetic zoning of the area and all the features of the nearby relief. Such a map will include information on the location of groundwater, its direction, soil characteristics and other data useful for construction.
The plan of a one-story house 6 by 6 meters
Layout of a one-story cottage, made of wood or any other materials, is based on the parameters and features of the form. Square structures, which is a 6x6 m house, are considered optimal.
Note! The symmetry of the building makes it possible to create balanced and harmonious interiors. This is the reason for the increased popularity of projects with the same side length.
Given that the dimensions of the 6x6 m building are small, such a house can be used as a country cottage. Its construction will be accompanied by lower costs than the construction of a more overall or two-story structure. Using the tools and technologies of modern design, here you can organize all the conditions necessary for a comfortable stay.
Considerable savings can be achieved due to the competent organization of the heating system, if a fireplace equipped with radiators or a boiler with low power is used as a replacement for it.
In a space of 36 sq m, rooms can be located:
- living room;
- bedrooms;
- kitchens;
- small bathroom;
- boiler room;
- hallway.
A good option would be to combine the kitchen and living room by type studio... Thanks to this solution, you can increase the usable area.
One-storey house plan 9 by 9 meters
Single-storey buildings 9x9 m in terms of layout have the same characteristics as smaller square structures. The advantage of buildings with a side length of 9 m is that the usable area increases, which makes it possible to diversify the interior design of rooms.
As an example, consider door designs. The limited spaces of a cottage with a total area of 36 sq m, in order to save free space, require the installation of sliding-type interior doors. The installation of structures with sashes, which are hidden in a special box placed in the wall, will maximize space savings. While a residential building with dimensions of 9x9 m allows the installation of classic doors with hinged leaves.
Useful advice! With the help of the attic floor, you can partially solve the problem of crowding in small buildings. In this case, the attic area is used to accommodate a large bedroom, which frees up space for organizing a kitchen and living room with increased dimensions. However, you will have to look for a place to install the staircase, which will not cause problems if the attic is included in the layout of a 9x9 m house.
Layout of a one-story house 8 by 10 meters
The choice of layouts is quite extensive, so you have every chance to find a really convenient and suitable option for you. Construction on a suburban area of a house with parameters 8x10 m will allow you to acquire:
- four bedrooms;
- living room;
- kitchen.
And these are just the main living quarters. We must not forget that in such a cottage, in addition to the listed rooms, you can organize bathrooms and utility rooms. The layout may include a veranda or vestibule, which will provide additional protection from the cold in the winter.
When drawing up a plan for a house of 8 by 10 m, in order to save usable space, you can refuse to organize long corridors that steal free space. In addition, a profitable solution would be to combine the areas of the kitchen and living room by removing the wall separating these rooms.
Projects of one-story houses up to 150 m2: photos and popular layouts
Some projects may have additional structural elements that enhance the architecture of the building.
These elements include:
- bay window;
- balcony;
- terrace;
- veranda.
Note! All these elements look like external outbuildings (the exception is the bay window), which are designed for operation in the warm season and in good weather conditions.
The terrace and veranda are good for organizing a seating area. In the evening, this space can be used for tea drinking with family or friends. The balcony will be a great place to relax and contemplate the beauty of the landscape around the house.
A bay window has a more complex functional meaning for a building. It effectively decorates the house from the side of the facade, and is also able to make the interior layout more interesting. In addition, the bay window allows the installation of large windows. This increases the flow of natural light that enters the house from the street.
In the drawings of buildings with bay windows, you can see how interesting a regular rectangular or square building box with standard parameters becomes. Most often, bay windows are installed in structures made of stone or wood. In this case, the type of material has a direct impact on the shape of this element.
Plans for a one-story house 10 by 12 meters and 10 by 10 meters
One-story cottages with dimensions of 10x10 m and more are already beyond the scope of projects up to 100 sq m. Most often, owners of land plots with a large area think about the construction of such a building. Such a structure can be used not only as a summer cottage for the summer season, but also capable of performing the function of a full-fledged housing for the permanent residence of a family of several people.
The advantage of square rooms is that they facilitate the distribution of furniture items and are optimal for organizing a good level of lighting.

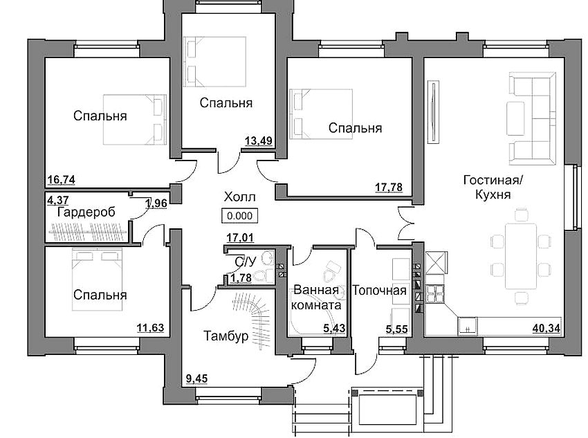
Three-bedroom one-story house plan, 10x12 m
The building with dimensions of 10x10 m can accommodate a family of 4-5 people. In general terms, the layout of such a cottage allows you to create living conditions similar to what a three-room apartment in the city offers. Heating is provided by the boiler room in such a house.
In addition to the required rooms, the owner can arrange other rooms that provide increased comfort:
- equip the office;
- to increase the dimensions of the bathroom with the subsequent installation of a bathroom instead of a shower stall;
- install a jacuzzi.
Useful advice! If the project is enlarged to 10x12 m, it will be possible to add a guest room and a dressing room to the general plan.
The plan of a one-story house 11 by 11 meters
One-story timber houses - a great alternative to brick and concrete. Wood cottages are not only inexpensive, but also environmentally friendly. It will not take a lot of time to construct a building made of 11x11 m timber. In return, you will receive about 102.5 sq m of usable area and a sufficient number of premises.
Building design 11x11 m may include:
- several living rooms;
- kitchen;
- bathroom;
- hall;
- veranda, vestibule, boiler room.
It is recommended to use timber with parameters 150x100 as a building material. The horizontal type of construction allows you to abandon the installation of a staircase, which itself has a complex structure and construction technology, and even occupies part of the usable area both on the first floor and on the second. There is no such problem with one-story buildings.
One-story house plan 12 by 12 meters
A one-storey building with dimensions of 12x12 m can become an excellent basis for creating a comfortable layout. Housing dimensions allow you to organize:
- several bedrooms;
- living room;
- kitchen;
- dining room;
- two full bathrooms.
Projects 12x12 m allow you to organize a basement or attic. An extension in the form of a terrace or a garage can expand the useful area of the house.
There are many options for creating a convenient and comfortable building plan for building a suburban area. The choice is limited only by your imagination and budget.
































