All owners of small apartments want to save space and make every square meter of housing functional. The bathroom is no exception. It is the corner shower cabin 90x90 with a high tray that will help to cope with this. It is very comfortable, modern and takes up significantly less space than a conventional bathtub. This product is the choice of practical people who want to make their home comfortable and convenient.

Modern shower cabins with a 90x90 deep tray can have many functions - it can be a sauna, hydromassage or a steam installation
Content
Shower enclosures with a high tray: advantages of use
The modern plumbing market is replenishing with more and more new options. Therefore, it is easy to find cheap corner showers in specialized stores for every taste. Such products are very popular because they have a number of advantages. Even the smallest bathroom can easily accommodate a 70x70 corner shower. Using it frees up space for other things, such as a washing machine.

An important advantage of deep pallets is that they make it easier to maintain the communications hidden underneath.
This is the main advantage of such a booth, because in 1 sq. m contains a convenient device for taking hygiene procedures. The optimal and most popular size is 90x90 cm. In such a shower stall, any person will feel comfortable, will not be constrained by walls, and the structure itself will easily fit in the bathroom.
Most often, young families choose a corner shower with a high pallet 100x100 or 90x90. After all, thanks to the deep pallet, you can soak up in it yourself, wash your child or wash small laundry. Also, significant advantages of such cabins are the following characteristics:
- Heating the inner space of the shower cabin. The air heats up quickly and the temperature lasts for a long time.
- Pallet capacity. Thanks to this, you can take not only a shower, but also a bath. The dimensions of the product allow both adults and children to wash.
- Hiding communications. A special metal frame easily hides all pipes.
- The minimum risk of injury and the absence of the likelihood of flooding neighbors. From the cabin, water does not fall on the floor of the bathtub, which means that slipping or ruining the repair for yourself and your neighbors from below is impossible.
- The high side makes it possible to make relaxing foot baths.
- In addition, many showers are equipped with various accessories to make showering more comfortable. For example, the hydromassage function will help relieve fatigue after a working day, and the radio will cheer you up.

A shower with a deep tray is an opportunity to harmoniously combine two components: a shower and a small bath
Helpful advice! A 90x90 shower cabin with a high tray is not entirely comfortable for the elderly, since it is not very convenient for them to step over the high side of the product. In this case, it is better to buy a corner shower cabin 100x100 with a low pallet.
Some modern models are equipped with a special seat on which you can sit down to take a break while taking a shower or comfortably sit in a dialed bath.
Sizes of corner shower cabins: product parameters
You can buy a corner shower cabin with both high and low pallets. Manufacturers also divide their products according to the geometric principle:
- semicircular - suitable for medium-sized bathrooms in apartment buildings;
- square - for small bathrooms;
- corner - for non-standard layouts;
- rectangular - for medium and large rooms.
Small cabins are perfect for apartments, small country houses and summer cottages, baths and saunas. Large cabins with exclusive equipment are also available. Such dimensions have standard models of corner shower cabins: 80x80, 70x90; 90x90; 100x80. These products are equipped with the usual feature set.
The average size of shower cabins is suitable for a standard average family. Since the walls do not restrict the movements of a tall man and are comfortable for bathing a small child, the high pallet makes it possible to swim while sitting. Such modern products are supplemented with additional functions, for example, hydromassage. The sizes of such shower rooms: 100x100; 110x80; 120x80; 120x120.
Large spacious cabins can be afforded by owners of bathrooms with an area of 15 sq. m and above. Sizes of large shower rooms: 130x130; 140x140; 150x90; 170x90.
When choosing a product, it is better to give your preference to a corner shower stall. It is more spacious than a similarly sized rectangular or square. The person in the corner shower is positioned from corner to corner, not in the center.

It is important to consider not only the size of the shower cabin, but also the dimensions of the room where it is planned to be installed.
The modern shower cubicle market offers a huge number of products to choose from, among which it is easy to get lost. When choosing a product, you must rely on the following characteristics:
- dimension shower room;
- pallet height;
- booth brand;
- product model;
- design.
Particular attention should be paid to the quality of the shower stall. After all, this thing is not cheap, which means that it will often not be possible to change it.
Helpful advice! Preference should be given to corner shower stalls with a bath of well-known brands, models with a proven reputation. After all, it is better to lay out a round sum once than to constantly spend money on structural repairs.

Before installing the shower stall, you need to measure the height of the ceilings, because in some models the pallet exceeds 40 cm and the structure may simply not fit
Now the most popular brands are Polar, Niagara, Timo, Erlit, Roca. Let's consider the most common models in more detail.
Cheap corner shower enclosures 80x80 from Polar
This 80x80 corner shower stall with a high tray is a universal option for any room. Such a model is compact, but a large person will not be entirely comfortable taking a shower.
The model is equipped with a mixer, a small shelf, aluminum profiles and arcs are used here.The doors are made of matt tinted glass. The shower room is equipped with a safety glass 4 mm thick, painted white. The shower head is attached to a flexible hose. The pallet is 40 cm high. It is equipped with a metal frame. During manufacture, reinforcement is used, which provides additional strength to the pallet.
This 80x80 corner shower stall has a height of 200 cm, which allows the product to fit perfectly into a room with a low ceiling.

The Hong Kong sanitary ware manufacturer Polar has proven itself in the global market, its showers are of excellent quality at a reasonable cost.
Popular model: shower corner 90x90 Niagara
We present to you a shower with a high tray from the manufacturer Niagara.
The structure frame is made of high-strength aluminum alloy. The pallet legs are adjustable. The rear window of the cockpit is made of white tempered glass. Glass curtains matte, corrugated, 5 mm thick. The top of the product is covered with a water-repellent material. The doors are designed in such a way that if they break, they will not scatter into pieces, but into granules, which reduces the risk of injury.
The shower stall profile is chrome-plated. The shower faucet is made of brass alloy. It is possible to switch modes. There is a shelf for hygiene products. The manufacturer of the product gives a 1 year warranty for the product.

A successful model of a 90x90 corner cubicle from the sanitary ware manufacturer Niagara, the walls and pallet of which are made of high-quality European white acrylic
Reliable Finnish Timo corner showers
The manufacturer of this model is the Finnish company Timo. The product's corner shower tray is made of acrylic sheet. This material has a long service life. Sliding doors are placed on self-adjusting rollers. Equipped with a shower cabin with a reliable and high-quality hydromassage system.
Thanks to the t-rigidity technology, the profile of the structure is resistant to deformation. Its surface is treated with a protective crystalline oxide film. The processing method - electrochemical anodizing - ensures the resistance of the material to mechanical damage.
Equipped with a shower room with extensive functionality: rain shower, mixer with several operating modes, internal ventilation, decorating lighting. The control kit includes a remote control. The glass of the model is tempered, injury-proof - it breaks into granules.
The shape of the pallet is semicircular. Installation is simple, but it requires following the instructions. The price of this model is above average.

An excellent quality shower cabin of the famous Finnish manufacturer Timo in which everything is thought out to the smallest detail
Shower cabin 120x80 with deep tray Erlit
The manufacturer of this model is the Chinese company Erlit. The main distinguishing feature of this shower room is its asymmetrical shape. The pallet has a reinforced frame. The front glasses of the model are matte, the back walls are white. Sliding doors made of tempered glass 4 mm thick. The booth is equipped with all the basic functionality. There are also additional options: ventilation, hydromassage, rain shower. The control is carried out by the remote control. The shower head is mounted on the rail, and there are also several shelves.
Most often, such booths are chosen for installation in private houses and apartments. Despite the good quality and extensive feature set, the model is inexpensive. In addition, such cabins are made exclusively from environmentally friendly materials. And due to the fact that the pallet is equipped with a siphon, the owner of the booth is protected from the appearance of unpleasant odors from the sewer. The shower drain is closed and opened by pressing the foot.
Volumetric corner shower cabin 120x120 from Roca
The overall 120x120 shower model is designed for installation in large bathrooms. Cabin doors sliding, mounted on a metal profile, made in two versions: white and silver. The front part consists of 2 parts: 2 doors and 2 fixed glasses on the sides of the doors. Glass thickness 4 mm. User reviews of this model are extremely positive.

The Roco collection of shower enclosures from a European manufacturer, specially designed for large bathrooms, is the pinnacle of perfection and sophisticated style.
Alternative option: corner shower cabin with a low base
This model is an excellent replacement for the deep pan products described above. The peculiarity of such a shower is in a specific drainage system that does not retain water inside the equipment. Thanks to this, you are not afraid of the strongest water pressure. This is especially true when using features such as rain showers and hydromassage. Another advantage is a low threshold, which does not cause difficulties for entering and exiting the shower.
Related article:
Shower cabins: sizes and prices, bathroom design photos
Review of manufacturers. Small bathroom design. Do-it-yourself shower cubicle made of tiles.
Corner shower cabin 90x90 with a low pallet will delight consumers with a variety of designs. The product seems light due to the use of glass and mirrored surfaces. Corner shower cabin with a low base 80x80 will be a great decoration for a small bath. In addition, this model of this size is very easy to use. Moreover, all the necessary functions are present in this compact product. A corner shower cabin 100x100 with a low pallet is more expensive, but this model is much more comfortable.

If there are elderly or disabled people in the family, it is preferable to choose a shower stall with a low pallet, which is easier to get in and out of.
How to choose a siphon for a shower cabin with a high tray
The siphon is the most important part of any shower enclosure. It prevents unpleasant odors from the sewer from entering the bathroom. The siphon itself is a curved tube through which the used water is poured from the shower tray. Most often, a conventional siphon with a water seal is used. But now there are more modern options - automatic siphons with a click-clack shutter system.
The click-clack system allows you to close the shutter with one foot press on a special button to draw water into the pan. With a similar movement, the water is drained. It is convenient, but such a siphon is more expensive than usual.
Siphons differ from each other in shape. They are pipe, bottle and corrugated. The latter type is suitable for any shower room, since its installation is easy even in the most inaccessible places.
When buying a shower cabin, you don't need to worry about a siphon. But this part of the shower stall wears out quickly and needs to be replaced. To do this, you need to know the diameter of the drain hole. In the standard it is 45-60 cm.
Helpful advice! Going to buy a new siphon, so as not to be mistaken, it is better to take a worn-out part with you.
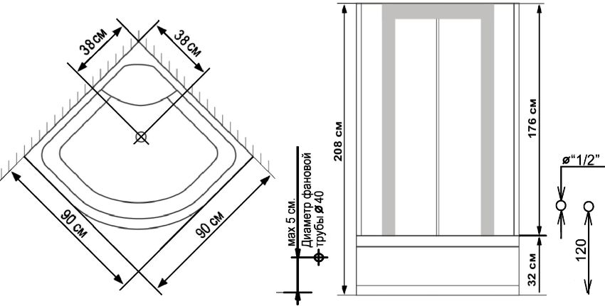
Corner shower cabin 90x90 with a high tray: installation features
The main thing during editing is to avoid mistakes. The most common mistakes and how to solve them:
- Poor sealing of the product. This provokes moisture under the shower stall. To eliminate this drawback, it is necessary to cover the joints of the parts with silicone sealant.
- Incorrect ratio of the level of the sewer pipe and the bottom of the car. In this case, the water is slowly drained and stagnant. Correcting the discrepancy is simple: you need to adjust the legs of the pallet.
- Incorrectly installed guides for opening doors. To fix this, it is advisable to rearrange the lower and upper profile.
- The level of the shower tray is not set sufficiently. In this case, some of the water is not drained. Solving the problem is easy: you need to align the legs of the booth.

It is quite within the power of a person to install a corner cabin, even with little experience in this matter.
How to assemble a corner shower
If you wish, you can assemble any booth with your own hands. First you need to prepare all the tools and clearly follow the instructions for the shower. Then you will be completely sure of the correct installation of the booth.
The installation process is conventionally divided into the following stages:
- The shower cubicle is mounted on a metal base in the corner of the bathroom.
- Pipes are attached to the inner bottom of the cab. Depending on its shape, they are fastened crosswise or in parallel.
- To prevent the sump from sagging from the collected water, bricks are placed under the frame.
- Next, plumbing works are carried out: drainage, installation of additional equipment. All this is described in detail in the instructions.
- At the final stage, the doors and the roof of the cab are mounted.
Helpful advice! The surface of the shower stall must be treated with specially designed products. It is strictly forbidden to use products with a high abrasive content.
Compliance with all operating rules guarantees a long and safe use of the shower corner panel. If you are not confident in your abilities, then it is better to contact a specialist to install the booth.
Disassembling a shower stall is easier than assembling. To do this, you need to do the following:
- Disconnect the cab from the water supply and power supply.
- Remove old sealant.
- Remove mixer and shelves.
- Remove doors and glass.
- Remove frame and pallet.
Instructions for assembling the structure will help to correctly dismantle the shower room. The scheme will make it possible to verify the correctness of their actions.
Corner showers: sizes, prices and photos
The price range of shower cabins with a high pallet is wide enough and depends on many factors. The cost is directly related to such characteristics:
- the quality of the materials used during manufacture;
- manufacturer country;
- functional fullness of the model;
- cab dimensions;

Prices for corner shower cubicles will vary greatly not only due to differences in configuration, but also depending on the country of origin
- pallet depth.
Also, the price for the same model may vary depending on the place of purchase. Each seller can make a different markup. Branded cabins are always more expensive. In addition, manufacturing companies can decorate products with expensive stones, gold and silver details, ivory or marble elements. Some models are equipped with entertaining and relaxing features: radio, lighting, telephone, hydromassage, sitting. The presence of such functionality increases the cost of the product.
The plumbing market leaders are Italian showers. They are considered the most reliable, stylish, and therefore more expensive than others. Next in price are manufacturers from America, followed by German and Finnish brands.
The cheapest shower cabins are 70x70 from River Don. Such boxes have various design options. For conventional models of this size, the price is approximately 11 thousand rubles. Small cabins have different configurations, so all models have different prices. The cost of products measuring 90x90 with an extraordinary design is about 21 thousand rubles. Exclusive models with additional functions have a price of 40 thousand rubles.

Often, a 90x90 corner cabin with a deep pallet is a product of expensive, famous brands, which has a significant impact on its cost.
An optimally selected shower stall makes it possible to make the space in the bathroom as functional and spacious as possible. It is best to choose a corner shower stall with a high tray that allows it to function as a bath. For a standard small room, a 90x90 corner shower stall is best suited.Thanks to modern design ideas, a simple standard cubicle has become an extraordinary highlight.








