One of the most interesting decisions in the construction and reconstruction of living space is the design project of the apartment. It is a specially prepared set of graphic documents and calculations that requires an individual approach. This article will consider the factors that you should pay attention to when performing apartment renovation: design, photo, etc.

The successful implementation of even the simplest repair always depends on a well-designed project design
Content
- 1 Where to order a design project for an apartment: the initial stage
- 1.1 How to make an apartment design project yourself: creating a sketch
- 1.2 Apartment renovation: design, photo and development of technical specifications
- 1.3 How to make a design project for an apartment: calculating an estimate
- 1.4 Apartment interior design project: 3D model creation and project approval
- 2 Apartment design project: prices for common services
- 3 An overview of the most popular apartment design programs
- 4 Features of the design project of a studio apartment
Where to order a design project for an apartment: the initial stage
A design project can now be ordered on the Internet, for example, on the website of a company that provides such services for decorating premises. Many firms that successfully exist in the interior design market can offer a client a phased order payment or an installment plan.

Designing an apartment before renovation, it makes it possible to rationally distribute the useful space in advance
An individually tailored project assumes the presence of a designer on each of the important aspects of the work. He supervises the activities of the repair team, other employees, and is also responsible for the quality, accuracy of the idea and the durability of the interior. When drawing up a design project, it is recommended to use the services of qualified specialists, since this work requires professional knowledge and skills.
The initial stage in the implementation of the design project is based on the inspection and assessment of the premises that need to be redesigned. Together with this, measurements are taken of the rooms. This is the fundamental aspect necessary for the subsequent stages of the work of the designer and the construction team.
Helpful advice! It is necessary to carefully approach the issue of measurements, since even small flaws can lead to the fact that the project will need to be changed already in the midst of repairs. Not only will this lead to new expenses, but it can also cause unnecessary anxiety. Multiple measurements will allow you to avoid shortcomings and get a high-quality result at the output.
Various means are used for measurements and visual assessment: an ordinary tape measure, laser meters, as well as photographic and video equipment. 3D visualization allows you to see what the finished project will be like even before it is completed. In addition, already created design projects can be supplemented or slightly changed before starting work.
If you wish, you can complete a free design project of the apartment yourself. However, such an event requires taking into account many factors, therefore, before starting to draw up a plan, it is recommended to study all its individual aspects.
How to make an apartment design project yourself: create a sketch
On the Internet, you can order a design project for an apartment. Free consultation, which in most cases is offered by companies, allows you to understand the nuances of drawing up a plan in each specific case.
As a result of the collection and processing of primary data, visual views of future premises will be obtained. Usually several variants of sketches are created (starting with three or more). Of these, the customer chooses the most suitable version. Among the fewer options, the client may not find the desired project. This means that all the work will have to be done anew.
Such sketches are created independently using special programs. You can easily find and download one of them on the Internet. It is important to remember that when working with a sketch, it is necessary to take into account the individual characteristics of the housing in which the repair will be carried out. The web also contains many photos of ready-made ideas. For an apartment, various contemporary styles are the best options.

So that expectations are justified and do not disagree with the final result, interior designers propose to create a design project for the future apartment before starting repair work
When drawing up a sketch, the colors of all surfaces are selected: ceiling, floor and walls. The selection of furniture and auxiliary elements of the interior is also carried out in the program through 3D modeling. This format makes it possible to create many design options. In addition, it is worth considering aspects such as living in a room for small children or people with disabilities.
The sketch will allow you to make a beautiful design of the apartment (both small and more spacious). Then a safety project is created. It takes into account the preparation of technical documents containing detailed information on all communications in the room.

All items, elements interior design apartments get their visual form thanks to three-dimensional modeling technology
Apartment renovation: design, photo and development of technical specifications
Based on the sketches drawn up earlier, the preparation of the technical task is carried out. This stage takes into account the discussion of a number of important issues, namely: does the apartment need redevelopment, is there a need to intervene in engineering networks, etc.
Note! In order to simplify the process of drawing up this task, it is recommended to contact the MFC. This will allow you to get a technical plan for the premises, which will save time when drawing up a design project for apartment renovation.
At this stage, the sketches must be converted into schemes that correspond to the layout of a particular dwelling. They include all the necessary calculations and tables, and also contain a guide for repair work.
The terms of reference consists of plans for all communications that ensure comfortable living. The most essential ones:
- heating;
- plumbing;

During work on visualization, a technician performs the development of drawings and project documentation
- sewer;
- gas;
- electric.
And also plans are drawn up for the use of construction and finishing materials and the necessary tools. It is necessary to divide the room into zones and supplement the description with various details of the interior arrangement. Thus, it is much easier to create a technical plan for the design of a small apartment. The area in this case plays a very important role.

Home interior design is not only pleasant creativity, but also painstaking work, the success of which depends on the skills and experience of specialists
All this allows you to form a general design style. Separate zones must be combined into one whole. As a result, you can see in advance what the interior will look like after the completion of the work. If you used the services of a specialist, then at this stage the designer must submit the finished results of the layout of the premises and comfortable lighting.
Related article:
Renovation of an apartment in a new building from scratch: what, how and when to do
Features of finished premises from the developer. Repair stages. The price of a specific type of work and the total cost of turnkey repairs.
It is very important to take a responsible approach to the creation of technical specifications. It is the main document by which the project is verified. Therefore, the participation of highly qualified specialists in the creation of such a plan is desirable. This will allow the interior to serve for a long time and delight you with its device.

At the final stage of the design project, the client receives all the necessary technical drawings, which will significantly facilitate the implementation of the approved interior
How to make a design project for an apartment: calculating an estimate
After the work on the creation of the technical part of the ordered project is completed, its economic basis is calculated. The paper summarizes the cost of materials used to implement design ideas. It also includes the total shipping costs if the supplier does not provide free shipping.
The payment for the services of the personnel performing the repair work is calculated separately. Based on the data obtained during the calculations, the sheets are created, which are necessary for the purchase of materials. In addition, contracts are signed with companies providing repair services.
The price that you pay for drawing up a complete plan that takes into account absolutely all aspects of the renovation depends on the area of the premises. Thus, the creation of a design project for a three-room apartment will cost significantly more than a small one-room apartment.
Provided that the project is formed in advance, prices may change. A list of firms engaged in construction work should be collected. This will allow you to make a choice between different organizations or open a tender for the execution of the order.
Apartment interior design project: creation 3D models and project approval
At this level of development of the project, the design is presented in a graphical form. Experts say that creating a 3D model can take a significant amount of time for the entire design work, but it's worth it. These developments are good in that they make it possible to think in detail about the future environment of the room. Also, experts propose to carry out an online journey through the living space being developed.
Before proceeding with an independent execution or ordering a 3D model, it is recommended to see a photo of apartment renovations. Pictures will allow you to visually evaluate the advantages of a particular solution for the interior and determine the design of your home.
A high-quality 3D model is distinguished by the selection of lighting.The designers explain that it is the play of light and shadow, light reflections and the display of colors that give the finished image of the finished “product”. Often, various lighting scenarios are additionally worked out. This shows how the room changes depending on the time of day, as well as when using different light sources.
Useful advice! If you would like to use a more budgetary and less time-consuming option, you can opt for a presentation. This is a simplified version that will also show you the final design model, but without the additions typical of 3D structures.
The previous stage ends with the customer receiving a ready-made design project for an apartment with an interior (photo with a plan) in graphic form. Now only small changes in the appearance of the room will be possible. An example is the replacement of finishing materials, a change in the features of the decor. But it should be borne in mind that such changes will affect the cost of services.
After that, the purchase of decorating materials and accessories is made. They can be purchased at furniture and hardware stores. Now that the work on adjusting the design project has been completed and all the necessary edits have been made, the construction foremen begin to take active steps.

At the design stage, they are determined with the location of partitions, doorways, heating equipment
Apartment design project: prices for common services
The price range for the development of a design interior for a room in Russia varies from 1000 to 2000 rubles. per square meter. The difference in the tariff depends on the complexity of the project, individual characteristics.
There are many companies that allow the customer to calculate the cost of work on the site based on the footage. To calculate, you must enter the numerical data for the area of the apartment and the price declared by the company. The online calculator greatly simplifies the calculation process, therefore it is recommended to use it to determine the final cost of the project.

Apartment design project is an indispensable service for complex turnkey renovations or when you want to make your home truly unique.
In order to answer the question of how much the apartment design project costs, you need to decide on the service option that is most preferable for you. For example, the most budget type of design project is "sketch". Its price is about 200 rubles. per square meter. The cost of this service includes the planning of measuring work, a redevelopment plan (if necessary), as well as installation and dismantling.
Another type of interior design for a small apartment (or larger) is “full”. Its implementation will require about 1,500 rubles. per square meter. In addition to the above, other services have been added to the list of services offered by this program. Among them are the following: a project for laying wall, floor and ceiling coverings, the installation of lamps, sockets and switches. The most suitable furniture arrangement is determined, door structures are selected.
And also the designer provides drawings for finishing and decorating the room. A list of required materials is compiled. The arrangement of the bathroom rooms is planned. In addition, the client receives a 3D visualization of the final results of the processing of the premises.
Note! If necessary, you can download ready-made apartment design projects on the Internet for free. However, in this case, it is recommended to choose a plan for an apartment that has the same area as yours.

The price of a design project directly depends, first of all, on the area and type of premises, as well as the number of required services
In addition, there is a "premium" project, which is the most expensive of all the options presented.It includes not only all the services of the "sketch" and "full" types, but also the personal control of the designer, as well as his visit to the place of repair work at least 4 times.
Depending on the type of project, the timing of design developments also differs. For example, for the least costly "draft" plan it will take 2-3 weeks, it will take about a month and a half to complete the "complete" assignment, and for a "premium" program it will take more than two months. Photos of apartment design projects will help you assess the difference between their types.
Renovated apartment design project: photos and recommendations
First of all, you need to decide on the question of what style the apartment will be renovated in. It is necessary to study the features of the room and the chosen style, evaluate their compatibility, and also think over the ratio of colors and textures.
Before starting work on drawing up a plan, it is recommended to consider several examples of apartment design projects. They can be easily found on the Internet using the browser's search bar.

3D visualization of the interior is one of the tools of a modern designer, which provides the ability to create a three-dimensional image of a room design
To create sketches, you will need to purchase a measuring tape or tape measure, as well as carbon paper and pencils. When creating a project, you should pay attention to a number of important recommendations.
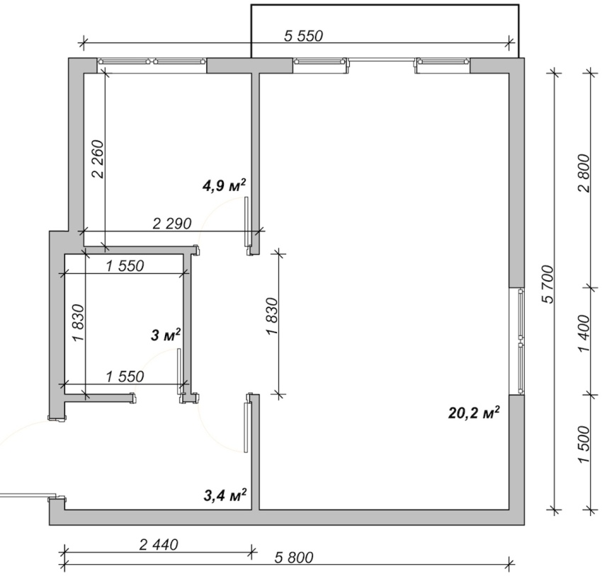
How to make a design project for an apartment yourself? To get started, you need a schematic floor plan, which you can draw yourself or order from the nearest MFC. When the drawing is ready, it is necessary to make the changes necessary for the repair, as well as to depict the details of the future design.
The next step is to display the arrangement of furniture on the drawing, select the desired color scheme. To do this, use a stencil. With its help, you can give free rein to creative aspirations and create a variety of different projects, designs, drawings, ornaments. It is advisable to make several options and focus on one of them.
When choosing a color palette, you should pay attention that light pastel colors are considered more suitable for the bedroom and kitchen, and bright and saturated colors for the living room, hall, corridor. But this does not mean that you should abandon the luscious tones in the room if it suits your taste. In order to choose the desired color, it is recommended to study examples of apartment designs.
Also, you can independently develop the desired furniture design and supplement the room layout. After that, you should choose a suitable option in the store by looking at the models online, or order the necessary models at a furniture factory, from designers. In addition, if you wish, you can apply drawings and patterns to the frames.
Helpful information! Do not forget to put the footage of the apartment on the diagram, as well as the dimensions and boundaries of interior items, walls, windows, doors. In addition, you may need to decipher the conventions used when creating the project.
Do not forget about auxiliary decorative elements, which should look organically in the interior of the room. It is important to remember that experts categorically do not recommend oversaturation of the interiors of small apartments with auxiliary details. Photos of small houses in minimalist styles will help you appreciate the benefits of such a solution.
An overview of the most popular apartment design programs
Today there are many programs that use 3D modeling. They are all subdivided into paid and free ones. Each of them has its own characteristics, pros and cons, so you need to familiarize yourself with them in more detail.

When planning a renovation or wanting to update the interior of an apartment, you need to visually imagine how it will look after renovation
3D Studio MAX. This service is intended for interior design. It is regarded by experts as a professional class program. The main purpose is 3D modeling and animation. Having carefully studied all the features of this software, you can easily transfer the design project of apartment renovation from paper to screen.
Since plug-ins are constantly updated and supplemented in the application, you can always expand the capabilities of this program, for example, supplement the picture with the display of various textures: silk, wool, suede and others.

Free programs are widely used now, designed specifically so that everyone can create the apartment of their dreams
Nevertheless, people note that the program is not very easy to learn. But you can spend more time studying it and save money without going to the professionals. You will be pleased not only by the result, but also by the fact that you yourself have created the interior of the designer apartment.
ArchiCAD. This program, according to architects, is considered one of the best in design. With its help, you can model the interior element you need.

A realistic image of a room made in the ArchiCAD program will help to visually represent it at the end of the repair
The developers offer a wide range of options. If necessary, you can design the necessary foundation, doors, windows, walls and ceilings, stairs, as well as numerous small details of the layout of the apartment. Photos of finished projects will help you figure out in which direction you need to work with this program. It is worth completing the work by selecting the detailed design of the apartment.
The presence of built-in plugins will allow you to do the most interesting thing - decorating the room. Here you will find a variety of artistic elements. If you have a desire to diversify the interior with painting or modeling, then the program will help you with this.

Programs for creating the interior of apartments, will help develop the design of housing in the smallest detail
Note! You should take into account that you will have to spend quite a lot of time to understand the features of this software.
As a result, you will get an excellent quality picture that will look quite photorealistic. Thus, the time spent on studying the program will pay off in full with a beautiful renovation in the apartment. It is not for nothing that professionals prefer ArchiCAD, and also advise it to those who design on their own.
PRO100. This program, according to many interior designers, is one of the easiest to use for a beginner. The platform has a Russian-language layout, which makes it easier to work with and promotes quick development. Also one of the advantages is that the application can be adapted to suit your needs and skills.
All available functionality is simple enough for understanding and further use. In addition, with the help of this software, you can perfectly arrange furniture in the reconstructed premises. Thus, for non-professionals, such a program is one of the best. With its help, you can translate into reality the idea of an interior for a small apartment or a larger dwelling.

An interior design program is needed to imagine how a room or apartment will look like with certain furniture
Google SketchUp. It is a powerful software, the interface of which is designed for different categories of users. The program is available in a free format, which is mainly for informational purposes. The next type of license is limited, which is intended for personal use. There is also an all-inclusive form that contains options for the advanced professional.
According to users, this service is pleasant and easy to use. The menu is quite conveniently arranged here. Manufacturers took into account the needs and capabilities of different types of audiences, adapting the service for each group.
For a non-professional user, simple and affordable functionality will be attractive, as well as a wide range of ready-made templates and solutions. At the same time, experienced design people are more likely to be interested in the possibility of detailed reconstruction of the interior. In addition, the program allows you to develop visualization of the exterior, to design buildings and unusual structures.
Google SketchUp will help you create an interior for a private house or design a design for a small apartment. Photos of samples made with this program allow you to visually evaluate its benefits.

Using a 3D interior program, you can easily design the design of an apartment, room or any other room
It should be noted that with the help of this software, according to numerous users, you will receive high-quality design documentation. In addition, the application is complete with a tutorial and a set of instructions for all functional components of the application.
Astron Design. This program is remarkable in that it is fully focused on the Russian-speaking audience. With this application, you can easily solve the issue of finishing wall, floor and ceiling coverings, as well as design and arrange furniture. Starting work on the design transformation, we see before us templates that are presented in all their variety, or a blank sheet that allows us to create a project from scratch. Among the advantages of the program, users note a convenient interface and pop-up windows.
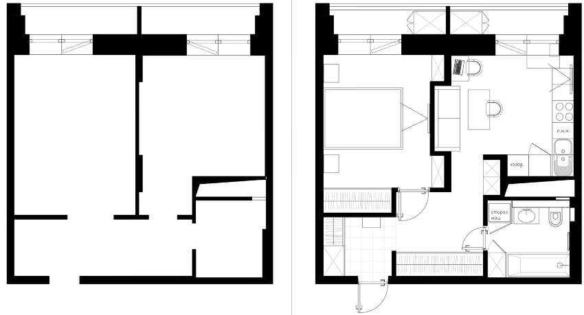
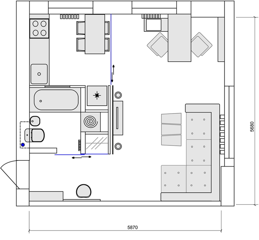
Features of the design project of a studio apartment
When choosing a style for a studio apartment, designers recommend paying attention to minimalism. This option is the most acceptable and concise, and also contributes to competent zoning.
Note! Fulfilling the plan for the future renovation of the room in which the kitchen is combined with the main room, special attention must be paid to zoning. It is necessary to divide the functional areas in a large room into areas for eating, working, sleeping and resting.

When drawing up a project for a studio apartment, it is important to pay attention to the zoning of the room and the interior concept
Today there are several ways to distinguish a segment separate from the general interior in a small apartment. Photos of interior designs contribute to a visual study of the benefits of each of them. Let's consider these methods:
- flooring;
- Colour;
- shine;
- sliding doors;
- partitions and screens.
When choosing furniture for a studio apartment, experts recommend abandoning bulky structures. It is best to buy multifunctional and compact furniture that can be transformed if necessary. You can use both a sofa and a bed as a bed, but in the first case, more usable space is saved. In addition, furniture can be used for space zoning.
If you want to draw up a project for the redevelopment of a typical apartment with one room in a studio, then you will need to contact the specialists. The kitchen area in a studio apartment can be highlighted with flooring, laying tiles. Also preferred is LED lighting, which helps to segment the space.
Furniture for the kitchen located in the common room is best bought to order, taking into account the individual characteristics of the room. As for the technology, it is recommended to purchase a built-in one, which can be easily integrated into the headset.
Auxiliary elements are also very important and serve an accentuating function. They can be of any color, harmonize or, conversely, contrast with the tones in which the surfaces of the room are painted. Compliance with the above rules contributes to the competent drawing up of the design of a small apartment. Photo studios will help you choose a stylistic solution, so it is recommended to study them before developing a project.
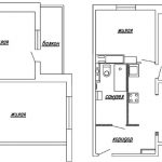
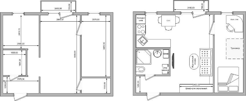
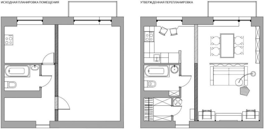
Apartment design project: cost and features of redevelopment
Redevelopment of any apartment requires a project that makes it possible to assess the feasibility of this decision. And also, this plan is needed to obtain a permit that allows you to carry out the relevant work in a legal manner.

An important advantage of redevelopment is the renovation of the interior, a change in the familiar environment
To order an apartment redevelopment project, you need to contact an organization that has an SRO approval. You can also use the services of a qualified specialist who has passed the appropriate certification.
To complete the redesign, it will be necessary to discuss and agree on all possible nuances in public services. You need to obtain permits from such authorities as:
- Fire Service;
- sanitary and epidemiological station (SES);
- network engineering;
- gas service;
- architectural control.
A sample redevelopment project for approval can be easily found on the Internet. Such a plan is a document that allows you to obtain permission to carry out the relevant work. Registration of such a plan is carried out taking into account the requirements that are determined by local urban planning standards.

Redevelopment is resorted to in order to make their home more functional and suitable for the life of a particular family
Helpful information! Different cities have their own nuances of approving an apartment redevelopment project. A sample of this plan must also be submitted to the housing inspectorate (without approval).
What documents need to be presented to the design organization? First of all, you need a plan for a high-rise building. And it is also worth preparing sketches of the proposed work, a situational plan and a technical report on the state of the supporting structures. The last document should contain information about what kind of work can be performed in these conditions.
The price of an apartment redevelopment project may be different. It depends on what services the company provides. For example, drawing up a regular plan (without further approval) will cost less. In most cases, companies take on absolutely all the hassle. One way or another, today the cost of an apartment redevelopment project is on average 10-25 thousand rubles.
An apartment design project is a serious event that includes many nuances. Before drawing up such a plan, you should study all the necessary points and follow them. Experts categorically do not recommend deviating from the algorithm for drawing up a design project, as this is fraught with unpleasant consequences.


















































































































