Initially, the main task of the saw is to saw wood. If you try, the device can be given more functionality. Homemade chainsaw products are striking in variety. In addition to the fact that various nozzles are available in retail outlets, such as a grinder, a corroder or a pump, many use improvised means and create new devices. So, from chainsaws they make mopeds, snowmobiles, electric generators and other devices suitable for everyday life.
Content
- 1 What homemade products can be made from the Druzhba chainsaw and other devices
- 2 The main chainsaw attachments that have gained popularity
- 3 How to make a winch and a sawmill from a chainsaw with your own hands
- 4 How to build a lawn mower using the tools at hand
- 5 Motor-cultivator, snow blower, ice drill and do-it-yourself drills
- 6 Homemade chainsaw: outboard motor and other means of transportation
- 7 Design features of a snowmobile and snowmobile
- 8 How to make a moped from a chainsaw or a bicycle with a motor
- 9 What else can you do homemade from a chainsaw
What homemade products can be made from the Druzhba chainsaw and other devices
Even without the use of additional parts, the chainsaw is capable of performing a wide range of tasks. If you purchase additional attachments for the classic design, it will be possible to expand the possibilities of using the device on the farm and get the following devices:
- snow blower;
- brush cutter;
- pump for pumping water;
- gas cutter;
- gummer.
Some craftsmen, armed with basic knowledge of mechanics, create additional accessories for chainsaws with their own hands, which can significantly expand the scope of the tool. To remake it, you need to understand the principle of operation of a universal motor drive, which is easy to use for the manufacture of other devices. Thus, taking a motor from a chainsaw, it will be possible to create the following devices:
- ice screw or drill;
- boat engine;
- a car or bicycle with a motor;
- lawn mower;
- generator.
The reason for the popularity of homemade products from Druzhba-4, Shtil or Ural chainsaws is a large number of advantages:
- powerful engine;
- light weight and compact size;
- the ability to use in extreme conditions.
It is interesting! Home-made products from the Ural chainsaw or devices of any other brand are valued due to the peculiarities of the work and the ability of the tool clutch to protect components and important parts from overloads due to overheating or other breakdowns. Also, the tightness of the motor makes it possible to use the device in any position.
The main chainsaw attachments that have gained popularity
If you purchase special attachments for the instrument, then it will be extremely easy to install them, for this you do not need to alter or disassemble the instrument body. All ready-made devices are designed specifically for installation on a chainsaw. Another important advantage of purchasing a chainsaw is its autonomy. This is due to the fact that all electrical devices require a 220 V outlet. Using a chainsaw, it will be possible to use homemade products in the field, be it a drill, ice screw or cororder.
The do-it-yourself grinder attachment for the chainsaw allows you to operate the equipment not only as a gas cutter, but also as an angle grinder. The nozzle is connected to the device by means of a special pin, and starts to rotate using a belt from a pulley attached to the shaft of the drive sprocket. Thus, the fixture is installed instead of the saw bar. It is important to choose the right diameter of the circle of the nozzle, for this you need to first study the instructions for the "Friendship" chainsaw or other technique used to make a useful device.
Important! Experts warn that it is not possible to install an adapter in all models in order to fit the base.

Coroder is one of the most popular chainsaw attachments
Another common attachment among users is the cororder, which is used to cut bark from trees. Also, the nozzle is popular with carpenters, because with its help it is easy to clean untreated wood from bark, knots and growths. Some people use a nozzle to create longitudinal or transverse grooves in the timber. Basically, there are two types of coroders:
- Drum. The main area of application is the removal of bark, the second name is the debarker.
- Disk. Used to create various kinds of grooves.
There are several nozzles on sale that differ in grip width, more often they are 80 and 100 mm. In case of dullness of knives there is a possibility of secondary sharpening. If the knives are completely out of order, it is better to purchase a new set from the manufacturer. The nozzle itself is a cutter or drum mounted in a bearing assembly. The actuation is carried out by a belt drive, and the rotation speed is regulated by the force of pressing the accelerator handle. The diameter of the pulley also affects the speed: the larger it is, the higher the speed. Studs for installing the nozzle are included.
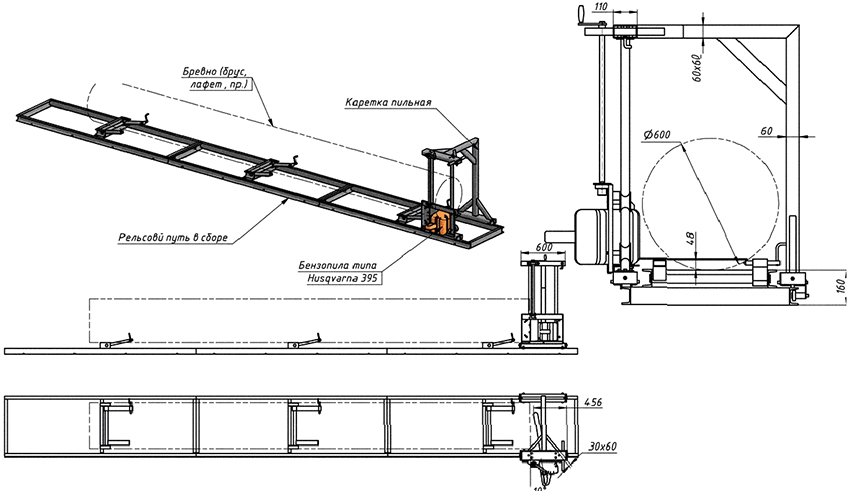
How to make a winch and a sawmill from a chainsaw with your own hands
Homemade products from the "Ural" often help in construction. So, when erecting buildings from a solid forest, you have to dissolve the logs onto the timber. The sawmill from the Ural chainsaw makes it possible to perform this action as quickly as possible, accurately, while maintaining the accuracy of the cut. The main advantage is that there is no need to perform any complex alterations. The device simply needs to be securely fixed in a homemade frame, which can be made of metal corners or shaped pipes. The log for processing is then laid on the prepared guides.
You don't have to create drawings of a sawmill from a chainsaw with your own hands, because a large number of ideas are available on the network that are suitable even for a person with no experience.
The safety of using the structure is ensured by the fact that you do not need to move the log yourself. For this purpose, a carriage with a saw is used, which, depending on the thickness of the log, is fixed at the required height. Once switched on, the frame moves precisely and the cut remains neat and smooth. You can use the device not only for solid timber, but also for sawing boards, in order to harvest firewood.
It is interesting! You need to be prepared for the fact that in the process of work a large amount of sawdust will be formed, since a chain of considerable thickness is used for sawing.
A homemade winch will also be a good assistant during construction, because with its help it will be possible to easily lift loads to a height, move the cut wood. In addition, using a winch, it will be possible to pull out a stuck car or pull a boat out of the water onto the shore. The efficiency of work will depend on the gear ratio of the gearbox; in some models, the indicator can reach 1.5 tons.
To make the device convenient to use, you will need to make a solid frame using welding. The motor, gearbox and drum with braking system should be firmly fixed to the frame. To fix the frame on the body, holes and lugs should be provided through which the device can be installed on any surface.
How to build a lawn mower using the tools at hand
To quickly cope with tall grass or tidy up the lawn, a lawn mower must be present among the owner's tools. You can purchase an ordinary factory version of the equipment, which is convenient to use, but it should be borne in mind that the price of a lawn mower will be significant. A self-made homemade product from a Druzhba chainsaw will cost one and a half times cheaper than a factory device, and the power is quite enough for standard household use.
Regardless of the type of construction chosen, the trimmer will consist of a drive, frame, control system and knives. For the convenience of operation, the device is additionally equipped with wheels, legs, handles and a protective casing in which the cut grass is collected. The process of making a lawn mower begins with the creation of a frame of a convenient size, most often folded from metal corners. The optimal size is 25 × 25 cm.In general, the progress of work on the manufacture of equipment looks like this:
- Using bolts, iron handles are attached to the finished frame, and wheels are mounted on the side parts.
- Having previously studied the characteristics of the Ural chainsaw or any other model, the handle and the tire are removed from the device.
- The rest of the equipment is attached to the base using studs with nuts. This must be done so that the shaft of the gearbox, turned through 90˚, faces downward.
- At the next stage, it will be necessary to lengthen the gas cable, and from two pipes make a sliding shaft connected to the gearbox.
Useful advice! Some people make their own lawn mower knives, for example, from parts of a hand saw. It is much easier to purchase a finished product, which is then connected to the shaft using bolts or a welding machine.
Elements from old baby carriages or wheelbarrows are taken as wheels. If you use several pipes of different diameters for manufacturing, it will turn out to make a device with a telescopic system of work that can change the length.
This is especially important if the device is often used by people of different sizes. Also, creating a telescopic shaft will help to adjust the height of the grass after passing the lawn mower. In order for the device to serve longer, not to fail after meeting with hard stones and to efficiently fight small bushes, it should be equipped with high-quality steel knives. For convenient use, it is advised to additionally equip the mower with a grass catcher so that you do not have to collect the remnants of the cut grass.
Motor-cultivator, snow blower, ice drill and do-it-yourself drills
A chainsaw motor is also perfect for creating a motor-cultivator designed for plowing virgin lands (for light soils). To work with dense and wet soils, the power and torque of the engine are most likely not enough, but to loosen the surface layer and remove the roots of the weeds remaining in the ground, the cultivator from the chainsaw will be enough.The main part of the device is a rotating milling cutter, due to which the equipment moves around the site.
If in the cultivator the shaft with the shares is replaced with an auger, and the structure is equipped with an intake device and a pipe for throwing snow away, the cultivator turns into a snowblower. A motor from any saw with a power of 3-5 horsepower will be more than enough to clear loose snow on the site. It is only important to make a convenient screw mechanism. For this, blades made of thick rubber are most often used. Parts made of galvanized steel are suitable as an intake device. Snow throwing can be done easily by installing a large diameter plastic pipe.
Drilling ice or frozen ground with hand tools is a long and physically demanding task. Making a motor-drill with your own hands will greatly simplify this task. In this case, in addition to the motor, it is necessary to have a gearbox that regulates the number of revolutions per minute, because the device does not need such a strong rotation as that of a chainsaw.
Useful advice! If you do not have enough knowledge regarding the operation of the gearbox, you can ask for the help of an engineer who will help you choose the right mechanism. The required type of device is selected depending on the characteristics of the motor.
To create a motorcycle or ice screw with your own hands, the first thing you need to do is to make a reliable case, which is a truncated pyramid, consisting of two rectangles of different sizes. You will need a grinder, a welding machine and metal pipes. It is inside this frame that the gearbox will be installed, respectively, the dimensions of the body will directly depend on the dimensions of the gearbox.
For reliability, experts recommend taking a part from a good motor-drill made of strong steel as a screw, because low-quality material will not withstand heavy loads. Another important issue is the reliable fastening of the drill, which can be carried out using an ordinary pipe, fixed on both sides with dowels or studs. This method of fastening will allow you to change drills or use other accessories for work.
Homemade chainsaw: outboard motor and other means of transportation
Chainsaw outboard motors were first used during World War II in Southeast Asia, because the saws themselves were several times cheaper than motors. At first, bamboo sticks were used to fasten the shaft, which were replaced with new ones as they wear out. In order to make a homemade product from the "Calm" chainsaw, you need to remove the tire from the device, and replace it with either a ready-made boat propeller or a homemade one. To mount, you will need to purchase a special adapter.
Then a homemade chainsaw boat motor is attached to the back of the boat so that the propeller is submerged in the water at a certain angle. In some cases, a reducer is used instead of an adapter. By and large, such a home-made design is considered an economical option that allows you to speed up movement on the water surface, which is especially important for fishermen or hunters. The motor provides a good ride for a small boat and is economical at the same time.
Useful advice! Not all saw models are designed for continuous and continuous operation. Therefore, it is important to monitor the degree of heating of the device and turn it off in time to allow it to cool down.
Design features of a snowmobile and snowmobile
A chainsaw snowmobile is considered one of the most difficult home-made devices, because its manufacture will require a large number of additional parts, including:
- frame;
- body;
- tracks and front skis;
- steering wheel;
- control consisting of a handle and a clutch.
Related article:
Chainsaw chain sharpening machine: a reliable assistant for the DIYer
Device, principle of operation and characteristics. Features of hand and electrified tools. Review of the best models.
There is another complication. For a snowmobile to move, it needs to be equipped with a suspension and transmission, so this will be difficult for a beginner to cope with.
Creating a snowmobile from a chainsaw with your own hands begins with a supporting frame, which is a steel profile measuring 20x20 or 20x30 cm.The swing arm is responsible for the shock absorption of the rear suspension, and the motorcycle-type steering fork is responsible for the front suspension.
It is interesting! A more complex design consists of two skis, the steering wheel can not only turn the axle, but also pull the steering link levers. Despite the fact that this method is technically more difficult, it provides more convenient control.
Additionally, a do-it-yourself snow scooter with a motor is complemented by a centrifugal clutch with a V-belt and chain. To increase the traction force, a gear is attached to the track shaft, the diameter of which exceeds the drive part of the chainsaw shaft. For normal operation of a home-made device, you need to take a motor with a power of at least ten horsepower.
A simpler option is a snowmobile, which has a similar method of use, but is a propeller driven aircraft moving in the snow. Due to the simplified design, the sleds do not differ in high carrying capacity, passability and stability. The main advantages are simple design and ease of manufacture. The rotating screw, installed behind the driver's back, must be closed with a protective cover made of fine mesh. The control is carried out by turning the skis, throttle and brake. The optimal engine power is considered to be 5-6 horsepower.
How to make a moped from a chainsaw or a bicycle with a motor
A homemade moped from a chainsaw is unlikely to be compared with an industrial version of the device, but it will do quite well as a kind of adult toy. By and large, the device is not a moped, but a bicycle powered by a chainsaw. This is due to the fact that it is the old frame from this vehicle that is most often used.
It is interesting! More advanced craftsmen do not take a ready-made frame from an old bicycle, but independently make a welded structure for this purpose from metal pipes or a square profile. But the main units, including bearings, prefer to use factory ones.
Before you put the engine from a chainsaw on a bicycle, you should take care of the presence of parts, such as:
- frame;
- engine with a gas tank;
- gearbox with gear ratio 18: 1;
- shock absorbers;
- brakes.
Any engine for a bicycle from a chainsaw must be supplemented with a gearbox so that it is possible to regulate the rotation of the wheels. Sometimes, instead of a gearbox, gear pairs are used, connected by a chain from a bicycle. If we take the mountain bike version as a basis, then a gearbox with a gear ratio of 1:15 or 1:20, supplemented by a variator, is more suitable. The main advantage of a mountain bike with a chainsaw motor is that, unlike a conventional device, it will be able to accelerate to 30 km / h.
Another easy-to-use vehicle is a chainsaw kart, reminiscent of a simplified car model, which is mainly used for circuit races. The device is devoid of a solid body, there are no shock absorbers in it. The minimum number of parts allows to lighten the structure and provide it with a high speed of movement.
The frame is most often cooked independently from a metal profile, and old carts are used as a wheel donor. A bicycle chain is used as a drive to the rear axle, and a steering linkage is also needed. To assemble the body, you will need to use a welding machine. Some people consider the do-it-yourself kart to be a children's car with a gasoline engine, but it must be borne in mind that the vehicle is capable of developing a decent speed.
What else can you do homemade from a chainsaw
The chainsaw motor can be used for independent movement of almost any vehicle. So, a child or adult scooter can be equipped with a drive, which can accelerate to a speed of 10-15 km / h. The main advantages of using a scooter are high maneuverability and no need for large storage space. Moreover, for manufacturing, you do not have to disassemble the chainsaw into parts. It will only be necessary to remove the tire and the saw chain, which is replaced by the bicycle and serves as a part that transmits torque to the rear wheel.
In addition to the manufacture of vehicles, using some parts of the saw, it is possible to create a small mobile power plant that reaches a power of 5 kW. To create a generator, a chainsaw will need a motor, a steel frame, an electrical distribution box with plugged-in sockets, and a gearbox, with which torque will be supplied to the generator shaft.
Some homemade chainsaw chains are popular with farriers, for example, some create solid forged knives. To do this, the chain is divided into pieces, from which the bases of the blades are then welded by heating them to 850 ° C. The molten chain is pressed until the voids between the links disappear.
To create homemade products from a chainsaw, you need to know the basics of simple mechanics, because you need to properly connect all the elements together. You should not purchase an expensive tool for the invention; budget models of chainsaws are also suitable for this. When buying, it is necessary to take into account that the saw must be easily disassembled, and the parts for it must be available for sale. For the manufacture of devices, it is better to take ready-made drawings, especially if there was no previous experience in creating homemade devices.


















