Comfortable conditions for relaxing in a summer cottage can be achieved in different ways. Along with gazebos and benches, not the last place is occupied by a swing for giving with your own hands: photos of interesting products can be easily found on the network, and using step-by-step instructions, you can easily cope with the manufacture of a swing. Even adults can use such a swing. The main thing is to accurately calculate the weight and build a reliable structure.
Content
- 1 Do-it-yourself swing for giving: photo and classification of products
- 2 How to make a swing in the country from metal yourself
- 3 How to make a swing in the country with your own hands from wood
- 4 Photos of children's swing for a summer residence with their own hands and the peculiarities of their manufacture
- 5 Beautiful designs and methods of their fastening
- 6 How to make a children's swing with your own hands safe and comfortable
Swing for giving with your own hands: photo and classification of products
Traditional materials for making a do-it-yourself outdoor swing are metal and wood. In order to improve reliability and external characteristics, you can combine these materials, and also partially decorate the metal structure with decorative forging.
Helpful advice! For the manufacture of a seat, any available materials can be used that may remain on the site after the construction of a house or repair work.
For construction, you can use:
- bars;
- plastic;
- durable rope;
- metal pipes;
- old chairs or chairs from which you must first remove the legs.
Car owners can use old car tires. They will go well with flower beds made of similar material.
Do-it-yourself swing classification
There are a large number of original and comfortable swings that can decorate the landscape of any summer cottage.
They can be conventionally divided into three broad categories:
- mobile - the products have a lightweight portable design, so that the swing can be moved around the site to any convenient place, for example, to the house, to the veranda, to the gazebo or under a canopy in the rain;
- family - products with a massive and weighty design. By their structure, they resemble benches without legs with a large and high back. Due to the large dimensions, the whole family can fit in the seat. To make the operation of such a swing safe, they are securely fixed on a U-shaped frame. Strong cables or thick chains are used as locks. If you organize a roof or an awning over the swing, they can be used even in the rain;
- children's - a special category of products, usually in the form of boats or hanging chairs... Special requirements are put forward for structures with regard to the frame, which must comply with all safety standards. Very young children can use the swing only in the presence of adults and using special belts. With their help, the baby is fixed on the seat and therefore cannot fall out.

Baby swing with a metal frame, painted in bright colors
Varieties and photos of a swing in the country with their own hands
Swings can be classified according to other criteria. There are the following types of products by type of design:
- hammocks - suspended on a metal bar. A tree with a thick and straight bottom branch can serve as a substitute for the crossbar. When using this design, a person has the impression that he is hovering above the ground. Such a swing is in great demand among those who are fond of reading books;
Note! Hammock products, subject to the manufacturing technology, are capable of withstanding a weight load of up to 200 kg.
- single - products with various types of designs that do not require the installation of additional crossbars. This swing is characterized by a quick installation system, and it can be installed anywhere. A variety of materials are used for manufacturing;
- suspended - structures are a seat suspended by several ropes or chains. The ropes are attached to the sides. Due to the use of various materials that make the product durable, comfortable and lightweight, suspended-type swings can have various shapes and sizes;
- sun loungers - the products can accommodate a family of two adults and one child. The swing has a special design, which involves fixation at a single attachment point, which allows them to be installed in a room. The material for the manufacture is a special alloy of metals. Despite the apparent airiness, these products are very durable.
How to make a swing in the country from metal yourself
Before getting down to business, you should prepare the necessary materials, as well as tools.
Make sure in advance about availability:
- a file or sandpaper (for working with a metal surface);
- welding machine;
- electrodes;
- containers to mix the solution;

Metal swing are distinguished by their elegance and seeming lightness of design
- ingredients for solution preparation (crushed stone, water, cement, sand);
- fasteners (nuts, bolts);
- metal pipes;
- wrenches and shovels;
- grinders and a set of discs for metal.
Making a swing in the country with your own hands: drawings and technology
The first thing to do is prepare the pipes. The material is cut as follows:
- side stand - 2 pcs., length - 2 m;
- base element - 2 pcs. on each side, the length is at the discretion;
- crossbar - 1 piece, length - 1.5-2 m.
Helpful advice! Burrs can form on metal pipes after cutting. Use a file or sandpaper to remove them.
The elements intended for the base must be secured by welding at an angle of 45 °. Next, a crossbar is welded to the posts at an angle of 90 °.
To install the structure, two trenches should be dug. The width of these recesses should correspond to the tripod obtained as a result of the assembly, and the depth should not be less than 0.8 m. The width of the crossbar should fit between the trenches.
The supporting parts of the swing will be installed in the recesses. Previously, a sand pillow should be formed at the bottom. The layer thickness is 0.1-0.2 m. After that, the embankment is carefully compacted. The base of the structure is installed on top, the recesses are poured with concrete mortar.
To prepare the mixture, mix sand, cement and crushed stone in the following proportions: 2: 1: 1 (respectively). Add liquid to the resulting mixture and mix the solution. As a result, you should get a homogeneous mass. Make sure it is not too runny.

Diagram of the garden swing device: 1 - screws for fastening the backrest and seat strips; 2 - strips; 3 - corners of the rocking seat frame; 4 - bar of the base of the swing farm; 5 - rivets; 6 - connecting strip of seat stiffness and seat suspension; 7 - side rods of the swing farm; 8 - connection of the ends of the support frame of the awning; 9 - cord for suspension of the rocking chair; 10 - carbine; 11 - ring; 12 - gusset-brace; 13 - upper bar of the swing farm; 14 - connecting bolts with washers and nuts; 15 - insert fixing bolt; 16 - insert with hole and internal thread for the connecting bolt; 17 - wide spacer washer; 18 - support frame for the awning; 19 - washer; 20 - bolt connecting the upper bar with the side ones; 21 - crossbar - 2 pcs. (steel strip with bolts)
It takes about a week for concrete to harden. Until this moment, it is not recommended to attach a seat to the crossbar, which can be supported by cables or metal beams. After making sure that the mortar has cured, attach the hooks by welding and place the seat on the cables. If using metal beams, weld the seat to them. When the structure is completely ready and installed, it can be painted over to give the swing a beautiful appearance and protect the metal from corrosion.
How to make a swing in the country with your own hands from wood
This technology deals with the creation of your own hands children's outdoor swing for giving made of wood, which can simultaneously accommodate several babies at once. The dimensions of the swing can be changed at your discretion.
Helpful advice! Use the following wood species as a material: birch, pine, spruce.
Preparatory stage: tools and materials
The list of materials required to create a timber structure includes:
- board - 15 pcs., length - 2.5 m, section - 2.5x10 cm;
- board - 1 piece, length - 2 m, section - 5x15 cm;
- carbine - 6 pcs.;
- self-tapping screws - 250 pcs., size - 3.5x52 mm;
- welded chain, the length of which is selected taking into account the height of the swing, the thickness of the links is 0.5 cm;
- galvanized screws - 2 pcs. size 1.2x10 cm + 2 pcs. size 1.2x8 cm.

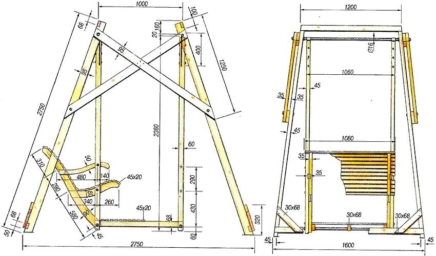
Children's swing with their own hands: 1 - side outer part of the seat frame - 2 pcs. (90x35x375); 2 - side inner part of the seat frame - 2 pcs. (70x35x375); 3 - cross member of the seat frame - 2 pcs. (90x35x375); 4 - vertical armrest detail - 2 pcs. (45x35x275); 5 - vertical backrest detail - 2 pcs. (90x35x650); 6 - horizontal armrest detail - 4 pcs. (45x35x530); 7 - upper armrest part - 2 pcs. (145x20x585); 8 - upper chain holder - 2 pcs. (45x35x300); 9 - lower chain holder - 2 pcs. (70x35x150); 10 - front and rear parts of the seat frame - 2 pcs. (90x35x1300); 11 - backrest cross member - 1 pc. (90x35x1400); 12 - seat board - 1 pc. (90x20x1170); 13 - seat board - 3 pcs. (90x20x1230); 14 - back board - 12 pcs. (90x20x850)
The market assortment offers self-tapping screws in various colors. The shade of the fasteners can be effectively beaten in the design of the swing, so you should pay attention to the color of the screws. By picking up fasteners to match the wood, you can hide the joints of the structural parts. Self-tapping screws in a contrasting color will achieve an interesting effect.

Suspended wooden swingpainted white
Don't forget to prepare your instrument:
- roulette;
- pencil;
- a square to measure the size of the corners;
- circular saw for cutting wood;
- drill and a set of drills for her;
- a plane and a hacksaw;
- a hammer.
Technology for creating a children's swing: how to make a structure with your own hands
If you start making a swing with your own hands, you can make your job easier in one simple way - make a plan and try to stick to it. It is recommended to prepare a project in advance, draw up drawings and outline on them all dimensional parameters, places of fasteners, analyze the future product for reliability.
Related article:
Lawn grass that destroys weeds and its agricultural technology. Lawn technology. Types of mixtures of lawn grasses and the rules for their choice for your personal plot. How to sow lawn grass, video instruction.
If you have no experience in drawing up drawings, use ready-made projects. Do-it-yourself photos of a children's swing, which you can find on the Internet, will help you decide on the choice of a suitable design. Remember, there is a big difference between a swing designed for adults and a children's swing.
On previously prepared parts (each 1.5 m long), a cut should be made strictly at a right angle. The boards having a thickness of 2 cm are intended for the seat device. For the manufacture of the back, it is better to start up boards with a thickness of 1.2-1.3 cm.For the seat, 32 slats are required, 15 of which should be 0.45 m long, the remaining 17 - 0.5 m.
Helpful advice! To prevent cracking of wood during the installation of self-tapping screws, drill small holes in the structural elements to be fastened.
Working with the back and seat of the swing
If you want a more comfortable and comfortable backrest structure, it should be shaped. To achieve the desired result, use a board with a large thickness (section - 5x15 cm). You need to make 6 parts. Use a marker or pencil to mark the blanks accordingly.
After that, you need to determine the angle at which the back will be fixed. The planks are fixed with the same pitch. Make sure the planks are level. To do this, first perform the fixation on the sides, and then in the middle.
The installation of armrests will increase the comfort of using the swing. It is recommended to use a timber for these purposes. In this case, the width does not really matter and is selected taking into account your own wishes. On the one hand, the armrests are screwed to the frame part of the backrest, on the other, they are attached to the seat.
In the next step, you can attach the welded chain to the frame. The best place is the lower area of the armrest, that is, where it connects to the seat. Take a special connector that has a ring on one side and a thread on the other. It attaches to the crossbar and seat frame. Subsequently, a chain will pass through these rings.

Drawing of a chair with a back and sidewalls for a swing (cm): 1 - horizontal sidewall element - 4 pcs. (5x5x70); 2 - connecting rod - 3 pcs. (d = 2.5 cm, 80 cm long); 3 - reinforcing square - 4 pcs. (2.5x10x10); 4, 11 - vertical sidewall elements - 4 pcs. (5x5x37.5); 5 - backrest frame element - 2 pcs. (5x5x37.5); 6 - element of the backrest and seat lattice - 13 pcs.(d = 2.5 cm, 58 cm long); 7 - seat frame element - 2 pcs. (5x5x67.5); 8 - suspension cord guide - 2 pcs. (d = 2.5 cm, 10 cm long); 9 - pin - 4 pcs. (d = 1 cm, 7 cm long); 10 - seat clamp (d = 2.5 cm, length 68 cm)
It is better to use an A-shaped post to secure the swing. You need to take strong logs as supporting elements. Anyone who knows how to handle a welding machine can take up the manufacture of a metal frame.
Making a support for a children's swing with your own hands
Many craftsmen engaged in the manufacture of swings for summer cottages prefer A-shaped racks, since they provide a high level of reliability, are durable and can withstand heavy loads. At this point, you will need the same set of tools as you would when working with the seat. Of course, when it comes to a rack made of wood. Otherwise, you need a welding machine.
The first thing you need to do is make the racks. They must be the same and the same size. Subsequently, you can install them at the distance that you need. This figure depends on the width of the seating position. A crossbar should be used to connect the supports.
Important! Perform accurate calculations of the angle at which the vertically arranged struts will join. The top of the posts needs to be securely fastened. Otherwise, they may be led.

Reliable fastening of the upper part of the posts will provide a high level of strength of the entire structure
To mount the crossbar, mark out 1/3 of the support posts. It is at this level that the installation will take place. Self-tapping screws and corners made of metal can be used as fixing elements. Make sure the crossbar is at the same height. Usually the swing has one bar, but if you want to increase the strength of the structure, you can install two.
Dig holes in the ground to mount the base. The maximum depth is 0.8 m. The structure is installed on a crushed stone cushion with a thickness of about 0.2 m. After the racks have been placed inside, they are poured with concrete.
Considering that the wood is extremely susceptible to decay, the lower part of the uprights should be treated with an antiseptic and insulated before concreting the base. For these purposes, it is worth stocking up on waterproofing material. Roofing material will do.
Since in the future the structure will be operated by children, you need to secure it. Sharp corners should be rounded off, irregularities and burrs are removed by grinding.
Photos of children's swing for a summer residence with their own hands and the peculiarities of their manufacture
Even if you are absolutely not on friendly terms with the plane and the welding machine, this does not mean at all that the swing at the summer cottage will remain a luxury for you. There are many simple designs that you can handle. Moreover, most of them do not require the purchase of any expensive materials. You can always arm yourself with the means at hand.
Swing from scrap materials: pallets
Pallets are a very popular type of material from which furniture for home and garden is made. Due to their versatility, they can also be used to organize a swing in a suburban area. To do this, you should have at hand one pallet, a rope and a tree where the structure will be suspended.
Helpful advice! As a substitute for wood, strong support posts can be installed.

Pallets are an excellent material for creating an original garden furniture
Even a product based on a single pallet can have several modifications.The one-piece element can be fixed in suspension at four corners with ropes. This is enough for the swing to perform its function. To create comfort, just put a small mattress on top of the pallet and cover it with a blanket or sheet. Several pillows on top will be a kind of solution to the problem of the lack of a back.
Structures of this type can be used not only for reading books in the open air, but also for an elementary rest from the midday heat in the shade. They can even be used for sleeping.
To create a children's swing with a full back with your own hands, you will need two pallets. As in the case of wooden structures made of boards and beams, here you should also sandpaper the surface to get rid of burrs. The product must be thoroughly cleaned and painted with a dye designed for wood and outdoor conditions. It is enough to use a moisture-resistant varnish that will not spoil the beauty of the tree.
Other types of children's swing with their own hands
The simplest version of a swing is a board-shaped seat suspended with ropes. To prevent quick chafing of the rope, two more pieces can be nailed on the sides of the board. After that, 4 holes are made through which the ropes are threaded. Strong and tight knots are tied at the ends to fix it.The structure itself can be mounted both on a tree and on a U-shaped support base.
Swings suspended from ropes can be made in another way. Instead of holes in the board, grooves are formed: a pair in the end part and a pair along the edges in the corner zone. The seat (board) can be shaped into a semicircle or left straight. Due to the pulling force, the rope will not jump out of the grooves, despite the fact that they are open.
Helpful advice! If you have an unusable skateboard or snowboard, you can use it instead of a seat, giving the swing a unique look.
To create a swing at a summer cottage, you can use a large number of different materials, up to car tires. It is enough to hang the tire from a tree branch with a rope. If you care about nature, you should not use a chain - it injures the bark too much.
Some craftsmen give the tire swing intricate carved shapes. To obtain an original design, it is enough to acquire a sharp cutting tool and ready-made schemes. You can cut the tires with a construction knife. Pre-mark the surface for cuts using chalk or a dark marker. The finished product can be painted in a bright color or covered with drawings.
A swing made of two small logs tied together with a rope is very popular among summer residents. The main thing is that the wood is cleaned, leveled and tightly bound.
Beautiful designs and methods of their fastening
There are several types of fastening systems that can be used for a swing. These options are the most common:
- carabiners - in this case, the bar is clasped by an element that has a circular cross-section (used for rounded bars) or rectangular (square shape of a carabiner for beams);
- anchors - in fact, they are the same carabiners with a through fastening type.
A swing with four attachment points (2 on the seat and 2 on the back) can be suspended in two ways. In the first case, you bring the chains or ropes into a common ring, which is a connecting carabiner. After that, one of the ropes or chains is attached to the crossbar with the main carabiner.As a result, you have two anchor points on the bar.
Another option involves the installation of a fastening system, which is based on the use of 4 carabiners, fixing each of the ropes or chains leading from the structure.
Swing in the form benches can be mounted on hooks that are mounted in the side walls of the support posts.
DIY materials for creating a beautiful swing for children in the country
If you do not want to be limited to the use of materials at hand, but want to create an original and beautiful design, you can use interesting types of wood and metals.
Helpful advice! Enhance your product by adding a comfortable back or front bar to your design. Thanks to this limiter, you can increase the level of operational safety of the swing.
To create a beautiful swing you will need:
- carabiners made of durable metal;
- deciduous tree boards;
- hanging chain;
- self-tapping screws with various dimensional parameters;
- screws complete with rings, which are also used for hanging children's swing in the room.
To install the swing, you need to select a shady place, for example, a site under a tree or under the roof of a canopy, terrace. You can even equip the structure itself with a roof or a canopy, otherwise you will have to cover the product with a tarp or film in bad weather.
The initial stage of product manufacturing
Any stable construction of a swing begins with digging in support pillars to a depth of 0.8 m. The remaining space in the recess is filled with concrete. Then the crossbar is connected to the posts.

The device of a wooden swing: 1 - upper bunch (length 115 cm, width and thickness of the board 10x5 cm); 2 - visor board covering the bolt heads and protecting the screed from bad weather (length 145 cm, width and thickness 22.5x5 cm); 3 - two posts (height 275 cm, width and thickness 22.5x5 cm), the distance between the posts is 105 cm, the ends of the posts are concreted into the ground to a depth of 60 cm; 4 - galvanized chain, attached from above and below to the eyebolts on the turnbuckles; 5 - seat (length 60 cm, width and thickness 15x5 cm)
Further actions depend on what type of material is used to manufacture the product. If the swing is created on the basis of metal pipes, the connection of all elements is carried out only using a welding machine. Wood supports will require pretreatment with an antiseptic and nuts and bolts as fasteners.
The seat is created from two frames. One of them will be the backrest, the second will be the seat. Set and secure pieces of plywood or wood to them. After that, you will need to fix the frames at an angle of strictly 120 °.

Construction process children's complex with a swing and slide made of wood
In order to attach a rope or chain to the seat, brackets or special hooks are installed. This will allow the structure to be suspended from the bar.
Note! The swing is suspended in such a way that the feet of the person sitting on it can touch the ground.
The design of the structure can be improved by decorating it or installing an unusual item as a seat.
Do-it-yourself installation of a fastening mechanism on a children's swing for a summer residence
Suspension of the swing seat to the crossbar is carried out by means of brackets or special hooks. If the structure is held by cables, you will also need to purchase clamps that will function as latches. Other materials such as chains or ropes are allowed.
It is recommended to use a chain with large links. This will increase the service life of the product due to the fact that the metal from which they are made is not afraid of the negative effects of weather conditions and temperature changes. Moreover, the chain is often used to decorate the landscape. It will complement the design of the courtyard on the suburban area.
The suspension mounting area requires careful reinforcement. For decorative purposes, you can put pillows, a mattress or stretch over an awning on the wooden seat. These elements can not only decorate the product, but also increase the comfort of use, make it pleasant to relax.
Since the design is made for children, it is better to equip the swing seat with a comfortable back. As for the suspension, it is less important in this case.

Diagram of the device of a suspended swing from a car tire on a metal frame: 1 - racks; 2 - tire; 3 - welded calibrated chain; 4 - M12 bolt with an eyelet; 5 - section of channel No. 14, the length of which is 200 mm; 6 - steel plate 140x200 mm; 7 - bolt М12
How to make a children's swing with your own hands safe and comfortable
The area where children rest and have fun must be safe. Following simple rules, this can be easily achieved:
- use the safest and most reliable nodes;
- nylon rope is less harmful to the tree than others;
- the best option for a tree is oak;
- having figured out how to make a swing in the country, before fixing them on a tree, carefully examine the branch on which they will be hung. Make sure there are no cracks, excessive dryness, signs of illness;
- if a chain is used to hang the swing, it is recommended to place it inside the plastic tubes. Otherwise, the child's fingers can get caught in the links;
- a branch with a swing should be checked for reliability, since in the course of using the structure, the wood gradually frays and collapses. This should be done every week;
- test the product for durability before allowing children to use it. For this, the largest family member is suitable. If the swing can withstand its weight, then it can be put into operation;
- use only reliable carabiner options.
We should not forget about the aesthetic side of the issue. Make the sides of the swing curly to keep the kids interested. The sides can be made in the form of dinosaurs or cars, ships.











































