A must-have element of any infield if you have children - playground... Any number of structures of various types can be installed on it: a sandbox, swimming pool, swing - the choice depends on your desire and financial capabilities. Most playground items can be made by yourself. For example, a do-it-yourself children's slide is built quite simply, serving as a source of children's joy for many years.
Content
Requirements for a children's slide
The children's slide can be installed both indoors and outdoors. It should be understood that a slide for a child (it is built for the house or for the street in this case does not matter) must meet certain requirements:
- for construction, only materials that are environmentally friendly and safe for the health of the child must be used. It doesn't matter if you are building a slide made of wood, metal or plastic, the material should not contain harmful elements. The same applies to paints and varnishes with which you will open the structure. Another important point, both for a children's plastic slide for the house and for a wooden structure, is resistance to fire;
- be sure to use structural elements such as railings and railings. They will not only help the child to maintain balance while climbing the hill, but also protect him from falling during games. Railings on a slide for a child in the country should be installed regardless of the age of your child;
- it is best to use wood for building a structure. Children's wooden slides for the home are more pleasant to use due to the natural origin of the material. In outdoor conditions, slides made of wood do not heat up as quickly as metal ones, so they can be installed in any place convenient for you, and not only on the shaded part of the site. On hot metal, a child can easily burn itself, but a tree does not heat up to a dangerous temperature;
- a plastic outdoor slide for children is lighter than a wooden or metal one. It can be easily moved from place to place, transported if necessary, but the material itself is less durable - it can easily crack;
- the slide should be located away from trees, lights, outbuildings and other structures. This is done so that the baby does not get hurt when going down the hill. The area around the slide can be sown with lawn grass or a special rubber coating... Remember that the main thing is the health of the child, so any outdoor children's slide for a summer residence should be, first of all, safe;
- the base should be reinforced with a metal support or concreted. Do not rely on the fact that the child will not move the structure anyway - even the most durable slide can tip over as a result of children's games;
- an important point is the height of the children's slide being built for giving with your own hands. It must correspond to the age of the child, for example, the height of the slide intended for children of primary school age should not exceed 3.5 m.
Helpful advice! There must be no slots and openings in the design of the slide, otherwise the child may get stuck or seriously injured during the game.
Do-it-yourself slide construction: the necessary materials and tools
How to make a slide in the country with your own hands without much difficulty? If we are talking about a wooden structure, you will need several wooden beams, planed boards, slats, lining and Fiberboard... You can connect the elements with each other using nails, anchor bolts and screws.
By the way, it is not necessary to use a wooden ramp - cracks or chips may come off on it, which can injure the child. You can buy plastic slides and mount them on a wooden structure.
In the case of metal construction, things are a little more complicated. Here you will already need a welding machine and a grinder for metal. All seams and joints in wooden and metal structures should be carefully sanded so that the child does not accidentally injure himself while playing. Metal slopes for a children's slide should be painted with a special paint that will absorb the sun's rays and prevent the metal from heating up to high temperatures.
How to make a children's slide with your own hands: installation sequence
If you decide to create a slide for a child on your own, you should follow a certain sequence of actions:
- first of all, you need to prepare a construction plan. You can take a ready-made layout from the Internet or draw your own. Ready-made drawings of a children's slide made of wood with your own hands are good because they indicate the exact proportions of the elements and the sizes of individual parts;
- referring to the diagram, it is necessary to saw boards, slats and beams. In addition, they must be sanded so that splinters cannot get under the child's skin. With the help of a plane, the beveled edges of the corners of the parts are removed, which will further increase the safety of the structure;
- markup is carried out on the allocated area. It is worth allocating a plot with a margin if you are going to build a children's sports complex for a summer residence along with a slide. The optimal size for a structure without additional extensions is 2 by 2 m;
- depressions of about 60 cm are dug under the supports. Wooden beams are inserted into them, the ends of which should be covered with a special waterproofing mastic. This is done in order to extend the life of the supports.In the racks, grooves are cut into which the connecting wooden boards are inserted. The elements of the resulting frame are connected to each other using bolts or self-tapping screws;
- then the floor is mounted. When building a slide with your own hands for children, remember: it is important that the floor is as strong as possible, therefore thick boards are selected for it, which are connected with self-tapping screws and screwed to the frame using metal corners. If you do not want water to accumulate on the floor of the slide, small gaps should be left between the boards, but not enough for a child to stick a finger in them;
- a ramp for children's slides is made. Its width should not exceed 80 cm. The surface of the slope is covered with linoleum, galvanized sheet or plastic. Linoleum is the cheapest option, but easily deforms and comes off. The metal coating heats up significantly in the sun and can also bend. The most reliable option is plastic slides for children's slides. Plastic does not overheat, does not rust or bend, but it is more expensive than linoleum or metal coating;

Diagram of the device for the slide for children's sports complex
- the staircase is mounted. The optimal size of the boards for making it is 20 mm. After mounting the main part, the side part is installed. For this, the board sawn at an angle of 45 ° is attached to the uprights with screws. Then the bars are screwed to the board, on which the steps are mounted. Photos of children's slides with their own hands made of wood on the Internet clearly show how exactly you need to fasten the elements of the stairs. After the installation of the steps, balusters are installed on which the railings are attached;
Helpful advice! The railing must be done in any case, regardless of the height of the slide or the angle of inclination of the stairs. They serve not only for safety, but also to make it easier for the child to maintain balance when lifting.
- grooves are cut in the side of the racks into which the side walls of plywood are installed or Fiberboard... The walls can also be made of small boards or have some original look;
- all protruding corners, heads of nails and screws are removed, all surfaces are carefully sanded and covered with paint or a special protective varnish.

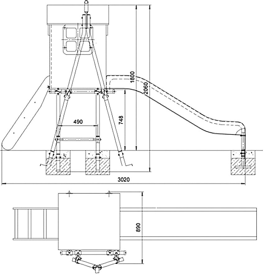
Drawing of a children's slide for a summer residence. Overall dimensions: length - 3020 mm; width - 890 mm; height - 1800 mm. Maximum user weight - 100 kg, minimum child age - 3 years
An interesting design modification can be a slide - a sandbox for children. In this case, the sandbox is organized either at the base of the slide, or you can build a tank with sand at the end of the descent.
Features of using different materials for building a slide
If you are in doubt of what material to build a house with a slide for children or another similar structure on your personal plot, you should familiarize yourself in detail with the features of buildings from the two most popular materials - wood and metal.
Pros and cons of wood slides
Wooden structures for playgrounds have proven themselves well several centuries ago. All children's slides with their own hands made of wood are built according to the classic layout, which includes a ladder and a ramp, a base, an upper platform and a protective part. In addition, additional elements are often added to a typical project, for example, an internal labyrinth, a sandbox, additional slopes and much more. Since such a structure can be made quite simply, it all depends solely on your imagination.
One of the significant advantages of creating a wooden slide for children in the country with your own hands is the low cost of manufacturing. The material itself is relatively inexpensive, and specialized tools are not needed to process it. In addition, the construction of a structure from boards and timber does not require special building skills and abilities from you - sometimes it is enough just to strictly adhere to the scheme found on the Internet.
Related article:
Children's outdoor swing for summer cottages and their design features. Types of swing. Advantages and disadvantages of structures made of various materials. Rules for creating a children's swing in a suburban area.
Another plus of this design is its environmental safety. The tree does not cause allergies, does not emit harmful substances when heated. The only controversial point here is the paintwork of the building, so be sure to read the instructions when buying varnish or paint to cover the slide.
Helpful advice! The wood for the slide must be of high quality, dry and well sanded. Choose the most durable wood species, and to increase resistance to humidity or temperature extremes, the boards must be coated with a special compound.
An element that should be given special attention when installing a wooden structure is the descent. It is best not to risk using your own planed boards, but to purchase material for a factory-made ramp. It can be linoleum, stainless steel sheet or plastic. The latter option is the most expensive, but also the most reliable and durable.

Children's playhouse made of wood with a plastic slide
Advantages and disadvantages of metal construction
Metal slides for children used to be in every yard and, with proper care, could last for more than a dozen years. Photos of children's slides made of metal with their own hands show that in appearance they differ little from their wooden counterpart.
A significant advantage of a metal structure is its strength. The iron structure does not require special processing and maintenance, it can withstand temperature extremes, high humidity, and large mechanical loads. The only thing that needs to be done periodically with the metal slide is to renew the paint and make sure that the paintwork does not peel off as a result of corrosion.
How to make a slide for children with your own hands from metal? To do this, you need ready-made elements, a grinder and a welding machine. Particular attention should be paid to the seams, as they are potentially dangerous for the child. Welding quality is also of fundamental importance: the higher it is, the stronger the structure will be.
The disadvantage of an iron slide is that it warms up quickly in the sun. If you install such a structure where the sun's rays constantly fall on it, your child can easily burn himself. Therefore, if you nevertheless decide to build a building from metal elements, you should choose a place for it in the shade or make a special canopy.

A slide made of metal with a plastic slope, installed at children's pool
When building a slide with their own hands for children, it is not necessary to use only wooden or metal elements. These materials can be combined in different proportions, thus obtaining an original, reliable and durable design.
Of course, you can always ask yourself about where to buy a children's slide for the country. This can be done in any specialized store or via the Internet. But remember that only a self-made design will satisfy all your requirements and allow you to realize your design fantasies.
DIY children's slide: useful tips
There are a number of points that should be considered in order for the design to be reliable and safe:
- for additional stability of the balusters, the staircase of the wooden structure should be additionally reinforced with slats;
- do-it-yourself drawings, videos, photos of children's slides in the country house show that the grooves and the slats inserted into them, when tightened with bolts, form a light, but strong and stable structure;

When building a children's slide in the country, you should carefully calculate the height of the structure
- an excellent option for painting buildings is acrylic paint. It is safe for the child's health, protects the tree well from all kinds of negative influences and looks attractive. Also, acrylic is famous for its durability and does not lose color saturation even with prolonged exposure to direct sunlight;
- a convenient type of covering for use under the hill is artificial grass or rubber. Such a coating does not require special care, does not change its properties depending on the season or weather, creates a safe surface under the hill that will protect the child from injury in the event of a fall from the hill.
A plastic slide for children purchased in a store or in the construction market is not always the best option. Yes, you save time and effort by building, but a wooden or metal structure can not only cost less money, but also allow you to create a full-fledged sports complex for a child, consisting of a large number of elements. By the way, even a plastic slide for children for a summer residence can be supplemented with homemade elements and turned into a complex and exciting structure for games.
A high-quality and reliable slide is not only a good way to keep your child busy while staying in a country house, but also an opportunity to develop him physically. As the child grows up, the slide can be completed, improved and more and more stimulated the child to a healthy lifestyle.























