For many, the presence of a bath at their summer cottage will seem like a luxury. But if budgetary funds allow you to acquire your own sauna, why not consider more interesting options than the standard combination of a steam room and a washing room. From this article, you can find out what are the advantages of a bath with a pool: the project and the main types of structures, features of the design and construction of buildings, examples of successful design solutions.
Content
- 1 Bath with a swimming pool: the project and its main features
- 2 How to make a bath with a pool with your own hands: step by step instructions
- 2.1 The first stage of the construction of a bath with a pool: photo and description of earthworks
- 2.2 Installation of formwork for a bath with a large pool and floor filling
- 2.3 How to install a pool in a bathhouse: pouring walls and waterproofing work
- 2.4 The final stage of the construction of a bath with a pool: finishing work
- 3 Attractive projects of baths: photo of steam rooms with a pool
Bath with a swimming pool: the project and its main features
A sharp change in body temperature as a result of dipping a person into cold water after visiting a steam room has a positive effect on the body. This kind of rest not only improves your mood, but also strengthens your immune system. Therefore, in the photo of the beautiful baths, along with a relaxation room, a bathroom and a washing room, you can see a pool or other reservoir that fits optimally into the space and provides ideal conditions for complete relaxation.
Compared to designing a conventional sauna, planning a sauna with a pool may seem like a more complicated undertaking. Therefore, it is advisable to entrust this work to professionals.
Not every room has the conditions necessary to create such a structure. And this applies not only to projects of baths with a pool under one roof, where a recessed structure is installed. Difficulties arise even when working with terrestrial types of products. The fact is that the presence of a pool in a room causes a significant increase in the level of humidity. In order for the operation of the bath to be comfortable and completely safe, you will have to take care of full waterproofing. In need of moisture protection:
- walls;
- floor;
- ceiling;
- electrical wiring.

Designing a bath with a pool is a rather difficult task, so it is better to entrust it to specialists
Special attention should be paid to projects of baths with a pool made of timber, since wood without proper preparation quickly deteriorates under the influence of moisture.
Note! The pool is included in the planning at the stage of project development. After the bath is built, it will no longer be possible to add it to the finished building, or this procedure will be too time-consuming and expensive.
Features of the construction of a bath complex with a swimming pool
In the process of developing a project, it is imperative to think over such nuances as the type of pool, a type of foundation suitable for its construction, as well as a layout that will contribute to creating optimal operating conditions.

Bath complex construction it is necessary to start with a detailed plan
If a small pool in the form of a plastic bowl is used to equip a bathhouse, construction problems usually do not arise. To install the structure, you will need to dig a pit of the appropriate size and place an airtight container in it. Most often, such products are equipped with removable communication systems, but there are also stationary varieties. Projects with cascading pools require the participation of highly qualified specialists, so you cannot do it yourself in this case.
Before you make a stationary pool in the bath, you will need to organize and connect your own water supply and sewer system for it. It will no longer be possible to limit ourselves to arranging an ordinary drain, as in a washing room. The task is further complicated by the fact that for the construction of a local sewerage system, it will be necessary to obtain permission from the local administration.
How to make a pool yourself: project development
When designing a pool in a bath complex, it is necessary to take into account some important points:
- Pool location area. A container with water can be installed inside the bath, on the street, or in a room specially designated for this purpose.
- Terms of Use. If the pool will be used by older people and children, you need to carefully consider its depth, as well as the presence of such elements as a convenient descent and handrails.
- Roominess. In bath complexes, small containers are most often installed. The optimal dimensions of the pool are 2x3 m, 2x2 m and 3x3 m.
The decision on the choice of the form, as well as the ratio of the size of the bath room and the pool, is made by the owner, based on personal preferences. A container with water can have raised walls, an angular structure, or it can be equipped in a bath with panoramic windows, from which you can observe the beauty of the surrounding landscape.

When designing a pool, you need to take into account the location area, operating conditions and its dimensions.
By the type of placement, the pools are outdoor and indoor. The choice of design largely depends on the size of the bath. Even a small pool can be built into a compact structure, but for this it will still be necessary to provide a separate room in the building design. The decision depends on whether the owner of the site is ready to cut the internal area of the bath. Otherwise, it would be more expedient to install the pool outside the building.
Helpful advice! If indoor installation of the pool is supposed, for its installation it is advisable to choose the room as close as possible from the steam room. This is done so that the path from a heated room to cold water takes as little time as possible.
Types of pools: photos and design features
The existing types of pools can be divided into two categories. Some structures are mobile (the so-called portable hot tubs), others are stationary. Portable type products are characterized by a simple installation system.For the production of such bowls, plastic with an increased margin of safety is used. Thanks to the use of modern technologies, the structures are completely sealed.
The range of such products is quite diverse. In the catalogs of manufacturers on the photo of bath pools, you can see plastic bowls of various depths, shapes and sizes. If desired, the owner can rebuild such a structure into an artificial heated reservoir. For these purposes, special equipment is provided. Water heating is carried out by electric heating elements. Such equipment is usually accompanied by instructions, where the manufacturer gives recommendations for installation.
A veranda is suitable for arranging an outdoor pool. It is allowed to use a separate site for these purposes, but on condition that it is located in the immediate vicinity of the bath. As for the structures of the stationary type, the process of their installation is more complicated in execution. Stationary systems include:
- skimmer;
- return nozzles;
- filter system and other elements.
Without experience and relevant knowledge, it will be very difficult to install a stationary pool in a bathhouse. Before proceeding with the arrangement of such a structure, it is imperative that you draw up a detailed project, which will reflect all the characteristics. Moreover, both the pool itself and the bathhouse in general.
Important! It is advisable to equip a heated mini-pool with your own hands indoors. If such a structure is located outdoors, the cost of heating water will increase significantly.
How much will it cost to build a turnkey sauna project with a swimming pool: the price of finished buildings
Many construction companies offer ready-made solutions to the owners of summer cottages. When ordering from such a company the creation of a turnkey bath with a swimming pool, you can count on high-quality and fast execution, as well as a guarantee that the structure will last long enough and will meet all safety standards and requirements.
Average cost of finished projects
| Project name | Building dimensions, m | Area, m2 | price, rub. |
| Sauna project with pool and relaxation room | 9.44x5.92 | 45,6 | 571500 |
| Sauna with pool and porch | 5.5x12.2 | 55,24 | 611400 |
| Bath with relaxation room and porch | 6.4x11.8 | 68 | 737600 |
| Bath with two entrances | 9.4x11.8 | 74 | 796000 |
| Sauna project with pool and terrace | 8.7x14.7 | 117,23 | 911400 |
| Corner bath | 12.2x13.5 | 121,1 | 925000 |
How to make a bath with a pool with your own hands: step by step instructions
First you need to decide on the location of the pool. In this case, it is necessary to build on the intended size of the bath. If the building has enough indoor space, the pool can be arranged inside the building in a separate room. When building a small bath, it will be more expedient to take an artificial reservoir outside of it.
Regardless of which type of installation is chosen, the dimensions and parameters of the pool are determined at the stage of project development. It is much easier to cope with the excavation work, which is carried out in the process of arranging the font, if it is carried out at the stage of laying the foundation for the building.
Experts recommend equipping the pool simultaneously with the bath building. This is done for the reason that the laying of the sewer and water supply systems is carried out taking into account the peculiarities of the placement of the font, and its operation is not complete without constant circulation of water. In addition, the liquid in the pool needs regular cleaning, so it is very important to properly design the liquid supply and drainage system.
The first stage of the construction of a bath with a pool: photo and description of earthworks
After completing the appropriate calculations and adjusting the design documentation, you can proceed to earthworks.First you need to mark the construction site.
For this, a drawing from the project of a sauna with a pool is transferred to the area. For these purposes, you can use wooden pegs, which are driven into the corners of the future building and along its perimeter. After that, a strong rope is pulled between them.
Important! Before you start digging a pit, you need to decide on the type of ladder in the pool. It can be stationary (in this case, the structure looks like steps formed in one of the walls of the font) or it can be placed separately. Most often, owners choose the latter option in order to save space.
Having completed the marking of the construction site and having thought through all the accompanying points, you can proceed to the most laborious work - digging a pit for installing the pool. This stage can be performed independently, or you can use special equipment for these purposes.
Related article:
Bath: layout and stunning solutions for compact buildings
Development of a project with optimal parameters, taking into account the size of the suburban area, the needs of the owner and the number of people.
Having reached the required depth, a sand and gravel cushion must be formed at the bottom of the pit. Gravel (crushed stone) and sand are poured in layers. The optimum thickness of each such layer is 15 cm. In the process of performing this work, the backfill is carefully compacted. For best results, sprinkle sand and gravel with water.
Installation of formwork for a bath with a large pool and floor filling
When the pit is ready, its walls and bottom are laid out with roofing material. To make the coating solid, the strips of rolled material are overlapped with an overlap of 15-20 cm, and the seams between them are processed with molten bitumen or other material with suitable properties. This is what the primary waterproofing works look like.
Next, the formwork structure is mounted. For this, it is advisable to use boards. Screws are suitable as fixing elements. The installation of the formwork under the hot tub is carried out in almost the same way as the installation of the structure for pouring the foundation for a wood-fired bath with a pool. There is only one exception: only the inner part needs to be assembled, the walls of the pit will perform the function of the outer boundaries.
Then the first layer of cement mortar must be poured onto the roofing material. The recommended thickness is 10-15 cm. It is advisable to use M-400 cement. You can do the preparation of the solution yourself. For this, one part of cement, 4-5 parts of crushed stone and 3 parts of sand are mixed in a special container. All this is filled with water, the amount of which should be about 50% of the total mass of the mixture.

For the floor, it is better to use cement grade M-400, the recommended pouring thickness is 10-15 cm
When the first layer of concrete hardens, a reinforcing mesh is laid on top of it, which is formed from steel rods with a diameter of 1-1.2 cm.The ideal cell size is 15x15 cm. During the assembly of the reinforcing layer, the areas where the rods intersect are connected with special plastic clamps. Knitting wire can also be used for these purposes.
Important! The mesh should be 5 cm above the base. To get the required clearance, it is advisable to use plastic clips.
The second part of the concrete solution is poured onto the reinforcing layer. The thickness of this layer should be 10-15 cm.
How to install a pool in a bathhouse: pouring walls and waterproofing work
The walls of the font also need reinforcement. The procedure for performing this procedure does not differ from the scheme used to form the bottom of the pool. To eliminate the likelihood of seams, the walls are poured in one go.Otherwise, the strength of the structure will be in doubt. It is not difficult to calculate the amount of concrete mixture required to create the walls of the pool in the bath with your own hands. To do this, you need to multiply with each other such parameters of the bowl as the height, thickness and length of the walls along the perimeter. This will allow you to determine the required cubic capacity.
When the concrete after pouring has completely hardened and dried, the surface of the floor and walls must be carefully waterproofed. For this, a layer of geotextile is laid out, and then a covering, consisting of a PVC film. The result is a reliable and effective waterproofing.
After the waterproofing works are completed, the tank is covered with a layer of plaster. It is advisable to use a silicone-based material for these purposes. The application process depends on the selected manufacturer. Detailed instructions are included with each package of plaster. For the result to be of high quality and durable, it is imperative to follow these recommendations.
Note! Preparing the base by applying plaster will greatly facilitate the installation of the finishing. Therefore, this stage of work should not be excluded from the general construction scheme.
The final stage of the construction of a bath with a pool: finishing work
After pouring, the finished pool bowl needs finishing. A variety of materials can be used for these purposes. In the photo of the baths inside and outside, you can see pools covered with PVC foil, decorated with porcelain tiles or glass mosaics.
The choice of material depends on the budget and personal preferences of the owner. The cost of a tile made from porcelain is significantly lower than the price of a mosaic. Cladding walls and floors in the pool with this material is much easier and faster. On the other hand, mosaics allow for a unique and unrepeatable design. On its basis, you can create unusual patterns and ornaments.
As for the film made of polyvinyl chloride, it is considered the easiest in terms of installation work. However, the range of this finish is significantly limited, as is its color range.
Attractive projects of baths: photo of steam rooms with a pool
The structure of the pool, as well as its finishing, can have a wide variety of designs. For construction, it is advisable to use a strip or columnar foundation, although concrete is also suitable. The first option is used in cases where the project or the terrain does not have suitable conditions for the installation of support pillars.

Sauna project with a swimming pool: terrace - 20.3 m², relaxation room - 14.3 m², steam room - 5.2 m², pool - 21 m²
Sometimes, for reasons of practicality, other types of foundations can be used. For example, if the construction of a small bath is carried out on a slope, the best option would be a structure that is held in place by screw piles. To create a beautiful bath, it is advisable to use a bar. This material can be profiled or glued. The recommended section size is 10x15 cm. If the bath is located in a region with harsh climatic conditions, the diameter of the timber should be increased to 15x15 cm.
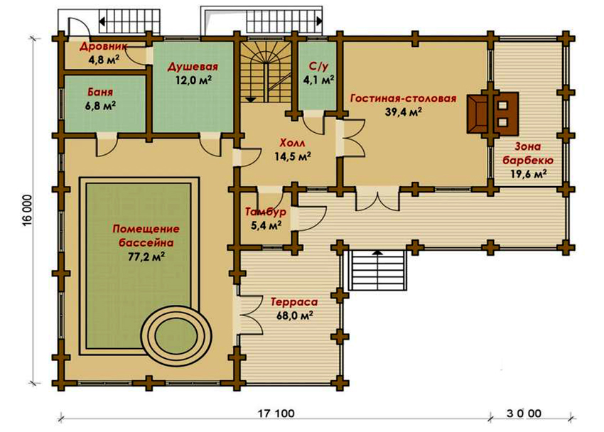
The original project of a bathhouse with a pool and a barbecue on an open terrace
An excellent option for building a medium-sized plot would be a sauna with an open terrace and a swimming pool. The dimensions of such a building will be 9.5x12 m. To save space inside the building, the pool is moved to the terrace along with a recreation area (barbecue).
Helpful advice! By eliminating the use of a barbecue, you can convert the terrace, while getting a separate room for the pool and a beautiful veranda with glazing for relaxation after taking a water treatment.
The entrance to the bathhouse from the terrace is through the hallway, where visitors can leave their outerwear. If desired, next to her, the owner can equip a living room or a room for relaxation. The area of this project allows you to organize all the rooms necessary for comfort in the bath:
- entrance hall with wardrobe (3.33 m²);
- a guest room or a rest room (18.88 m²);
- bathroom (4.72 m²);
- furnace (4.72 m²);
- shower room (10.45 m²);
- steam room (11.74 m²).

Sauna project with a steam room, a washroom, a relaxation room, a veranda and a swimming pool on an open terrace
The advantage of such a bath is the presence of a small corridor (5.29 m²), which connects the inner rooms. Thus, none of the rooms (apart from the living room) is a walk-through.
Impressive projects of baths with a pool: photos of large-scale buildings
The owners of spacious land plots can afford to build a large bathhouse. For convenience, it is desirable to equip such a structure with two entrances. In the 12x18 m project, this technique is just implemented. You can enter the building from two sides: from the porch and from the terrace.
The entrance from the porch leads to a small vestibule. This compact room between the street and other rooms acts as a kind of airlock that does not allow cold air into the building. From the rest room you can get to any point of the bath. This arrangement of rooms is optimal and allows you to easily move inside the building, without creating inconveniences for guests. The second entrance from the street is through the terrace. Almost half of the total space is allocated for the installation of the bath pool. The area of the artificial reservoir is 62.46 m².
Helpful advice! If necessary, the dimensions of the pool can be reduced, and the vacant space can be used to equip a bedroom or kitchen. Thanks to this, it will be possible to use the bath not only for relaxation, but also for permanent or temporary residence.
Much more planning opportunities can be obtained if the usable area of the bath is increased by building an attic. This will cost significantly less than building a second floor. But it will be possible to organize premises to create additional comfort. On photos baths with an attic you can see modern and cozy bedrooms, billiard rooms, small gyms with exercise equipment, etc.
By building an attic floor over a bath with dimensions of 11x14 m, the total area of the internal premises can be increased to 260 m². In this case, the basement of the building will be used to accommodate technical rooms. On the first floor, it is desirable to equip the main rooms:
- dressing room;
- shower room;
- steam room;
- rest room;
- bathroom.
The attic can be used to accommodate the shower room, bedroom and kitchen. Large-scale projects are good in that the presence of a sufficient amount of free space allows you to create a layout that will meet the personal needs and wishes of the owner, without taking into account the footage.
What can be bath pools: design and design features
The easiest way to get a steam room in the country is to choose a ready-made project and hire specialists to implement it. If you want to get something original, you will have to work hard and take part in the development of a scheme for the construction of a bath. In this case, you can get a truly unique design. The terraces, designed in the form of a ledge on the wall - a bay window, look quite unusual. It can be semicircular or polyhedron.

There are a lot of types of pools, you can buy a ready-made version or make to order according to your design
It is better to use mini-pools in compact saunas. The volume of such containers varies from 1 to 6 m³.They are made of fiberglass, wood or acrylic and can be installed both inside the building and outside. Pools with a spa function look like large bathtubs equipped with a hydromassage system. They are sold ready-made and are great for relaxation, but completely unsuitable for swimming and water play. For lovers of mobility, swimming pools with a collapsible design are suitable. They consist of a frame over which a PVC film is stretched.
To create a bath complex for relaxation with ideal conditions on a summer cottage, you just need to consciously choose a pool and correctly develop a project for its installation. The varied assortment of the modern market and the catalogs of construction companies allow not only to correctly plan the construction of a bath with a pool, but also to implement the project.


















