Sometimes it is advisable to make a solid fuel boiler for long burning with your own hands: drawings and diagrams are freely available. Ability to handle the tool and skillful hands provide a good service when building your own home or summer cottage. There is always a need to build some kind of structure yourself. After all, this significantly reduces the cost of any venture. Heating units are no exception. In the old days, people hired a stove-maker to lay brick ovens... Today, long-burning solid fuel boilers have become the most popular.
Content
The principle of operation of solid fuel boilers and their device
Solid fossil fuel is the most ancient source of energy for humanity. It is impossible to completely abandon it, even in the modern world. Moreover, in addition to firewood and coal, many other types of combustible solids have appeared today:
- peat briquettes - dried and compressed peat generates a lot of heat during combustion;
- briquettes from woodworking waste - compressed sawdust, shavings and tree bark;
- birch charcoal - the same as for barbecue;
- recycled waste from landfills;
- fuel heating pellets - fine fuel obtained by pressing sawdust. Can be fed automatically;
- ordinary dry sawdust.
It is clear that all this fuel is obtained through the processing of various wastes, which solves the problem of utilization at enterprises and goes along with the "green" economy.
Helpful advice! The most readily available fuels listed above are sawdust. If you intend to use them for heating, make sure that they have a humidity of less than 20%. Large indicators of this parameter will not allow the generation of pyrolysis gas, since most of the heating energy will go to dry the fuel.
As a result of human activity, a colossal amount of waste is generated, which can be converted into high-energy fuel, which has led to the appearance on the market of solid fuel heating boilers for long-term burning. Unlike conventional stoves, these units do not work on the combustion of the fuel itself, but on its splitting as a result of heating. In the working chamber of such boilers, gaseous decomposition products of solid fuel are burned. This operation scheme is several times more efficient than conventional fossil fuel combustion.Pyrolysis gas, gives off a large amount of energy.

Principle of operation solid fuel boiler long burning
The device of such a gas generating plant is not very complicated. You can even build a solid fuel boiler of long burning with your own hands. A drawing of the simplest version looks like this:
- a closed cylindrical tank, which has a hatch for storing fuel, a blower and an opening for installing a chimney;
- an air distributor is located inside the tank, which creates a swirl of the pyrolysis gas. It is attached to a movable telescopic tube. This whole piston-like structure presses on the fuel from above. Gas combustion occurs above the piston, and the fuel smolders under it;
- the heat exchanger is built into the upper chamber where the maximum temperature is reached.
Slow smoldering of solid fuel occurs in the lower chamber. It is achieved by adjusting the air supply to the blower. The emitted gas burns intensively in the upper chamber and heats the coolant.
Helpful advice! You should not use the simplest design for the manufacture of a boiler that will heat a residential building on an ongoing basis. To do this, you need to either purchase a finished product, or make a more complex and reliable option.
Long burning solid fuel boilers can be indispensable in private houses, in utility structures, garages and greenhouses. They will be especially beneficial where there is a large wood-processing industry, since waste is given at such enterprises almost free of charge. These units are also needed in areas where there are regular interruptions in gas supply. Such installations have many advantages, but there is also one important disadvantage - very high cost. That is why today it is important to make do-it-yourself solid fuel boilers for long-term burning. Drawings for this can be used of varying degrees of complexity. It depends on the skill level.
Related article:
|
How to make a long-burning solid fuel boiler with your own hands: drawings and diagrams
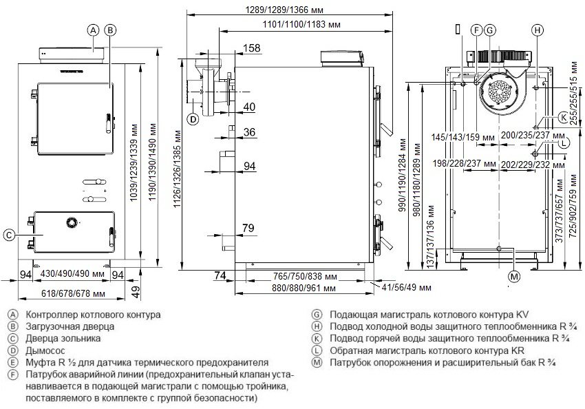
Before you start manufacturing a boiler, you need to decide on its design. Its choice depends on the purpose of the unit. If it is intended for heating a small utility room, garage or country house, then it is not necessary to make a water circuit in it. Heating of such a room will occur directly from the surface of the boiler, by convection of air masses in the room, as from a furnace. For greater efficiency, it is possible to arrange forced air blowing of the unit using a fan. If there is a liquid heating system in the room, it is necessary to provide a device in the boiler circuit in the form of a coil from a pipe or other similar design.
Diagram of connecting a solid fuel boiler to the heating system
The choice of option also depends on the type of solid fuel to be used. For heating with ordinary wood, an increased volume of the furnace is required, and for the use of small fuel pellets, a special container can be arranged from which the granular fuel is automatically fed into the boiler. For the manufacture of a solid fuel long burning boiler with your own hands, you can take a universal drawing. It is suitable for any type of solid fuel used.
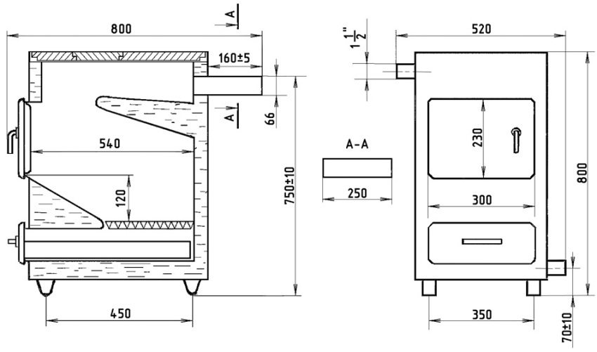
We will tell you step by step how and from what parts you can make a solid fuel heating boiler for long burning according to the proposed scheme:
- we will prepare the place where the future unit will be installed. The base on which it will stand must be level, strong, rigid and fireproof.A concrete foundation or a thick cast iron or steel plate is best suited for this. Walls must also be upholstered with fireproof material if they are wooden;
- we collect all the necessary material and tools: from which we need an apparatus for electric arc welding, a grinder and a tape measure. Materials: sheet 4 mm steel; 300 - mm steel pipe with 3 mm walls, as well as other pipes 60 and 100 mm in diameter;

Structure and working principle solid fuel boiler
- in order to make a solid fuel boiler for long burning, it is necessary to cut a piece 1 m long from a large 300 mm pipe. It is possible and slightly less, if necessary;
- cut out the bottom from the steel sheet according to the diameter of the pipe and weld it, equipping it with legs from a channel up to 10 cm long;
- the air distributor is made in the form of a circle made of steel sheet with a diameter 20 mm smaller than the pipe. An impeller from a corner with a shelf size of 50 mm is welded into the lower part of the circle. For this, you can use a channel of the same size;
- from above in the middle of the distributor we weld a 60 mm pipe, which should be higher than the boiler. In the middle of the distributor disk, cut a hole along the pipe, so that there is a through tunnel. It is needed for air supply. A damper is cut in the upper part of the pipe, which will allow for adjusting the air supply;
- at the very bottom of the boiler, we make a small door, equipped with a latch and hinges, leading to the ash pan for easy ash removal. Cut a hole for the chimney from above in the boiler and weld a 100 mm pipe into this place. At first, it goes at a slight angle to the side and up 40 cm, and then strictly vertically up. The passage of the chimney through the ceiling of the room must be protected according to fire safety rules;
- we are completing the construction of a solid fuel heating boiler for long burning by making the top cover. In its center there should be a hole for the air distributor pipe. The contact with the boiler walls must be very tight, excluding the ingress of air.
Helpful advice! To ignite a self-made solid fuel boiler of long burning, the drawing of which was presented above, it is necessary: remove the lid and raise the regulator, fill the boiler with fuel to the top and pour it with flammable liquid, put everything in place and throw the burning torch into the regulator pipe. When the fuel ignites, reduce the air flow to a minimum so that it only smolders. After that, the pyrolysis gas will ignite and the boiler will start up.

Long burning boiler - sectional view
How I made a solid fuel boiler for long burning: reviews and recommendations
“I work at a sawmill. I used to take home knots and cut carts. I learned about the solid fuel boiler for long burning, read the reviews and decided to do it. Happened. Now it takes three times less firewood, and the same amount of heat ”.
Alexander Nikolaev, Syktyvkar
“I saw a miracle cauldron in a friend's garage. We were repairing the car with him in the morning. He, as he put wood in it, did not touch it until evening. I could not understand anything until he explained the whole scheme to me. Here, I also got the idea to put myself in the garage. A friend said he would give the drawings. "
Nikolay Platonov, Surgut

Differences in normal and pyrolysis boilers
“If you decide to make, for example, at your dacha a solid fuel boiler of long burning, reviews of which were found on the network, then do everything clearly according to the scheme in compliance with all safety rules. And then, my neighbor burned down my dacha when he installed the boiler all in holes ”.
Andrey Shirshov, Tyumen
The heating device described above will serve you faithfully, allowing you to save on energy. However, do not forget to do everything efficiently, without deviating from the scheme.












