Various methods can be used for autonomous heating of country houses. Most often, the choice falls on boilers that are quite easy to operate, economical and durable. A gas boiler for heating and hot water supply of a private house is the best option in terms of price and quality ratio. Let's try to figure out what gas boilers exist for heating a private house: how to choose the right model for your home.
Content
Boiler options for different houses
Gas boilers are not the only option. The type of fuel largely depends on the type of house and the characteristics of the surrounding area:
- if thermal waters are located near the house, then the best solution would be to use the energy of the water for heating;
- firewood is perfect for a garden house;
- if a gas main passes near the house, then it is worth purchasing a gas boiler.
The power of the future boiler is calculated from such parameters as the need for hot water at home, as well as its heat loss. The higher they are, the correspondingly more powerful you need a boiler.
Heating boilers are distinguished depending on the type of fuel:
- solar powered;
- on liquid fuels, for example, diesel oil, fuel oil, kerosene;
- on gaseous fuels;
- solid fuels - peat, coal, wood;
- powered by electricity;
- on geothermal energy, that is, the energy of natural sources.
Of all the above types, gas boilers are the most economical option for a private house, so we will consider them.
Gas boilers for heating a private house: how to choose, what to look for
In order to accurately calculate the estimated boiler power for heating a private house, it is most reliable to use the services of a heating engineer. However, this parameter can be roughly estimated and independently. It is worth remembering that a room with a volume of 30 cubic meters requires about 1 kW of boiler power. If the boiler will also be used for heating water, then the set parameter should be doubled.
Useful advice! This formula is only suitable for an average room. If we are talking about heating a glazed veranda, an extension or a summer kitchen, then a more powerful boiler is required.
Another important point when choosing is the location of the boiler inside the house. There are a number of requirements on how to choose a gas boiler for heating a private house for this parameter:
- there must be good ventilation in the room with the boiler. If it is impossible to ensure the natural flow of air, you will have to install an artificial ventilation system;
- a gas boiler for heating a private house must be installed on the first or basement floor of the building.In this case, there must be one more exit from the room;
- for the possibility of normal maintenance of the device, there must be good artificial or natural lighting in the room.
Boiler type selection criteria
In order to finally decide which boiler to choose, it is worth considering the following points:
- costs for additional equipment - the price of a floor-standing double-circuit gas boiler for heating a private house will be much higher if you also purchase a pump, safety devices, expansion tank and other equipment. You will also need to additionally buy a coaxial chimney for a gas boiler;

For normal maintenance of a gas boiler, it is necessary that the room has good artificial or natural lighting.
- in order to mount a floor-standing boiler, you need a good natural draft and a large-diameter chimney in the room;
- building area codes and tolerances must comply with equipment requirements;
- if the boiler is equipped with equipment that will allow, if necessary, to transfer it to work on liquefied gas, then it should be given preference.
Useful advice! All modern boilers are powered by electricity, so it is always worth providing a backup power source if there are voltage surges in your home. For this, uninterruptible power supplies for gas boilers are well suited.
Thus, the choice of a gas boiler for heating a private house depends on the volume of the room, the presence of a chimney and other parameters.
Features of floor and wall systems
There are two types of gas boilers for a private house: floor-standing and wall-mounted. Each of them has its own characteristics.
Wall hung gas boilers
The wall-mounted gas boiler is a compact and convenient heating unit that connects in its design a heat exchanger, a gas burner, a pump with which you can increase the pressure in the heating system, an expansion tank, measuring instruments for temperature control and a built-in security system. Because of this, the price of a wall-mounted double-circuit gas boiler for heating a private house will be higher than that of a floor system, but it will also give more advantages.
The draft in a wall-mounted gas boiler can be either forced or natural. Forced draft is good for those types of buildings that do not have their own chimney - then a built-in fan comes into play, which removes the combustion products through a separate coaxial boiler chimney, which is mounted in the wall. If the house has a chimney, then it is better to choose a model with natural draft, it will cost less.

Wall mounted gas boiler device: 1 - smoke exhaust fan; 2 - NTC DHW temperature sensor; 3 - stainless steel burner; 4 - ionization flame control electrode; 5 - ignition electrodes; 6 - magnetic anti-scale device; 7 - DHW flow sensor (turbine); 8 - cold air blocking / excessive draft regulator (version F); 9 - control of the removal of combustion products (pressure switch); 10 - safety thermostat; 11 - NTC heating temperature sensor; 12 - closed expansion tank; 13 - pressure sensor in the heating system; 14 - 3-speed circulation pump; 15 - automatic bypass; 16 - tap for make-up and filling; 17 - safety relief valve 3 bar; 18 - control of the removal of combustion products (thermal sensor)
Apart from heating, the second important function of a gas boiler is water heating. For this, single-circuit or double-circuit boilers are used. Single-circuit, at the same time, are equipped with a separate structure, that is boiler... Regardless of the number of circuits, the boiler is equipped with automation, which makes it possible to regulate the operating mode. In the warm season, the boiler does not turn on for heating, and thus saves you money.
How to choose a wall-mounted gas boiler for heating a private house? Pay attention to its power, the number of circuits, dimensions, power consumption and other parameters.
Among the advantages of wall-mounted gas boilers are the following:
- relatively low weight - about 50 kg;
- compact dimensions, does not take up much space in the room;
- wall-mounted gas boiler, if necessary, can be converted to work on liquefied gas.
Useful advice! If you want the boiler not to take up a lot of space, then choose the wall-mounted version. However, keep in mind that the floor version is much more powerful.
Floor standing gas boilers
Floor standing boilers are good because they can effectively heat large rooms - over 200 square meters. Compared to wall-mounted boilers, they have less efficiency, however, they warm up even large houses well and provide a comfortable microclimate in them.
Related article:
Floor standing gas boilers for home heating. Selection of the optimal model. Advantages and types of boilers. Single-circuit and double-circuit devices. Heating systems diagrams.
Another advantage of an underfloor heating system is its durability. A good cast iron or steel boiler can last for several decades. The properties largely depend on the material of the heat exchanger.
One of the options for a floor system is a steel gas boiler. The term of its use is directly proportional to the quality of the steel, its thickness. The advantage of a steel boiler is its relatively low weight. The disadvantage is high susceptibility to corrosion. A steel boiler can last 15-20 years, but hardly longer.
The second type of floor heating system is a cast iron boiler. This is the most reliable and durable option. Cast iron is not susceptible to corrosion, withstands all kinds of mechanical stress, it rarely burns out.
In order for a cast iron gas boiler to last as long as possible, a number of simple rules should be followed during its operation. For example, you should not expose a sufficiently fragile cast-iron heat exchanger to mechanical stress, you need to monitor leaks from the system, and it is also recommended to use purified water. Otherwise, scale can form on the cast iron surface, which will lead to microcracks.
The price of a floor-standing gas boiler for heating a private house is lower than a wall-mounted one, due to the simplicity of the design. However, in many respects the price of the boiler depends on the manufacturer and model. In some cases, a good floor system can cost more than an average wall system.
Replacement of old equipment and installation of a new boiler
It happens that heating equipment and, in particular, boilers fail. In the event of a breakdown, there is always a radical solution - to completely replace the heating equipment. Such a decision is often made if an old boiler of Soviet design was previously in the house.It can be replaced with a compact wall-mounted gas boiler, which will perfectly heat a house up to 200 m².
Complete replacement of heating equipment is a solution to a complex of problems at once: old pipes, blockages in the system, poor heat transfer. If only the boiler is replaced, dirt and scale in old pipes can quickly lead to breakdowns and new equipment.
Standards and requirements for boiler installation
In order to install a gas boiler in a house, you need to obtain a permit. This is possible only after meeting a number of conditions:
- there must be good ventilation in the room, as well as a source of natural light for servicing the boiler;
- the height of the ceilings in the boiler room should be no less than two and a half meters, and the area - 4 square meters, the doorway - 80 centimeters wide;
- the power supply system must have overcurrent and thermal protection. How to choose a voltage stabilizer for gas boilers is a separate point that should also be given sufficient attention;
- the chimney width must correspond to the boiler output. For example, if the power is within 30 kW, then the diameter of the smoke hole must be at least 13 mm;
- the boiler must be equipped with temperature and pressure sensors;
- you cannot mount gas equipment in basements;
- it is forbidden to lay a gas pipeline in a fire hazardous area;
- regardless of the type of gas pipeline (open or closed), the pipes must be metal;
- in the room with the boiler, there must be a gas level analyzer and an electric valve, with which you can shut off the gas supply.
Useful advice! For the installation of a gas boiler and the preparation of all the necessary documentation, you need specialized skills and special tools. If you do not have either one or the other, then it is better to contact a specialized organization.

Installation of a floor-standing gas boiler is usually more difficult and more expensive than a wall-mounted model
Replacing old equipment
If you nevertheless decide to change the old heating equipment for a new one with your own hands, then you need to do this in the following sequence:
- the old system is flushed. Clogged pipes can significantly reduce the service life of even the highest quality new boiler, so it is best to get rid of dirt and blockages using a special compressor. If it is impossible to clean the pipes, then it is better to simply replace them with new ones;

If, when replacing heating equipment, it is not possible to clean the old pipes, it is worth replacing them with new ones
- old equipment is being dismantled;
- a new boiler is installed. In this case, take into account all the recommendations specified in the boiler operating instructions;
- connect the boiler to the flue gas system. If there is no chimney in the house, then you should take care of buying a coaxial chimney for a gas boiler. The instructions for the boiler usually indicate the requirements for the parameters of the chimney. This is a very important point, since if its width or height is insufficient, combustion products will enter the room;
- the boiler is connected to the gas pipeline. This can only be done by organizations with the appropriate permission;
- the boiler crashes into the heating system and the PVA system;
- commissioning works are in progress. This is a very important point on which the efficient operation of the boiler and the entire system depends.
Gas boiler installation
To install a new gas boiler, you will also need to perform a number of steps:
- check if all the components are present - the kit must include a mounting template, a strip for connecting gas and water, the necessary pipelines and the boiler itself;
- choose a level for attaching the hinged bar, attach it;
- install gaskets for water and gas pipelines, remove protective plugs;
- install the boiler itself, connect the water circuit and the gas supply system to it;
- connect the power supply, connect the boiler to the chimney.
You should also take into account the moment with voltage drops, as mentioned above. Which voltage stabilizers are best for a gas boiler depends on the power and equipment model.
TOP 10 gas boilers: an overview of the best models and manufacturers
You can endlessly argue about the merits of a particular model of a gas boiler. Heating specialists recommend the following 10 models that have proven themselves well on the international market.
BAXI SLIM 2300Fi
Italian gas boiler with built-in boiler and closed combustion chamber. Well suited for use with domestic gas supply systems. It is absolutely safe to use, as it has a large set of automation for protection and control.
It also has the possibility of remote control and the function of automatic regulation and maintenance of temperature in the heating circuit. Looks stylish, it can be converted to work on LPG, the burner is made of stainless steel. The self-diagnosis system is started if necessary. The only drawback of this boiler is its high price.
PROTHERM BEAR 40 TLO
Floor standing compact gas boiler. It is characterized by a convenient control panel with which you can easily monitor the status of the system. This boiler needs an external boiler to heat the water in the water supply system. In addition, this boiler has an automatic control system for work at height, there is a special circuit for insurance against overheating. There are winter and summer operating modes and the ability to operate using liquefied gas.
The weak point of this boiler is the thermocouple, which will have to be changed after several years of active operation. The boiler is not cheap, but this is offset by its advantages. The average price is 378 thousand rubles.
KONORD KSC-GV-12N
Domestic-assembled boiler at an affordable price. It is characterized by stable performance, reliability and durability. The body is made using a special seamless technology, which eliminates the common problem of rust at the seams. The flame level of the burner is regulated automatically, thus increasing the efficiency of the unit. The boiler can last up to 15 years if it is used carefully, and this is a solid indicator even for foreign models.
Another advantage is the low noise level. The boiler is easy to install and efficient even at low gas pressure. The disadvantage of the model is the relatively small heating area, so it is worth purchasing it for small houses. The price of the model is 85 thousand rubles.
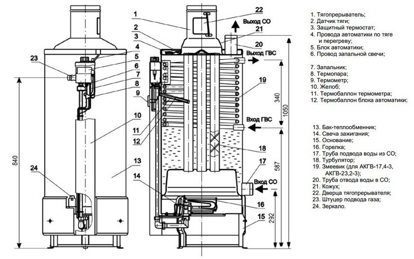
AOGV-23,2-3 COMFORT
The boiler is highly environmentally friendly. This means that the outlet gas is cleaner than many other models. Of the sensors, only a dial thermometer is present. There is an automatic piezo ignition function.
The boiler, although quite simple, is unpretentious in operation, economical, easy to operate. Copes with its tasks even when the gas pressure in the system drops. The disadvantages include visual simplicity against the background of more expensive foreign models. The low price of a heating boiler for a private house is its main advantage.
AOGV-11.6-3 ECONOM
One of the smallest floor-standing boilers on the domestic market. It works only for heating, but it takes up surprisingly little space and weighs little.It is possible to rebuild it to use liquefied gas instead of natural gas. Very easy to operate.
The stability of operation does not depend on the voltage in the mains, so it can be used even where power surges are frequent. The gas pressure in the network below the standard does not affect the quality of work.
Another distinctive feature is a long service life due to the simplicity of the design. This boiler cannot boast of a large heating area and a perfect protection system, but its power is quite enough for heating a small private house.
BAXI LUNA 3 COMFORT 240 Fi
The high price of a double-circuit gas boiler for heating a private house is more than offset by its merits. The boiler is excellent for domestic gas systems, demonstrates stable operation at a gas pressure below required. The control panel is digital and is installed not only on the boiler, but also in any place convenient for you.
Like many other modern boilers, it reconfigures for operation on liquefied gas, has a built-in filter for water purification. The disadvantages include high sensitivity to voltage drops, therefore, a stabilizer should be immediately purchased along with the boiler.
BOSCH GAZ 4000 W ZWA 24-2 A
This model is well suited for heating houses with a large area - up to 300 square meters. Of particular interest is the possibility of connecting a room temperature controller to the control panel. There are indicators of malfunction and operating modes, built-in protection against overheating, possible pump jamming and freezing.
Coaxial chimneys for this type of gas boiler must be purchased separately. The weak point of this boiler is the pump, and its repair is quite expensive. The price of the model is 193 thousand rubles.
BUDERUS LOGAMAX U042-24K
Absolutely silent wall-mounted German boiler. Heats water, is often used not only in residential buildings, but also in industrial facilities and in housing and communal services. The working power can be continuously adjusted. There is protection against overheating, freezing, traction and pressure sensor. Effective in several operating modes: summer, winter, warm floor. The only negative: the hot water temperature can fluctuate. The boiler costs about 220 thousand rubles.
PROTHERM GEPARD 23 MOV
Due to the high power of this model, the chimney for a gas boiler in a private house should be quite large. This model is characterized by high efficiency, affordable price and ease of management. There is an LCD display for displaying all operating parameters. There are winter and summer operating modes, autodiagnostics function. Minus - it works only with clean water, so you will have to install water filter... Price - 187 thousand rubles.
VAILLANT TurboTEC PRO VUW INT 242-3-H
A good double-circuit boiler version with the ability to adjust the water temperature. It works under reduced pressure, looks stylish and easy to operate. There is a self-diagnosis mode. The control panel is mechanical. There is a built-in multi-stage protection system. Cons - noticeably noisy, works only with clean water.
The answer to the question of how to choose a gas boiler for heating a private house is quite complicated and requires an attentive approach. Focusing on the advice of the article and a review of the TOP-10 best models, you will certainly be able to make the right choice and purchase a quality device for heating a private house.




































