Entrance door - the first thing that guests see and at the same time your main protection from intruders and ill-wishers. Therefore, the choice of this element should be approached with attention, taking into account all the recommendations of specialists, as well as the requirements and standards of GOST. Consider what the front door can be: dimensions, design features and basic materials of manufacture.

Entrance doors are selected based on the specified height and width of the opening, the thickness of the door leaf and the design of the door itself
Content
- 1 Front door: sizes and types of designs
- 2 Standard door sizes: basic parameters
- 3 Can I use custom-sized entrance doors
- 4 How to choose an entrance door with a frame: dimensions and designs
- 5 Standard sizes of metal doors with and without a frame
- 6 Rules for choosing a metal door: dimensions and materials
- 7 The best entrance metal doors: dimensions with and without a frame, characteristics
- 8 What else should you pay attention to when choosing an entrance door: expert advice
Entrance door: dimensions and types of designs
In the vast majority of cases Entrance door has a wider width than all other openings in the house. As for the design, it can be very diverse, and in this matter the only limitation is the manufacturer's imagination. The most popular materials for the manufacture of entrance doors are metal, wood and MDF.

Which doors to choose: iron or wooden depends on the overall appearance of the house and the budget that will be spent on security from burglary
There is no relationship between the material of manufacture of the door and its size, so absolutely the same requirements apply when choosing. It is imperative to take into account a number of design features, which, however, are not related to the material.
The easiest way is to divide the doors into groups depending on what design they have:
- single-leaf doors are a familiar and one might even say standard version, which is a canvas inserted into a frame. Usually the width of such a door does not exceed 100-110 cm. A single door can be the most common and simple, or it can become the implementation of all the most daring design ideas, truly decorating the house;
- double doors are usually used in private houses, since with a standard opening height, the door width increases by about 1.5-2 times. This is certainly a more convenient option, however, its implementation requires a lot of free space on the sides of the house;
- doors with transom. For such a solution, you will need to increase the height of the doorway. Moreover, the door leaf can remain standard, and the fastening of the upper part of the structure is carried out separately, without damaging the structure.In most cases, decorative glass inserts are used for this purpose, since they serve as an additional source of light and visually facilitate the structure of the door.

Doors with transom can be used as an additional source of light, as well as for airing the room without a draft
Useful advice! If what you really want cannot be installed, and the available options do not suit you, you need to think about alternative options. For example, one and a half doors are a great compromise if there is not enough space for double doors. In this case, one of the canvases is smaller and serves as a decorative insert.
Standard door sizes: Main settings
Regardless of which type of construction you decide to give preference to, the standard dimensions of the entrance door are the parameters that you need to familiarize yourself with in any case:
- Front door height. Typically, for a standard door, the opening height is about 2070-2030 mm. But it is imperative to determine the exact value individually, by resorting to measurements.
- Front door width. The minimum width of the entrance door, which can be 900-910 mm, is also found single-leaf doors - 1010 mm. One-and-a-half doors are different in width - 1310 mm, 1310 mm and 1550 mm. Double doors are usually noticeably wider - 1910 and 1950 mm.
- Door thickness. There are no standards in this case, since the thickness of the leaf is determined by the material, as well as by some of the design features of each specific product. But, despite this, you need to understand that the thickness of the door must be sufficient for it to cope with its main task - to protect the house. It is for entrance doors that the thickness of the leaf is most important. It is believed that if we are talking about a metal sheet, then its thickness should be at least 2 mm, and otherwise you can focus on your own preferences and parameters of the opening.

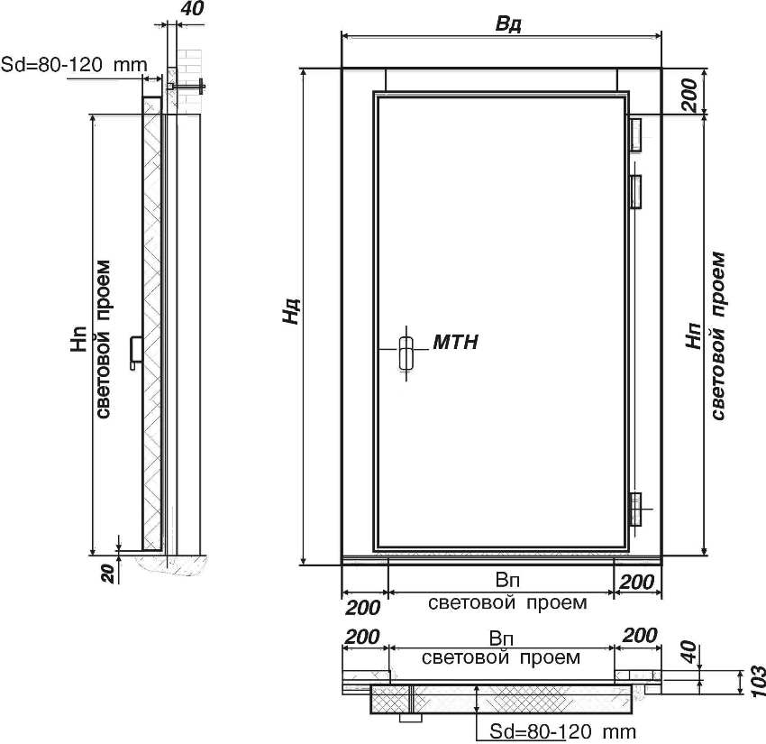
Schematic representation of dimensions front door
The front door should usually be larger than all other doors in the house or apartment, since this will allow not only to freely enter the house, but also, if necessary, bring in loads.
Can I use entrance doors of non-standard sizes
In many modern houses, especially if they were built according to individually designed projects, GOSTs are simply not taken into account. But the recommendations of SNiP are not recommended to be neglected, although in many cases they are bypassed. So in a private house you can use any non-standard size doors.
Of course, you will have to agree on the size of the front door to the house with standard indicators, but there is no need to accurately compare the indicators. It is enough to try to maintain the ratio of the elements to each other, and all the necessary measurements can be made right at the construction site.
The size of a metal entrance door or wooden structure can reach 900-2000 mm in width and 2000-2400 mm in height. It makes no sense to widen the doorway further, unless we are talking not about the construction of a residential building, but about a public institution, for example, a small hotel, cafe or a very large house.
How to choose an entrance door with a frame: dimensions and designs
It is extremely important that the dimensions of an iron entrance door or a sheet made of any other material correspond correctly to the opening. First of all, it should be possible to easily place the box in the opening so that there are small gaps around. This free space will allow the structure to be positioned as evenly as possible, and the gaps can be easily replaced. This is an excellent option, however, it is far from always available, since it is assumed that the doorway is initially ideally cleared and it is possible to make all the necessary measurements.
Well, as for the correspondence of the box and the canvas, it is best that these two elements initially came in the kit. So, you can avoid problems associated with their discrepancy. If we talk about the separate acquisition of these elements, then you need to select the canvas very carefully, not forgetting that it must be smaller than the opening, otherwise, the box simply will not fit.
Otherwise, you just need to try to provide for gaps of at least a few millimeters so that the movement of the door is not limited by anything.

Scheme front door with a box
Useful advice! When planning your purchase and installation of an entrance door, do not forget about such important details as the threshold. This will ensure a higher level of door construction and prevent drafts.
Taking into account all the recommendations, as well as GOSTs, it will not be so difficult to choose the size of the entrance doors. It is worth saying that all the existing standards were not invented for nothing, and in most cases their observance allows you to give the house the most attractive appearance and at the same time ensure the required level of functionality of the front door.
Standard dimensions of metal doors with a frame and without her
Before you start choosing an entrance door, you need to figure out one more important parameter - the size of the entrance door boxes. Obviously, in addition to the canvas itself, there is also a structure that holds it, and its size must also be taken into account when calculating. Standard sizes are necessarily approved by GOST and SNIP, and they are calculated based on the metric system.
So, according to the prescribed standards, the doorway should take from 700 to 1540 mm in width, 2055 to 2050 mm in height and 75 mm in thickness. At the same time, the optimal width is considered to be 900-1000 mm.
And if you decide on the size of the canvas, knowing the width and height of the doorway, it is not so difficult, then some difficulties usually arise with the box. According to the same GOSTs, the size of the box should exceed the size of the door leaf by 60-70 mm. The allowed deviation is 10-15 mm.
Important! When choosing a door frame for an opening, do not forget to take into account the need for a technical gap, which will allow you to install the structure as evenly as possible. Usually, the norm is considered - 10-20 mm in the side and top parts and 25-45 mm at the bottom, for setting the threshold.
Rules for choosing a metal door: dimensions and materials
Size is not the only thing to look for when choosing an entrance door. Other characteristics are of no less importance, and before buying, it is advisable to familiarize yourself with each selection criterion in order to choose the most suitable option for yourself.
So, let's consider what you need to pay attention to first:
- material of manufacture - structures are made of steel or aluminum. In the first case, the structure will be more durable and reliable, and the level of heat and sound insulation will be an order of magnitude higher. However, aluminum sheets are lighter and allow for the most unusual and original ideas;

Standard sizes entrance metal door
- the opening method is also very important. Of course, this largely depends on the size of the front door. In a private house, for example, there are much fewer restrictions, but in apartments you have to adjust to the situation. The size of the door in this case should be such that it could be opened without problems, and the passage on the site was minimally limited;
- the exterior finish of the door is also of great importance, since it performs a protective function and prevents the loss of functionality and attractive appearance of the door as a result of various temperatures and mechanical influences. Powder coating and oak paneling have proven themselves best in this matter;
- noise and thermal insulation is another mandatory criterion. For noise insulation and insulation of the front door, mineral wool or expanded polystyrene is usually used;
- the security system is what protects the door from burglary and the visit of unexpected guests. In addition, attention should be paid to the quality of the used fittings, since they determine not only the attractive appearance of the door, but also its reliability.
Useful advice! An ordinary household door can be equipped with a lock of 1-4 class of burglary resistance, but you need to understand that this is not the most important point and the strength of the door itself should also be appropriate. After all, there will be no sense in a reliable lock if the door itself can be easily knocked out with one blow.

Dimensions of entrance metal doors with a frame can be factory-made or developed according to an individual plan
Best input metal doors: dimensions with frame and without, characteristics
Each entrance door stands out among others with some special characteristic that allows us to call this model the best. Let's consider several options for doors, which for one reason or another were named the best.
- The best door with a thermal break is North. This door is capable of providing reliable protection from the cold even at outdoor temperatures down to -40 degrees. All places that are considered problematic for entrance doors are perfectly sealed in this case. Such a door weighs a lot - 100 kg, however, due to high-quality polymer-powder coating, the structure does not look heavy and bulky. Under the condition of careful use, such a door can serve for many years. The width of the entrance door to the apartment of this model can be 860 mm or 960 mm, and the height is always standard - 2050 mm. The thickness of such a canvas is 80 mm.
- Akron 1 is the best door you can find to install in your apartment. As already mentioned, apartment owners are much more limited in their choice, and you need to understand that the size of the front door in Khrushchev will not allow you to roam. This model is an excellent combination of small size, reliability and attractive appearance. Door leaf thickness - 65 m, and there are also 2 sealing contours. The structure is equipped with a Guardian 10.11 lock of the second class of burglary resistance. Mineral wool is used to provide heat and sound insulation.
- Arma Standard-1 - a door made of a bent metal profile, which has stiffening ribs, due to which the structure is more dense. The complete set of this door has everything you need: a peephole, fittings, cylinder and lever lock. There is also additional protection against burglary - anti-removable pins. The door is painted with powder from external factors, which provides it with reliable protection. With a leaf size of 880x2050 mm, the thickness of this door is 80 mm.

Entrance door with thermal break able to provide reliable protection from cold even at low subzero temperatures
Of course, you need to select an entrance door based on individual wishes, the size of the opening, as well as financial capabilities. But saving on such an important thing is definitely not worth it, because it is she who provides you with safety, heat and sound insulation from the outside world and gives you a feeling of calmness in your own home.
Related article:
How to choose an entrance metal door to an apartment
Algorithm for assessing the quality of metal entrance doors according to several criteria. What they pay attention to.
What else should you pay attention to when choosing an entrance door: expert advice
In addition to all the main parameters that were considered, experts strongly recommend paying attention to some little things, which in the future play a big role for the functionality and service life of the door:
- door hinges. The first thing you should pay attention to is their number. A design with less than three hinges is short-lived;
- pay attention to the opening angle of the door - the maximum indicator can be 90, 120 or 180 degrees;
- the minimum allowable door leaf thickness is 40 mm, but such a door will not be completely protected. Therefore, it is better to refuse such a purchase;
- the metal sheet should not be less than 0.5 mm thick. The thinner the base, the shorter the service life of the door;
- it is important to pay attention to the presence of an armored lining, since it is considered a mandatory element and should be included in the kit in any case;
- the thickness of the box should be 2 times the thickness of the door leaf. This is necessary so that the fittings can be held and at the same time do not damage the structure;
- it is better to give preference to the model with ball loops and anti-cuts;
- a one-piece bent profile is always preferable as it is more reliable;
- the presence of stiffeners is a prerequisite for those parts of the canvas that are most vulnerable. So the strength of the structure will increase significantly.
These are the main aspects to consider when choosing a door. Among the minor points, a couple of such aspects can be noted: the presence of a manganese plate will exclude the risk of drilling out the door. In addition, it is desirable that all fittings be produced by one company.
When it comes to the appearance of the front door, you can completely focus on your own preferences. The only thing to understand is that a dark door will retain its original appearance much longer.

The design of the front door should match the interior of the hallway and be like a continuation of the house, part of it
Useful advice! Contrary to many beliefs, it is far from always good if the door opening angle is large. For a private house, it really makes sense to select a design with a maximum performance. But in the apartment you need to take into account all the points, because if, when opening, your door swings open 180 degrees, thus blocking or hitting the neighbor's door, there is nothing good in this.
As you can see, in the process of choosing an entrance door, you need to take into account many parameters, the main of which are design features and dimensions. Iron doors must be properly reinforced and equipped with reliable fittings. And, of course, it is important that you like the front door visually, because you will have to use it every day.








