Every owner wants to keep his car in good condition as long as possible. Getting a dry, well-ventilated garage is considered a rare success. And if you consider that city dwellers often store their own crops in the cellar of the garage, creating a favorable microclimate in it becomes task No. 1. Recommendations of the heading "Ventilation in the garage with your own hands, scheme, calculation and ventilation methods" will help you decide on the choice of ventilation system in the garage.

The organization of proper ventilation in the garage helps to remove the resulting condensation, the removal of exhaust gases and toxic fumes
Content
Do it yourself ventilation in the garage. The scheme and methods of ventilation used in garages
Like any other room, garage needs effective air exchange. Proper ventilation in the garage helps to remove condensation, exhaust gases and toxic fumes from car care products traditionally stored there. The ventilation in the garage performs a number of essential functions, including:
- removal of moisture generated when it enters garage rain, snow and wet mud from the bottom of the car;
- removal of gas accumulations harmful to human health (many motorists spend most of their leisure time in the garage);
- preventing the formation of condensation on the walls and ceiling of the room, as well as in the inspection pit and cellar;
- timely drying of the car, protection of its elements from corrosion;
- rust protection of the metal surfaces of tools stored in the garage;
- creating a microclimate conducive to long-term storage of vegetables in the garage cellar.
There are several ways to ventilate your garage. How to properly do the installation of a particular system with your own hands, you can learn from numerous video clips on the Internet.

Air movement pattern with natural ventilation of the garage without a burial pit: 1 - air direction; 2 - ventilation holes in the garage door; 3 - ventilation box
Natural ventilation. Air movement diagram. DIY ventilation device
Natural ventilation in a garage is the most common ventilation system.Considering that the device of natural ventilation in the garage is simple and budgetary, many tend to choose this particular system.
The scheme of garage ventilation with the natural method is such that air flows enter and exit the room through the supply and exhaust openings. To choose the right hole diameter, you need to make a simple calculation.
To arrange garage ventilation with your own hands, you will need the following tools:
- puncher (for making holes);
- grinder (for cutting pipes);
- plastic pipes (can be sewer);
- protective grilles and caps.

Proper arrangement of ventilation in the garage will protect the metal parts of the car from corrosion
Here is a step-by-step description of DIY installation:
- We calculate the area of the ventilation holes. Taking into account the norms, for a garage area measuring 6 x 3 m, the holes should be 27 cm in diameter. If two holes are supposed, then their diameter should be half of the result obtained.
- We make ventilation holes in the walls, where air ducts from pipes will be subsequently mounted. The holes should be 10 to 15 cm from the garage floor. A perforator is used for these works.
- On the opposite wall, 10 cm below the ceiling, we arrange holes for mounting the outlet pipe. The pipe will be led out of the garage roof. The higher the pipe goes above the roof, the more intensive the air exchange will be. The minimum chimney height above the roof is 50 cm.
- After the pipes are installed in the openings, the gaps between the pipes and the wall are sealed with sealant. The outer openings of the pipes are closed with gratings to prevent the entry of small rodents. You can prevent precipitation from entering the pipe by installing a protective cap.
Helpful advice! Use for protection ventilation pipes high-quality grilles, will allow you to adjust the area of the inlet depending on weather conditions.
It is quite simple to implement a natural ventilation scheme in the garage with your own hands, but it should be understood that during the warm period, air circulation will become negligible or completely absent.
You can get acquainted in more detail with how the ventilation in the garage is made with your own hands, from the video example.
Forced ventilation system in the garage
The forced ventilation system will provide more efficient ventilation of the garage. The calculation of the garage area for such a system is not required, since the flow of the necessary air is provided by the fans built into the system. Air enters and is drawn out in a volume sufficient for the garage and cellar with a viewing hole. It should be noted that such ventilation in the garage involves the purchase of expensive equipment and functions in the presence of electricity.
Helpful advice! Mechanical ventilation of the garage in winter is the most correct ventilation system in the cold season. If necessary, it can be equipped with various devices for air heating.
The only option for ventilation of an underground garage is the use of a forced ventilation method.
You can see a selection of videos on how to make ventilation in the garage forcibly with your own hands.
Combined garage ventilation
An alternative to the forced method is combined ventilation in the garage. This method combines the natural intake of supply air and the removal of exhaust air using exhaust ventilation in the garage.Forced air outflow is provided by a fan installed in the duct. As soon as the polluted air is expelled by the exhaust system, fresh air enters its place through the supply channel.
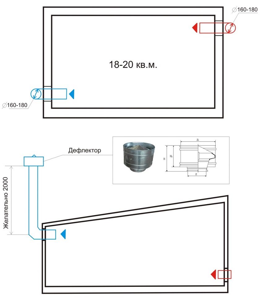
The operation of the supply and exhaust ventilation system in the garage does not depend on the location of the ventilation openings. They can be arranged anywhere (even on the same wall), but not opposite each other, in order to avoid a steady flow of air. The calculation of the area of the ventilation openings is carried out as in the case of natural ventilation. When arranging combined ventilation with your own hands, it is recommended that you first complete the ventilation scheme.
Related article:
|
The combined ventilation method is less costly and optimally correct for the garage, although it also depends on electricity.
Helpful advice! Choosing a combined ventilation system for garage ventilation, you can significantly save on energy than in the case of forced ventilation.
The installation of combined ventilation in the garage, the video of which can be found on the network, clearly demonstrates the installation of the system with your own hands.
Ventilation system in the basement of the garage. Cellar air exchange diagram
Effective use of the basement and cellar of the garage for storing vegetables and preserving is possible only if proper ventilation is available. Ventilation in a garage with a basement can be natural, mechanical or combined. Usually, for ventilation in the garage cellar, it is enough natural ventilation system... You can do it yourself with such a system using plastic pipes for the sewage system. During installation, you must adhere to the following recommendations:
- the ventilation scheme of the cellar in the garage should provide for a minimum number of turns and bends of pipes;
- the exhaust pipe should be insulated to avoid condensation;

For good air exchange, the supply and exhaust ventilation pipes should be located in opposite corners of the cellar
- the diameter should be uniform along the entire length of the pipes;
- external pipe entries must be covered with protective caps to prevent precipitation from entering them.
Before arranging natural ventilation, do-it-yourself calculation of the area of the holes. The supply pipe originates half a meter above the cellar floor and is led out. The chimney is installed under the cellar or basement ceiling and extends beyond the garage roof. The location of the pipes should be in opposite corners of the cellar.
The most correct choice of ventilation of the cellar and basement in the winter season is to use the forced method. There is almost no air exchange in these rooms and they need effective ventilation using a mechanical ventilation installation. Such ventilation will promote normal air exchange and create a microclimate necessary for preserving food.
You can figure out how ventilation is done in a garage with a basement by watching the video instruction of the ventilation device.
Ventilation device in a metal garage
Installation of ventilation in a metal garage is carried out in the same way as in conventional garages. A feature of the ventilation of an iron garage is that the inlets are arranged in the upper part of the wall, trying to place them at a certain distance from the gate lock.This will help avoid hacking. gate through ventilation openings. The inlet openings are equipped with protective grilles.
Video examples available on the Internet demonstrate the ventilation device in the iron structure of the garage.

Scheme of arrangement of supply and exhaust ventilation in a garage with a cellar consisting of several compartments
As a rule, there is no inspection hole in the iron boxes, so the upper holes are quite enough for the necessary air exchange. Additional inflow of the supply flow can be carried out through the leaky porches under the influence of the wind.
In the absence of ventilation, condensation appears on the surfaces of a metal garage. In addition to high-quality ventilation, floor insulation will help to avoid condensation. To do this, first, the floor surface is covered with roofing material, concreted and covered with linoleum.
Recommendations and information on how to make ventilation in the garage will help to create optimal conditions under which the safety of the car and the comfortable stay of people in the garage will be ensured.















